INFORMATION
NOTICE | |
---|---|
2025.10.3 | |
2025.5.17 |
デザイナーが打合せ・設計・工事監理・現場管理までを一括で担当する |
---|
当店は、工事後にお客様が「ああすれば良かった」「こうすれば良かった」と後悔をすることがないエクステリアとガーデンの専門店を目指しています。そのためにはスタッフの能力はもちろんのこと、しっかりとお客様とコミュニケーションを取り、ご要望を伺い、プロとしてのご提案ができることが大切です。
当店のスタッフは、営業、設計、現場監督というように担当が別れておりません。担当者が責任を持って、ヒヤリングやプレゼン等のお打合せから設計、お見積作成、工事監理、現場管理までを行います。また、作業に携わる作業員(職人)も、担当者が工事内容に合わせて適正な作業員を厳選しています。
担当者がすべての工程を経験し、理解しているからこそ幅広い知識と経験でお客様にプロとしてのご提案ができます。お客様とのコミュニケーションの場を分業化(営業、設計、監督など)しないことで、伝達ミスによる失敗もありません。お客様からのご相談はすべて担当者が一任します。
お客様とのお打合せは、じっくりと時間を掛けて行わせていただきます。工事予定地で立ち話程度で終わってしまうことはありません。お手数ですが一度ご来店ください。施工例やカタログ、雑誌、サンプルなどをご覧にいただきながらご要望をしっかりと伺います。やりたいことがあると色々と夢が広がります。担当者がお客様の立場に立って、同じ夢に向かってご提案させていただきます。
東京都大田区・世田谷区・町田市の |
---|
東京都(大田区・世田谷区・町田市)のお客様施工例をご覧ただけます。大田区・世田谷区・町田市にお住まい、またはお引っ越しをご予定でエクステリア・外構、ガーデン・お庭の工事をお考えのお客様を心からお待ちしております。
至福の時間を過ごせるお洒落なカフェ

PLAN


デザインコンセプト
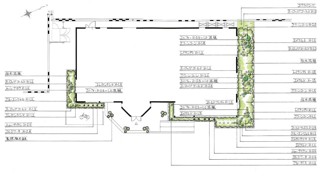
長崎県のグラバー邸をイメージしたオランダ坂珈琲邸。江戸から明治に掛けて西洋の文化が取り込まれていく、この時代背景を大切にしながら設計しました。お客様のご要望によりコニファーを中心に構成しています。
大きさ、色とりどりのコニファーを上手に使い、動きある樹木配置にすることでリズミカルなガーデンデザインにしています。ポイントポイントで植込みをまとめてメリハリをつけることで、見る人に強い印象を残せるようにしました。
COMPLETED

メインガーデン
建物の角部分に当たるメインガーデンです。センターにゴールドクレストを植え、その周りを様々なコニファーが取り巻くようにしています。黄色~深緑のコントラストが美しく感じさせます。

店舗を囲むグリーンベルト
建築物のまわりは、ほとんど花壇になっています。建築物外周に植物を植え込むことで、構造物全体が明るく柔らかい印象に仕上ります。緑が豊富にあると、美しく映り思わず足を運んでしまいます。




エントランス周りの植木鉢に植えられた、つる性植物のアイビー(ヘデラ)を柱に巻きつけるように誘導します。柱から離れるようにメッシュを張り巡らせて、柱を痛めないように工夫されています。


雪見ガラスの小ガーデン
座敷席に付けられた雪見ガラス前に設けられた小さなガーデンです。外からはお客様の姿を遮り、中からは植物を見おろすように配置しています。


駐車場まわりの植栽帯
新築店舗なので、完成後の検査があります。町田市の検査基準をカバーした植樹面積と高さで全体を仕上げています。駐車場まわりに植物があると全体が明るく感じられます。





夜間のエントランス
日没後のエントランスです。店内からあふれる光と外灯によって、建物が浮かび上がるように感じます。エントランス周りのテラコッタとつる性植物が空間をさらに美しくしています。
食事が楽しくなる明るいガーデン

PLAN


デザインコンセプト
春夏秋冬で四季折々の花を見ることができ、お花畑で食事をしているような感覚を受けるガーデンにしています。東側を向いた大きなガラスから明るい日差しが取り込まれて、ピクニック気分で食事を楽しめます。夜はガーデンがライトアップされて落ち着いた雰囲気を演出します。
中心にロックガーデンがあり、花々をその中に植えています。花は多年草と宿根草を使用して植替えを最小限にしています。横に長い土地なので、築山とロックガーデンで縦の動きを、エッジングを用いて芝生と花壇を作り奥行き感を出しています。下から上、手前から奥へと動きをつけることで、間延びがないように構成しています。食事をしながら気分が明るくなるような、ガーデンを目指しました。
COMPLETED


明るい緑のお庭
手前の築山頂上に中高木を植込み、外側から店舗を見た時のポイントとしています。周りは芝生でしっかりと土留めをし、お庭に立体感を与えました。奥に向かって平になり、店内からメインツリーと花々が楽しめるようになっています。また、歩道沿いの低木がグリーンベルトとなって、足元を美しい緑で彩っています。




お庭のセンターに、小さめのロックガーデンを設けてメインツリーにシマトネリコ株立を植えています。ロックガーデンの土部分には、多年草と宿根草を植込んで四季の花々が楽しめるようにしています。



店内からお庭を
大きなガラス窓からは外の明かりを採り込み、お庭を見渡すことができます。ちょっとしたスペースでも、そこに緑があると自然と気持ちが明るくなって会話も弾んでくるでしょう。





お庭のライトアップ
夜になると庭園灯とスポットライトで、ガーデンがライトアップされます。昼間とはまた違う気分でお食事をお楽しみいただけます。
工事施工範囲 |
---|
当店では、新築やリフォーム・リノベーションの外構(エクステリア)、造園(ガーデン)工事を承っております。
新築での工事をご依頼のお客様は、必要な図面がお揃いでしたら、建築前の段階からご相談が可能です。
リフォーム・リノベーションをご依頼のお客様は、予め建築時の図面をご用意ください。
当店は、お客様とじっくり話し合い、ご要望を伺い、お客様の立場に立ってご提案ができるように、ご依頼数を制限した限定予約制となっています。

東京都大田区・世田谷区・町田市の特徴 |
---|
大田区は、世田谷区の南西に位置する東京23区で最も面積の広い特別区です。人工は70万人以上で、東京都内で最大の工業集積地でもあります。東京都内ながらも横浜市にアクセスが用意な地域です。区の木はクスノキです。
世田谷区は、東京23区の南西部にある特別区です。人工は90万人以上で東京都内最大です。神奈川県に隣接し、自由が丘や田園調布などが人気のベッドタウンです。区の木はケヤキです。
町田市は、人工43万人以上で八王子市に次いで人工の多い東京都内の市です。神奈川県横浜市、相模原市、川崎市と隣接しています。周囲に学校が多いため、学生で賑やかな土地です。市の木は世田谷区と同じくケヤキです。
以上の地域は、神奈川県からもアクセスしやすいため、施工範囲内となっています。