INFORMATION
NOTICE | |
---|---|
2025.10.3 | |
2025.5.17 |
オリジナル施工集「SOTO」
無料にてプレゼントいたします!
当店のこだわりの施工例やエクステリアの基礎知識を学べる1冊となっています。新築のエクステリアから外構やお庭のリフォーム・リノベーション、カフェやレストランまで様々な事例をご覧いただけます。ご自宅を過ごしやすい空間にするためのヒントとしてご活用ください。
デザイナーが打合せ・設計・工事監理・現場管理までを一括で担当する |
---|
当店は、工事後にお客様が「ああすれば良かった」「こうすれば良かった」と後悔をすることがないエクステリアとガーデンの専門店を目指しています。そのためにはスタッフの能力はもちろんのこと、しっかりとお客様とコミュニケーションを取り、ご要望を伺い、プロとしてのご提案ができることが大切です。
当店のスタッフは、営業、設計、現場監督というように担当が別れておりません。担当者が責任を持って、ヒヤリングやプレゼン等のお打合せから設計、お見積作成、工事監理、現場管理までを行います。また、作業に携わる作業員(職人)も、担当者が工事内容に合わせて適正な作業員を厳選しています。
担当者がすべての工程を経験し、理解しているからこそ幅広い知識と経験でお客様にプロとしてのご提案ができます。お客様とのコミュニケーションの場を分業化(営業、設計、監督など)しないことで、伝達ミスによる失敗もありません。お客様からのご相談はすべて担当者が一任します。
お客様とのお打合せは、じっくりと時間を掛けて行わせていただきます。工事予定地で立ち話程度で終わってしまうことはありません。お手数ですが一度ご来店ください。施工例やカタログ、雑誌、サンプルなどをご覧にいただきながらご要望をしっかりと伺います。やりたいことがあると色々と夢が広がります。担当者がお客様の立場に立って、同じ夢に向かってご提案させていただきます。
神奈川県鎌倉市のエクステリア・外構とガーデン・お庭の施工例 |
---|
当社の湘南藤沢店がある藤沢市に隣接する、鎌倉市のお客様施工例をご覧ただけます。鎌倉市にお住まい、またはお引っ越しをご予定でエクステリア・外構、ガーデン・お庭の工事をお考えのお客様を心からお待ちしております。
木陰の中を歩くアプローチが美しい
和モダンスタイルのオープン外構

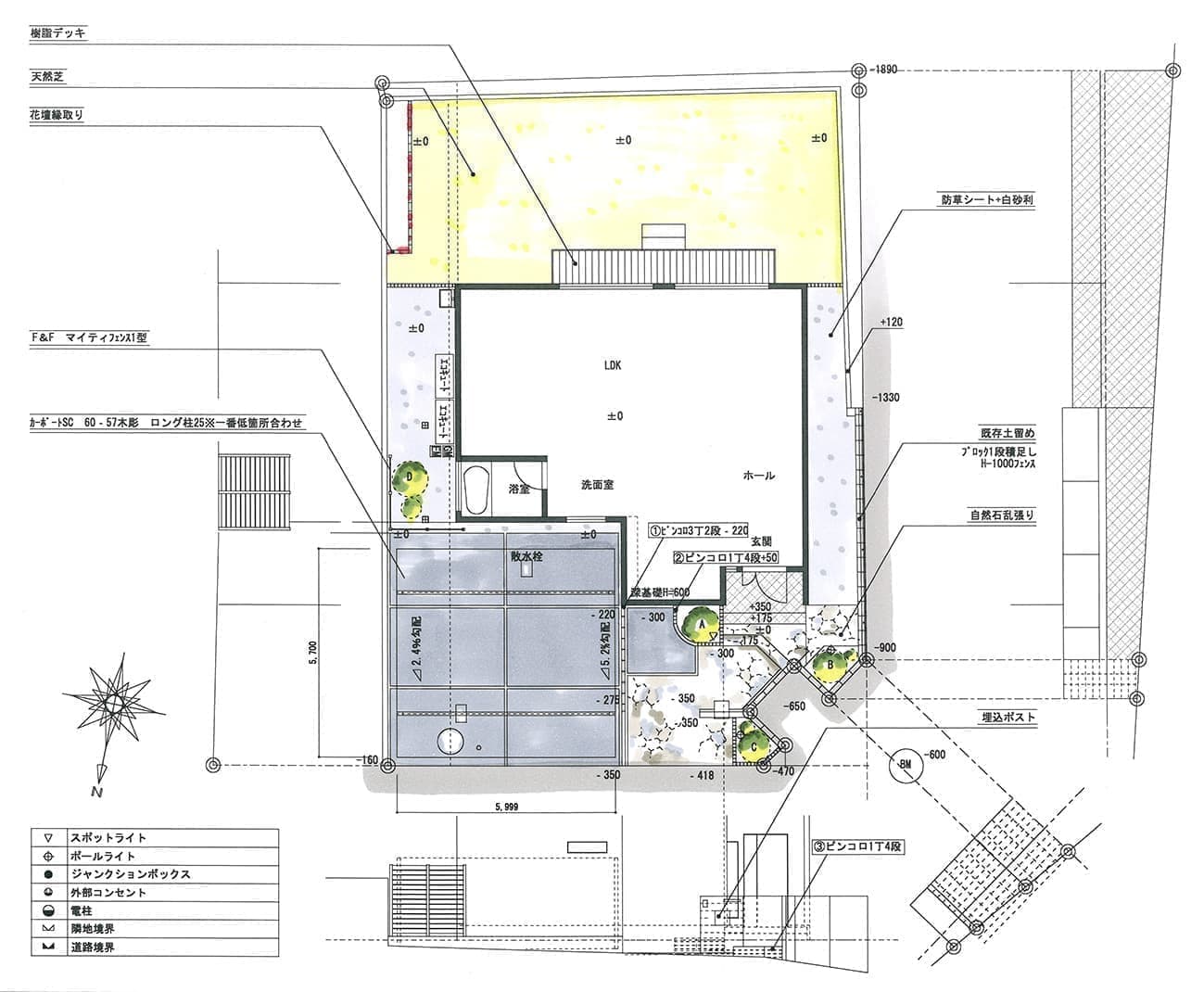
PLAN


【プランコンセプト】紅葉の美しい和モダンエクステリア
神奈川県鎌倉市の新築外構・エクステリア、お庭・ガーデンのプランです。
建物の色合いと調和した一体感のある外構にしたいと考え、LIXILカーポートSCの木彫色を使用しました。木彫色の色合いは和モダンのエクステリアとも調和し美しい仕上がりとなりました。アプローチに使用した石は長野県の諏訪鉄平石を使用しました。石張りの目地を深く入れることにより雨水の流れも綺麗に映し出します。植栽は日本原産の樹種にこだわりました。エントランスには大胆にシンボルツリーとしてイロハモミジを植栽しました。背景に窓等が無いため、LIXIL美彩のアップライトでシンボルツリーを照らし、影が建物に映るように計算したデザインとしました。お施主様の土地にはゴミストッカーがあることによりデッドスペースができてしまうため、自然に有効活用できるように考慮しました。
COMPLETED

諏訪鉄平石のアプローチと合うように、門柱にはグレーのタイルを使用し高級感が漂う門柱に仕上がりました。アプローチの階段は土地を広く利用し、植栽による木陰の中を歩くようなデザインとしました。


和モダンのエクステリアに合うように日本原産の植栽を選び、足元には下草と砂利を配置し小さな石庭を演出しました。

土地を有効活用したオープン外構ですが、植栽をすることにより視線を遮る目隠しとしました。また、駐車場からの動線を考慮したアプローチにより玄関から車への移動をスムーズに行うことができます。カーポートにはダウンライトを取り付け、夜間の駐車スペースも明るく使用することが可能です。


アプローチの石張りは目地を深くし雨水が綺麗に流れるようにデザインしました。ゴミストッカーの目隠しに常緑樹であるソヨゴを植栽、シンボルツリーには季節をお楽しみ頂けるように落葉樹であるイロハモミジを植栽しました。

お日様の当たるお庭には芝生と野菜を育てるための畑を設けました。LIXILの樹ら楽ステージを掃き出し窓から降りるための階段としました。縁側としての使用も可能なため家族団欒の時間をお楽しみ頂けます。

カーポートのダウンライトに加えシンボルツリーを照らすアップライトと、足元を照らす小さな石灯籠でライトアップしました。石灯籠の設置により和の雰囲気がより一層際立つ美しい夜景となりました。

和モダンエクステリアをより一層美しくするライトアップ
夜間のライトアップが派手になりすぎないように考慮しライトを設置しました。アプローチ付近にライトを設置し、足元を照らすことにより転倒防止などにも効果があります。また、オープン外構ですがライトを設置することにより防犯対策にも効果的です。

今回、カーポートと庭、玄関のエクステリアを施工していただきました。こちらの希望をできるだけ叶えたいという社員さんの想いがすごく伝わり、最後まで親身になって対応して下さいました。
職人さんも毎日暑い中丁寧に作業してくださり、ありがとうございました。住みながらの工事でしたが、職人さんの手作りの足場やスケジュールを合わせていただいたり気を使っていただく場面が多く、大変助かりました。
デザインはとてもよく、希望通り和モダンに仕上がりました。
本当にありがとうございました。
洋風な建物に合わせた
穏やかなナチュラルガーデン
BEFORE

AFTER

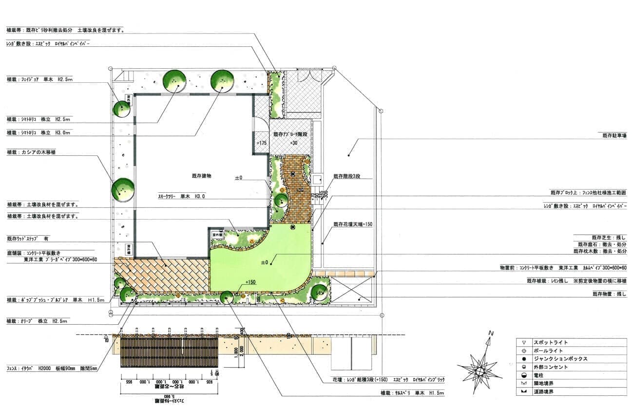
PLAN


【プランコンセプト】グリーンを豊富に取り入れた開放感のあるメインガーデン
神奈川県鎌倉市のリノベーションガーデンのプランです。
もともとあった天然の枕木は経年劣化により朽ち、芝生の不陸(表面の凹凸)が発生していたので、使いやすい舗装面のご提案をしました。
レンガで仕切られた花壇を設けることで、多くの植物を植えられるようなデザインを取り入れました。
舗装部分に人工芝を採用することでメンテナンスを軽減できます。メンテナンスを軽減したことで施主様に花壇の植物の世話を存分に楽しんで頂けます。
近年は様々なエクステリアメーカーの人工芝がありますが、本物に近い色合いの商品が豊富なので、家の雰囲気や色合いに合わせて選んで頂くことができます。
BEFORE

AFTER

BEFORE

AFTER

リビングから出たスペースには東洋工業のプラーガペイブを採用しました。
ナチュラルで色優しい色合いのスペースに仕上がりました。




玄関から庭へ続くアプローチはレンガを敷いたことで歩きやすい舗装に仕上がりました。
レンガのはっきりとした色味に植栽のグリーンがとても良く映えます。



天然木の目隠しフェンスでナチュラルにプライベートな空間を演出
高さのある目隠しフェンスは圧迫感や重々しい雰囲気が生じる場合があります。
その際には優しい色合いや風合いを感じる天然木を取り入れると、ほどよく落ち着いた空間を造り出すことができます。天然木はイタウバを使用しています。
天然木は板1枚1枚の色の違いが空間の美しさを増してくれます。使用した木材自体、とても頑丈なのでフェンスにハンギングや飾りを取り付けることもできます。
工事施工範囲 |
---|
当店では、新築やリフォーム・リノベーションの外構(エクステリア)、造園(ガーデン)工事を承っております。
新築での工事をご依頼のお客様は、必要な図面がお揃いでしたら、建築前の段階からご相談が可能です。
リフォーム・リノベーションをご依頼のお客様は、予め建築時の図面をご用意ください。
当店は、お客様とじっくり話し合い、ご要望を伺い、お客様の立場に立ってご提案ができるように、ご依頼数を制限した限定予約制となっています。

庭木のお手入れ・剪定サービス施工範囲 |
---|
当店では、剪定、伐採、抜根、刈り込み、芝刈り等を行う【庭木のお手入れ・剪定サービス】を実施しております。
お庭のお手入れが難しいという方や忙しくてお庭のお手入れをする時間がないという方のために、当店の職人が綺麗なお庭を維持し、お家が完成した時の新鮮な気持ちを常に身近に感じられるお手伝いをいたします。
庭木のお手入れ・剪定サービスの施工可能な地域は以下になります。
※上記の施工範囲以外でも、地域によっては対応可能な場合がございます。その際は、お気軽にお問合せ下さい。

神奈川県鎌倉市の特徴 |
---|
鎌倉市は市内に多くの歴史的遺跡もつ古都であり、神奈川県内でも最も歴史ある地域です。人工は約17万人、市の木はヤマザクラ、市の花はリンドウです。鎌倉駅周辺は、活気ある商店街の小町通が現在でも栄えています。鶴岡八幡宮や鎌倉大仏、長谷寺など観光名所も多く、南側は相模湾に面しています。
最近では、鎌倉の雰囲気に魅せられて移住する方も少なくありません。古き良き町並みを残しつつ、新しい住宅やエクステリア・外構が共存する地域でもあります。敷地内にウッドデッキを作られるご家庭も多くある地域です。