INFORMATION
NOTICE | |
---|---|
2025.10.3 | |
2025.5.17 |
オリジナル施工集「SOTO」
無料にてプレゼントいたします!
当店のこだわりの施工例やエクステリアの基礎知識を学べる1冊となっています。新築のエクステリアから外構やお庭のリフォーム・リノベーション、カフェやレストランまで様々な事例をご覧いただけます。ご自宅を過ごしやすい空間にするためのヒントとしてご活用ください。
デザイナーが打合せ・設計・工事監理・現場管理までを一括で担当する |
---|
当店は、工事後にお客様が「ああすれば良かった」「こうすれば良かった」と後悔をすることがないエクステリアとガーデンの専門店を目指しています。そのためにはスタッフの能力はもちろんのこと、しっかりとお客様とコミュニケーションを取り、ご要望を伺い、プロとしてのご提案ができることが大切です。
当店のスタッフは、営業、設計、現場監督というように担当が別れておりません。担当者が責任を持って、ヒヤリングやプレゼン等のお打合せから設計、お見積作成、工事監理、現場管理までを行います。また、作業に携わる作業員(職人)も、担当者が工事内容に合わせて適正な作業員を厳選しています。
担当者がすべての工程を経験し、理解しているからこそ幅広い知識と経験でお客様にプロとしてのご提案ができます。お客様とのコミュニケーションの場を分業化(営業、設計、監督など)しないことで、伝達ミスによる失敗もありません。お客様からのご相談はすべて担当者が一任します。
お客様とのお打合せは、じっくりと時間を掛けて行わせていただきます。工事予定地で立ち話程度で終わってしまうことはありません。お手数ですが一度ご来店ください。施工例やカタログ、雑誌、サンプルなどをご覧にいただきながらご要望をしっかりと伺います。やりたいことがあると色々と夢が広がります。担当者がお客様の立場に立って、同じ夢に向かってご提案させていただきます。
神奈川県川崎市のエクステリア・外構とガーデン・お庭の施工例 |
---|
東京都と隣接する川崎市のお客様施工例をご覧いただけます。川崎市にお住まい、またはお引っ越しをご予定でエクステリア・外構、ガーデン・お庭の工事をお考えのお客様を心からお待ちしております。
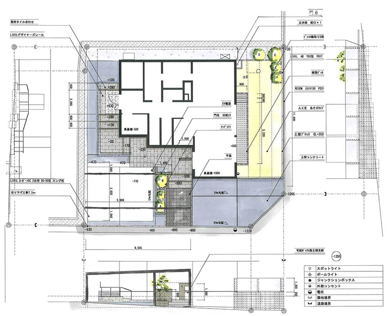
カーポートSCの梁延長を利用した
アプローチゲート

PLAN


【プランコンセプト】カーポートSCの梁延長を活かした、生活しやすいアプローチデザイン
神奈川県川崎市の新築外構・エクステリアの施工プランです。
建物の軒が大きいことに注目し、駐車場から玄関までなるべく雨や日差しを避けて往来できるアプローチをテーマにデザインしました。
道路から玄関までは高低差がありますので、踊り場を設けることで動線を広く確保し、急な階段にならないようにしてあります。
今回のプランの主役とも言えるLIXILさんのカーポートSCは、梁延長を施すことで家の外観に彩りを加えたり、車をスムーズに出し入れできるように柱の位置を調整できます。
また、延長した梁に本体と同様のダウンライトを設置できるため、夜間も安心してご利用いただけます。
COMPLETED

LIXILさんのカーポートSCは、シンプルで美しいデザインと豊富なカラーバリエーションが特徴のカーポートです。梁が見えない屋根の構造や雨樋を内蔵している美しいフォルムで様々な住宅にフィットします。
2台用、3台用では梁延長が可能で、敷地の広さや使い勝手に合わせて調節できます。
今回の施工例ではアプローチゲートとして活用しており、門周りの空間に一体感が生まれ、機能性だけでなくデザイン性の向上にも繋がります。
駐車場となる部分の縁石は元々段差がありましたので、切り下げ工事を行いました。コンクリートを打設してしまうと縁石を切り下げることが出来なくなってしまうので、注意が必要です。
縁石の切り下げ工事とは、新居を構える際、家と車道を行き来するために既存の縁石による段差を解消するために行う工事のことです。
切り下げ工事をしなかった場合、車のタイヤを消耗させてしまったり、車体を傷つけてしまいかねません。被害を未然に防ぐためにも、切り下げ工事は外構工事の際に行うことをお勧めします。
歩道の切り下げ工事は道路の管理者に申請が必要となりますので、工事の前に確認が必要となります。


中央にある花壇はデザインだけでなく、駐車場とアプローチの高低差を解消するために設けてあります。
建物前の道路が坂道になっているため、駐車場と同じようにアプローチの勾配を設定しまうと勾配が急になりすぎてしまいます。
外構工事では、適切な勾配をつけることで、雨水が流れるような工夫が必要になります。


二つに隔てた門柱の裏には蛇口を施行しました。
立水栓を立てずに門柱ブロックの内部に水道管を通したり、水受けをポーチで使用したタイルでモザイクタイル風に加工するなど、職人の細かい技による工夫が随所に見られます。

高台となるお庭には、土圧を抑えられる土留めブロックを施行しました。土留めを行うことで、敷地の高低差を活かしたお庭にすることができます。
また、ブロックの上にはLIXILさんのフェンスAB YS3型を設置しました。建物に合った目隠し用のフェンスを設置することで、プライバシーの保護や見栄えの良さに加え、防犯効果も高まります。


広いお庭には人工芝を施行し、掃き出し窓から出入りするためのウッドデッキ(LIXIL:樹ら楽ステージ)を設けました。
さらに立体花壇を施行し、オリーブやフェイジョアといった常緑樹を植栽しました。常緑樹は季節を通して葉があるため、一年を通して緑を楽しめるほか、目隠しとしての効果も期待できます。



夜の住宅を美しく彩るライティング
カーポートの天井に等間隔で配置されたダウンライトがファサードを美しく演出します。さらに、カーポートSCの梁をアプローチゲートとして活用することで、延長した梁の下にもダウンライトを設置できます。
花壇のメインツリーには下から照らすアップライトを設置し、建物に樹木の影が映し込むように設計いたしました。
樹木の種類や高さに合ったライトを使用することで、美しさをさらに引き立て、建物が昼と夜で異なる印象になります。
アプローチをライトで照らすことで歩きやすくなり、転倒などの危険を回避できます。また、敷地内が明るくなるため、防犯面での効果も期待できます。
緑が豊富なシンプルモダンエクステリア

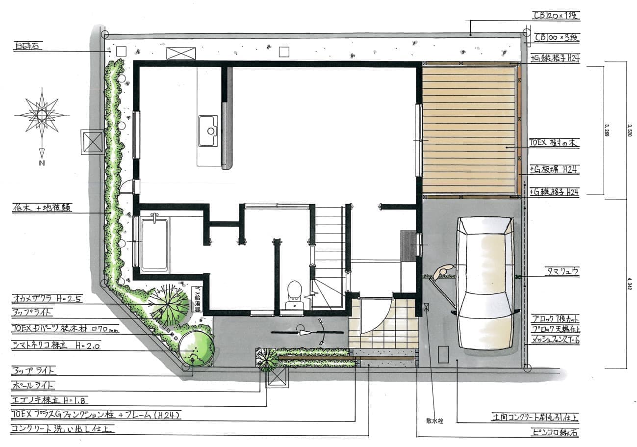
PLAN


【プランコンセプト】テーマは一体感と豊かな緑とウッドデッキ
神奈川県川崎市の新築外構・エクステリアのプランです。
正面玄関が歩道のすぐ脇になるので、通行人の方が敷地内に踏み入れることのないように存在感ある門扉を設計しました。汎用素材のGフレームを採用することで自由な高級門柱を作る出すことが可能です。アルミにラッピングされた柿渋カラーのGフレームは、ぬくもりを保ちながら高級感をグッと引き上げてくれます。そして、モダンな住宅とエクステリアの一体感を大切にするため、門からウッドデッキにかけて同じ縦格子の資材(Gフレーム)を採用しています。
駐輪場は目立ちにくくするように考え、そして毎日の使用に支障のない玄関から近い縦格子裏に設けました。東側は歩道沿いなので、グリーンベルト(緑で作るライン)で通行人への環境も配慮しています。
COMPLETED

Gフレームを組み合わせた門扉は、来客者がすぐに入り口を把握が可能な導線を産んでくれます。また、門灯、表札、インターホンが綺麗に収納できるので無駄が全くありません。
右奥のウッドデッキには、門柱と同じGフレームと縦格子フェンスの採用で、住宅と門とウッドデッキに統一感を与えました。防犯と目隠しを考え、縦格子部分と板塀部分にフェンスを分けました。リビングから繋がるウッドデッキは、メンテナンスフリーの樹脂タイプウッドデッキを採用しています。目の前はカースペースにもなっているので、周囲の目を気にせずくつろげる空間です。




自転車は、夜でも収納しやすいように、照度タイマーによってスタイリッシュなポールライトが自動点消灯します。直線に立ち上がる縦格子は、一定のピッチで隙間が開いてるので、高さがあっても圧迫感を感じさせず、見えるからこその防犯の役割を果たしてくれます。金属製の住宅外壁と金属製の門柱から感じる冷たい感じを、植栽スペースを設けることで柔らかく、そして暖かく演出しています。



道路側に面した植栽スペース
東側の角部には小さなお庭を作り、春にはお客様ご希望の桜も楽しめます。桜は少々管理が必要ですが、咲き誇った時期は、実に見事です。夜にはスポットライトで、美しく植栽がライトアップされます。
工事施工範囲 |
---|
当店では、新築やリフォーム・リノベーションの外構(エクステリア)、造園(ガーデン)工事を承っております。
新築での工事をご依頼のお客様は、必要な図面がお揃いでしたら、建築前の段階からご相談が可能です。
リフォーム・リノベーションをご依頼のお客様は、予め建築時の図面をご用意ください。
当店は、お客様とじっくり話し合い、ご要望を伺い、お客様の立場に立ってご提案ができるように、ご依頼数を制限した限定予約制となっています。

神奈川県川崎市の特徴 |
---|
当社大和事務所から横浜市を挟んでほど近い川崎市は、人工約145万人の政令指定都市です。7区の行政区(川崎区、幸区、中原区、高津区、宮前区、多摩区、麻生区)を持ち、神奈川県の北東部に位置しています。市の木はツバキ、市の花はツツジです。
川崎市は東京都と神奈川県の境になっており、東京との近さから近年では若者の街として近代化してきました。丘陵部は新興住宅地が増加して、現在では多くの方が生活をしている地域です。
最近では、新築外構やエクステリア・ガーデンリフォームに力をれている住宅が増えています。