緑と調和したリノベーションガーデン
               神奈川県横浜市黄川平様邸施工例 
             
 
             
 
                 参考費用:540万円(税抜)    
             
 
            BEFORE
               施工前 
             
 
             
 
               AFTER
               施工後 
             
 
             
 
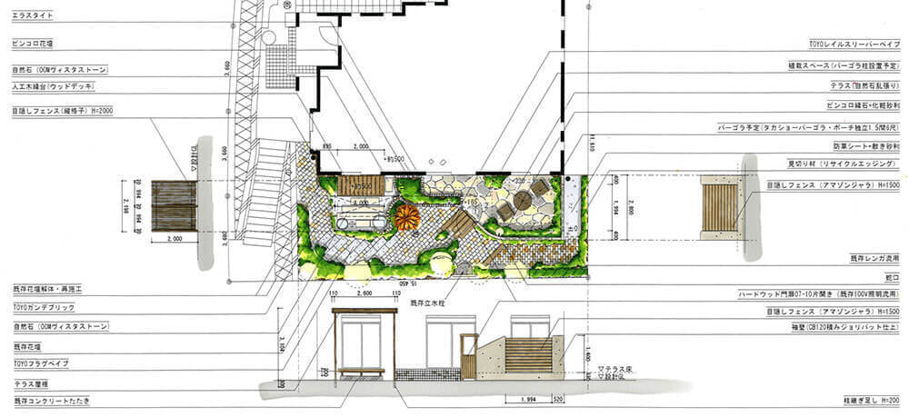
               PLAN
               イメージパース・図面 
             
 
             
 
                
 
               【プランコンセプト】お庭の全面リノベーション
神奈川県横浜市のリノベーションガーデンプランです。
住宅のリフォーム中に外構のリノベーションのご依頼をいただきました。既存のウッドデッキがだいぶ古くなり、メンテナンスも難しい状態でしたのでメンテナンスフリーのお庭をご要望でした。奥様がお庭いじりがお好きだったので、既存植栽を残しつつ、使いやすいお庭への変身が必要となりました。
和室前とリビング前を外空間としても分け、ご主人が夕方にのんびり座ってお酒を飲むことができるえんがわ。日中に奥様がお茶を飲んで休憩できるテラスをご提案しました。
双方をつなぐ園路は、最新のインターロッキングを使用して雑草等の心配がない舗装された小道となっています。
BEFORE
               施工前 
             
 
             
 
               着工前の和室前。リビングからのウッドデッキが延長されています。
AFTER
               アフター 
             
 
             
 
               和室前は和庭に
人工木で広めの濡れ縁を作ることで、腰掛けながらおつまみやお酒も置けるスペースになりました。元々お持ちだった水鉢も和室前に集め、完成した空間となりました。
ウッドラッピングが施されたLIXILのシュエットをテラス屋根として利用し、雨天時でもご利用いただけるスペースとなっています。
 
 
                
 
                
 
               長年使われてきた枕木の立水栓。天端に腐食が見られます。
 
 
               既存のガーデンパンはそのままに、コンクリート枕木の立水栓に交換しました。
 
 
                 
 
                 
 
                 
 
                 
 
                 
 
                 
 
                 
 
                 
 
               ウッドデッキとは一味違う、植栽スペースを設けたテラス
半永久的にご利用できるように、ウッドデッキを自然石乱張りのテラスへリフォームしました。
外周に土留めのを作ることで、テラス内に植栽スペースを作ることができます。足元に緑があるので、とても落ち着く柔らかい空間になりました。外壁には水道も通し、お庭から戻って手を洗い、ティータイムを楽しめます。
わざわざ玄関を通らずとも、リビングとガーデンを行き来できるストレスない導線になっています。
