お手入れが簡単なお庭と
おしゃれなサイクルポートの設置
BEFORE

AFTER

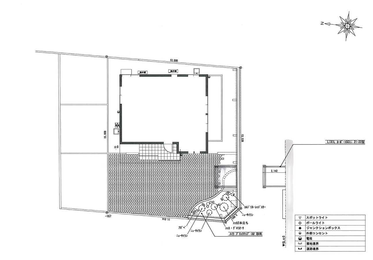
PLAN


【プランコンセプト】扱いに困っていたスペースの有効活用
神奈川県大和市の外構リノベーションプランです。
元々植えていた樹木が年々大きくなり、手入れが難しいため花壇の規模を縮小したいとのご依頼でした。
また、既存の樹木にはチャドクガ※という害虫がつき、大変危険だったため樹木を伐採して新しい植物を育てたいとのご要望がありました。
さらに花壇の縮小に伴い、空いたスペースにはサイクルポートを設置し、お子様の自転車を置くための駐輪場としました。
※チャドクガとは、ツバキ科の植物に発生する害虫です。幼虫は全身に微細な毒針を持っており、これを毒針毛(どくしんもう)と言います。
触れるとかゆみを伴う皮膚炎を起こし、2〜3週間ほどかゆみが続きます。
また、かゆみのある部分をかいてしまうと被害が拡大するため、早期に病院を受診するか市販の塗り薬で対応することをおすすめします。
BEFORE

AFTER

職人の絶妙な調整により既存の花壇の形を違和感なく整え、新たにサイクルポートを設置した、おしゃれな駐輪場にリノベーションしました。 サイクルポートには、LIXILさんの「カーポートSCミニ」を施工いたしました。 サイクルポートを設置することで、自転車が雨に濡れないだけでなく、黄砂や鳥のフンによる汚れを回避できる、直射日光に当たらないようにできるなどのメリットがあります。
カーポートSCミニは、LIXILさんの大人気カーポート「カーポートSC」のバリエーションの一つです。 カーポートSC同様、アルミ製の屋根材や雨樋が柱の中に収納されているなどの特徴を持ち、シンプルかつスタイリッシュな見た目がさまざまな住宅にフィットします。
カラーは通常のカーポートSCと同じものを選ぶことができます。天井には木調色を選ぶこともできるため、デザインの幅が広がります。
サイズは、自転車2台ほどのスペースを持つ21-29型と2台以上置くことのできる21-50型の2種類があります。また、連結して利用することもできるため、集合住宅での利用も考えられます。
自転車の固定に役立つサイクルキーパーや夜間でも安心して利用できるダウンライト、視線をカットするサイドスクリーンなど、さまざまなオプションが選択可能です。


花壇は、近年注目を集めている「ドライガーデン」にリノベーションしました。
ドライガーデンは、乾燥を好む植物で統一されているため、水やりの手間などがなくお手入れが簡単です。手軽におしゃれなお庭を楽しみたいという方にぴったりのお庭です。
しかし、日当たりの悪いお庭や排水の悪いお庭とは相性が悪いため、検討の際は十分にご注意ください。
今回植えた植物は、「アガベ」「ニューサイラン」「ユッカ・グロリオーサ」「コルジリネ・レッドスター」です。

既存のデザインを活かした理想のお庭へ
住宅とのイメージを崩さないためにも、可能な限り既存のデザインを取り入れながら施行いたしました。
既存の石やライトを全て取ってしまうのは勿体ないと感じましたので、石はドライガーデンの一部として、ライトはそのまま残すことにより、駐輪場が夜でも安心して使えるようにサイクルポートの位置を調整いたしました。

この度は、サイクルポートの設置と植栽の再設計等ありがとうございました。
植栽やエクステリアのことは何も分からなかったので、今回デザインアースさんに相談してとても良かったと思います。
サイクルポートの選定はもちろんのこと、植物や石の配置や色味まで細かくお話しいただいて、理想とする庭ができたと思います。エクステリアデザインにペットのことや好きなものまで聞かれるとは思いませんでしたが、それだけ依頼主の生活環境や人となりに寄り添おうとする姿勢がとても良かったです。
職人さんの対応も良く、安心してお任せすることができました。
これで息子たちの自転車も雨で濡れることなく、新しい植栽たちに囲まれて気持ちよく暮らすことができます。
改めて、ありがとうございました。