洋風な建物に合わせた
穏やかなナチュラルガーデン
神奈川県鎌倉市D様邸
参考費用: 335万円(税抜)
BEFORE
施工前

AFTER
施工後

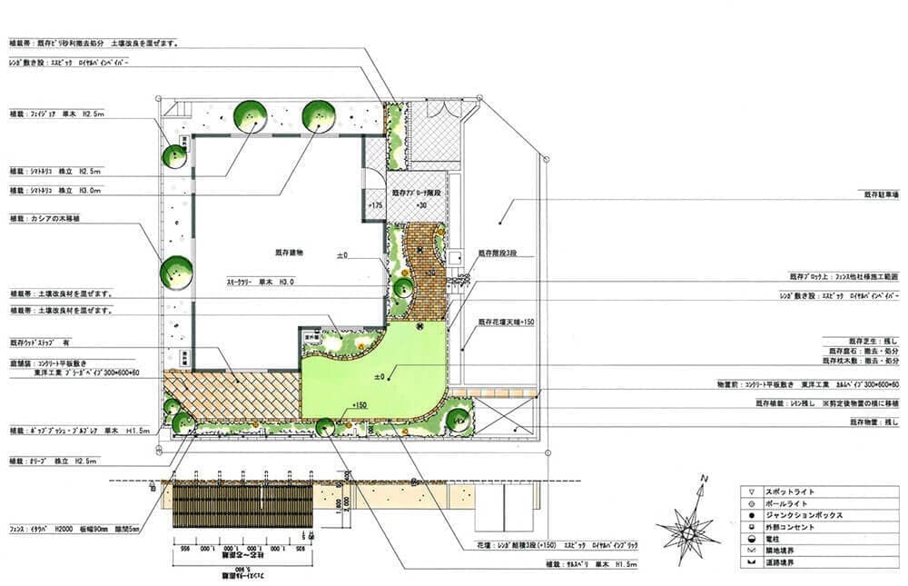
PLAN
イメージパース・図面


【プランコンセプト】グリーンを豊富に取り入れた開放感のあるメインガーデン
神奈川県鎌倉市のリノベーションガーデンのプランです。
もともとあった天然の枕木は経年劣化により朽ち、芝生の不陸(表面の凹凸)が発生していたので、使いやすい舗装面のご提案をしました。
レンガで仕切られた花壇を設けることで、多くの植物を植えられるようなデザインを取り入れました。
舗装部分に人工芝を採用することでメンテナンスを軽減できます。メンテナンスを軽減したことで施主様に花壇の植物の世話を存分に楽しんで頂けます。
近年は様々なエクステリアメーカーの人工芝がありますが、本物に近い色合いの商品が豊富なので、家の雰囲気や色合いに合わせて選んで頂くことができます。
AFTER
アフター






リビングから出たスペースには東洋工業のプラーガペイブを採用しました。
ナチュラルで色優しい色合いのスペースに仕上がりました。




玄関から庭へ続くアプローチはレンガを敷いたことで歩きやすい舗装に仕上がりました。
レンガのはっきりとした色味に植栽のグリーンがとても良く映えます。



天然木の目隠しフェンスでナチュラルにプライベートな空間を演出
高さのある目隠しフェンスは圧迫感や重々しい雰囲気が生じる場合があります。
その際には優しい色合いや風合いを感じる天然木を取り入れると、ほどよく落ち着いた空間を造り出すことができます。天然木はイタウバを使用しています。
天然木は板1枚1枚の色の違いが空間の美しさを増してくれます。使用した木材自体、とても頑丈なのでフェンスにハンギングや飾りを取り付けることもできます。