スペースを有効活用したセミクローズド外構
スペースを有効活用した
セミクローズド外構
BEFORE

AFTER

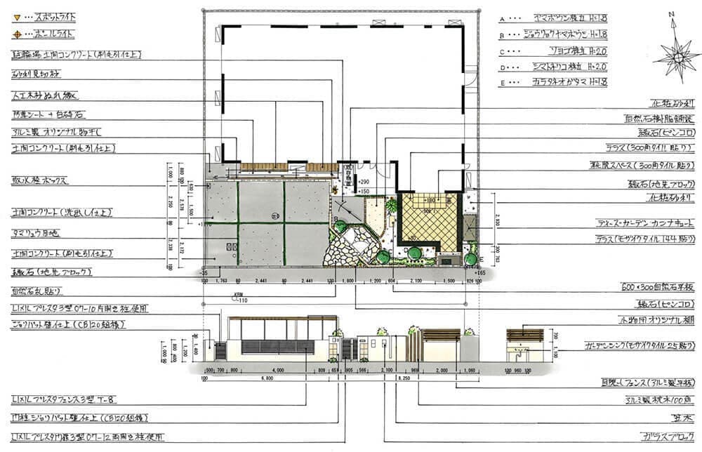
PLAN


【プランコンセプト】エクステリアの全面リノベーション
神奈川県平塚市のエクステリアリノベーションプランです。
住宅のリフォームが終わったので、外構のリフォームをお考えとのことでご依頼いただきました。南側をすべて解体し、心機一転のリノベーション工事となりました。
駐車場以外はクローズドとしたセミクローズ外構をご要望でした。敷地を上手に活用するため、お庭をテラスにしてオリジナルのガーデンシンクやディーズガーデンの物置を設置し、ご家族でBBQなどご自由にご利用できる空間をご提案しました。
物干しもエクステリアと一体として、LIXILのGフレームでオリジナルのものをご提案しました。また、プロパンガスの交換時に利用できる勝手口を用意し、業者さんの敷地内の出入りを最小限にしています。
AFTER

物置や花壇で狭くなってしまっている、着工前の掃出窓前。

リノベーションで広く明るくなりました。物置はディーズガーデンのカンナキュートを設置して、モニュメントのような印象に。既存のコンクリートタタキは、テラスと同様のタイルで美しくなり、空間もずっと広くなりました。

道路沿いにあった既存の袖壁と花壇。

袖壁をなくし、アルミ製ウッドラッピング枕木やフェンス、距離の短い袖壁を新設することで圧迫感のない境界が出来上がりました。さらに水道を移設し、ガーデンシンクにすることで使いやすく汎用性が高くなりました。樹木への水やりは、側面の蛇口から給水が出来るようになっています。

着工前の物干しスペース。

袖壁で駐車場との境界をはっきりとさせました。LIXILプラスGの材料を組み合わせることでスタイリッシュなオリジナル物干しとなっています。足元は、人工木ウッドデッキの濡れ縁となっているので、室内からの物干しへ簡単に手が届きます。







コンクリート洗い出し仕上げと刷毛引き仕上げを組み合わせた市松模様の駐車場


お家のリフォームとバランスの取れた外構リノベーションへ
せっかくお家が綺麗になっても、外構がそのままではやはり台無しです。外構をフルリノベーションすることで、敷地全体が美しくなりました。また、駐車場やお庭の活用方法、生活導線を考えることで、以前よりもずっと使いやすく生活しやすい空間へ大変身しました。とても広く明るくなったとお客様にも大変お喜びいただきました。

家と違って外構のイメージはなかなかつきにくかったのですが、担当の吉川さんに、こちらの要望をよく聞いて頂き素敵な庭が完成しました。打ち合わせを進めていくうちに何度もこちらの要望が変わり最終デザインの決定まで相当期間を要しましたが、吉川さんには最初から最後までとても誠実な対応をして頂きました。
施工を担当していただいた方も、当方の家族や近隣の方にまで気を使って作業して頂きました。作業期間も長かったので、工事が終わる頃には、とても他人とは思えないほど親しみも湧きました。もちろん仕事ぶりもとても丁寧で満足しています。
これからも、また外構関連で何かお願いするときはぜひ吉川さんのところでと思っています。今回は色々とありがとうございました。