デザインアース エクステリア&ガーデン
TOP | 集合住宅・商業施設の外構施工例 | 至福の時間を過ごせるお洒落なカフェ

至福の時間を過ごせるお洒落なカフェ

オランダ坂珈琲邸 町田金井店様施工例

 

参考費用:225万円(税抜)
カフェのエントランス

PLAN

イメージパース・図面
オランダ坂珈琲邸町田金井店パース
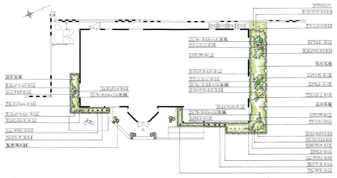
オランダ坂珈琲邸町田金井店の平面図
 

デザインコンセプト

長崎県のグラバー邸をイメージしたオランダ坂珈琲邸。江戸から明治に掛けて西洋の文化が取り込まれていく、この時代背景を大切にしながら設計しました。お客様のご要望によりコニファーを中心に構成しています。

大きさ、色とりどりのコニファーを上手に使い、動きある樹木配置にすることでリズミカルなガーデンデザインにしています。ポイントポイントで植込みをまとめてメリハリをつけることで、見る人に強い印象を残せるようにしました。


COMPLATED

完成事例
コニファーガーデン
 

メインガーデン

建物の角部分に当たるメインガーデンです。センターにゴールドクレストを植え、その周りを様々なコニファーが取り巻くようにしています。黄色~深緑のコントラストが美しく感じさせます。

入口のグリーンベルト
 

店舗を囲むグリーンベルト

建築物のまわりは、ほとんど花壇になっています。建築物外周に植物を植え込むことで、構造物全体が明るく柔らかい印象に仕上ります。緑が豊富にあると、美しく映り思わず足を運んでしまいます。

自然石乱張りのスロープ

花壇

つる性植物

テラコッタの植木鉢

エントランス周りの植木鉢に植えられた、つる性植物のアイビー(ヘデラ)を柱に巻きつけるように誘導します。柱から離れるようにメッシュを張り巡らせて、柱を痛めないように工夫されています。

店舗エントランス
 

雪見ガラスの小ガーデン
 

雪見ガラスの小ガーデン

座敷席に付けられた雪見ガラス前に設けられた小さなガーデンです。外からはお客様の姿を遮り、中からは植物を見おろすように配置しています。

駐車場と植栽帯
 

広い駐車場
 

駐車場まわりの植栽帯

新築店舗なので、完成後の検査があります。町田市の検査基準をカバーした植樹面積と高さで全体を仕上げています。駐車場まわりに植物があると全体が明るく感じられます。

ライトアップされた店舗
 

休憩スペース
 

花壇の照明

エントランスの植木鉢

夜の店舗
 

夜間のエントランス

日没後のエントランスです。店内からあふれる光と外灯によって、建物が浮かび上がるように感じます。エントランス周りのテラコッタとつる性植物が空間をさらに美しくしています。