アルミフェンスを使わずに塗り壁と
枕木で構成したナチュラルな外構
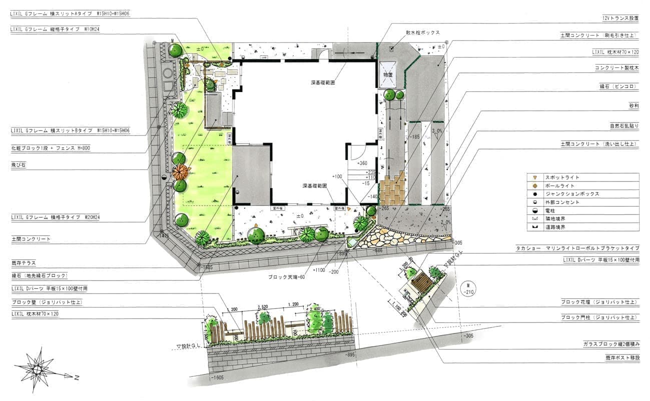
Plan No. AY20150712
施工面積:134.0㎡
参考費用:445万円(税抜)
PLAN
イメージパース・図面



既存の擁壁で高低差のある土地です。お家の正面となる東側は、アルミフェンスを使わずにデザイン性を重視したプランになっています。
玄関前の門柱を塗り壁と木目のアルミラッピング材を組み合わせ、木目のアルミラッピング枕木と塗り壁をランダムに組み合わせています。窓の前には中高木の常緑樹を植えて、目隠しとしました。塗り壁、枕木、樹木で圧迫感のないナチュラルなフェンスです。
南側は広いお庭のスペースとなっているので、目隠しやポイントとなる部分に樹木を植えています。全体は芝生で平坦に仕上げ、南西側にLIXILのプラスGを使用した物干しスペースを設けました。自由度の高いプラスGは、くもりガラス(ポリカーボネート)で明かりを取り入れながら、洗濯物が外側から見えないようにデザインしています。洗濯後に掃出窓から出入りをして、洗濯物を干しても人の目を気にすることはありません。
駐車場は車を最大2台まで停めることができます。なるべくコンクリート面積を減らすように轍に合わせたデザインとしています。駐輪スペースも確保し、自転車も十分に駐車できる敷地となっています。