自然石を使ったシンプルでスタイリッシュなオープン外構のデザイン・プラン
Plan No. MA20191025
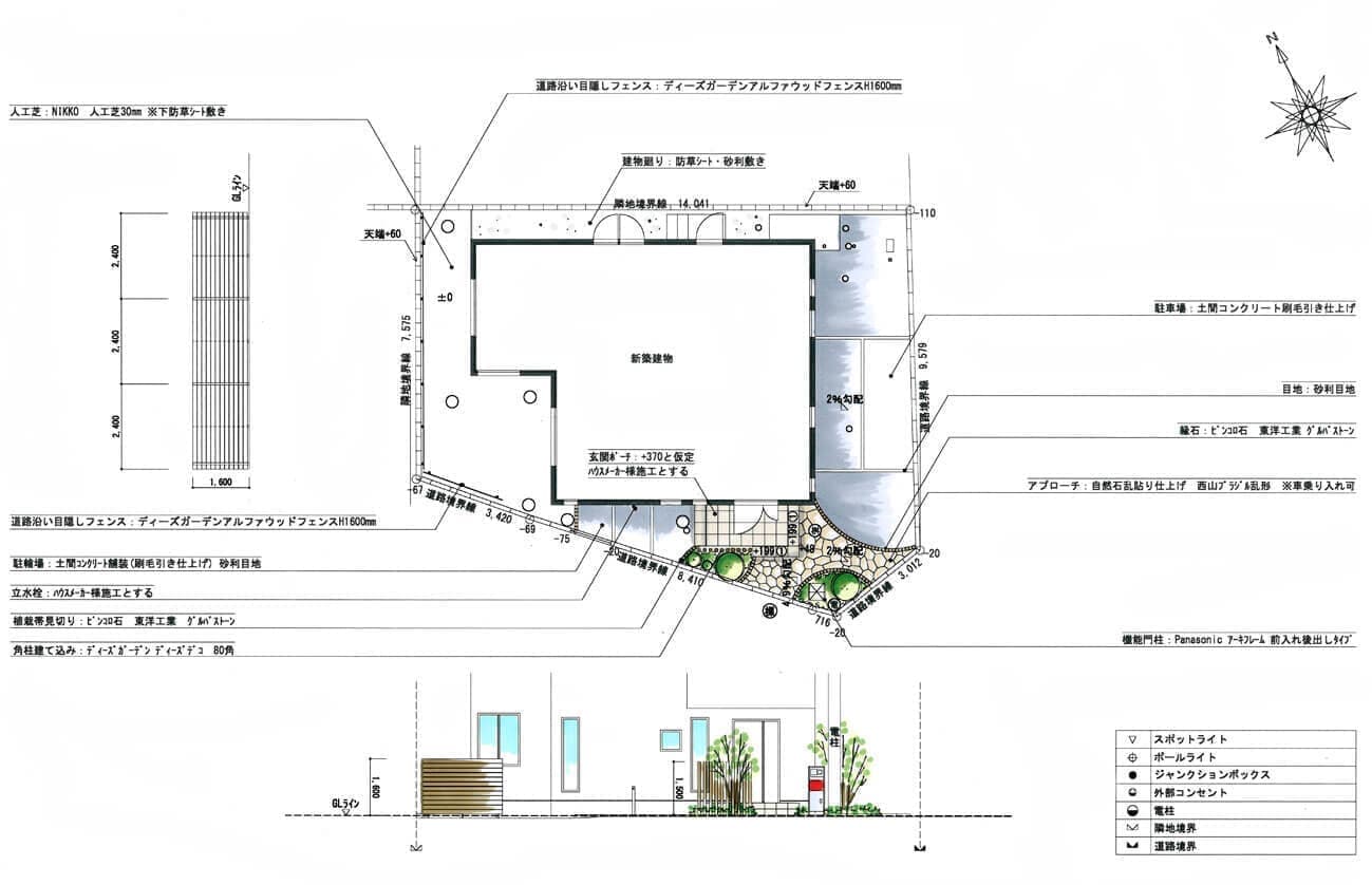
施工面積:52㎡
参考費用:305万円(税抜)
PLAN
イメージパース・図面


宅配ボックスとポスト一体型の商品はスタイリッシュな色合いのものを選定することで、外構全体のアクセントになります。
アプローチは自然石を使って曲線状に敷くことで、無機質なイメージが緩和され、穏やかな印象を与えます。また舗装材と植栽帯のグリーンのメリハリがつき、印象的なデザインになります。
玄関ドアの前には木目調の角材を立てることで、さりげなく目隠しをすることができます。