高低差のある敷地で転落防止を
考えた外構プラン
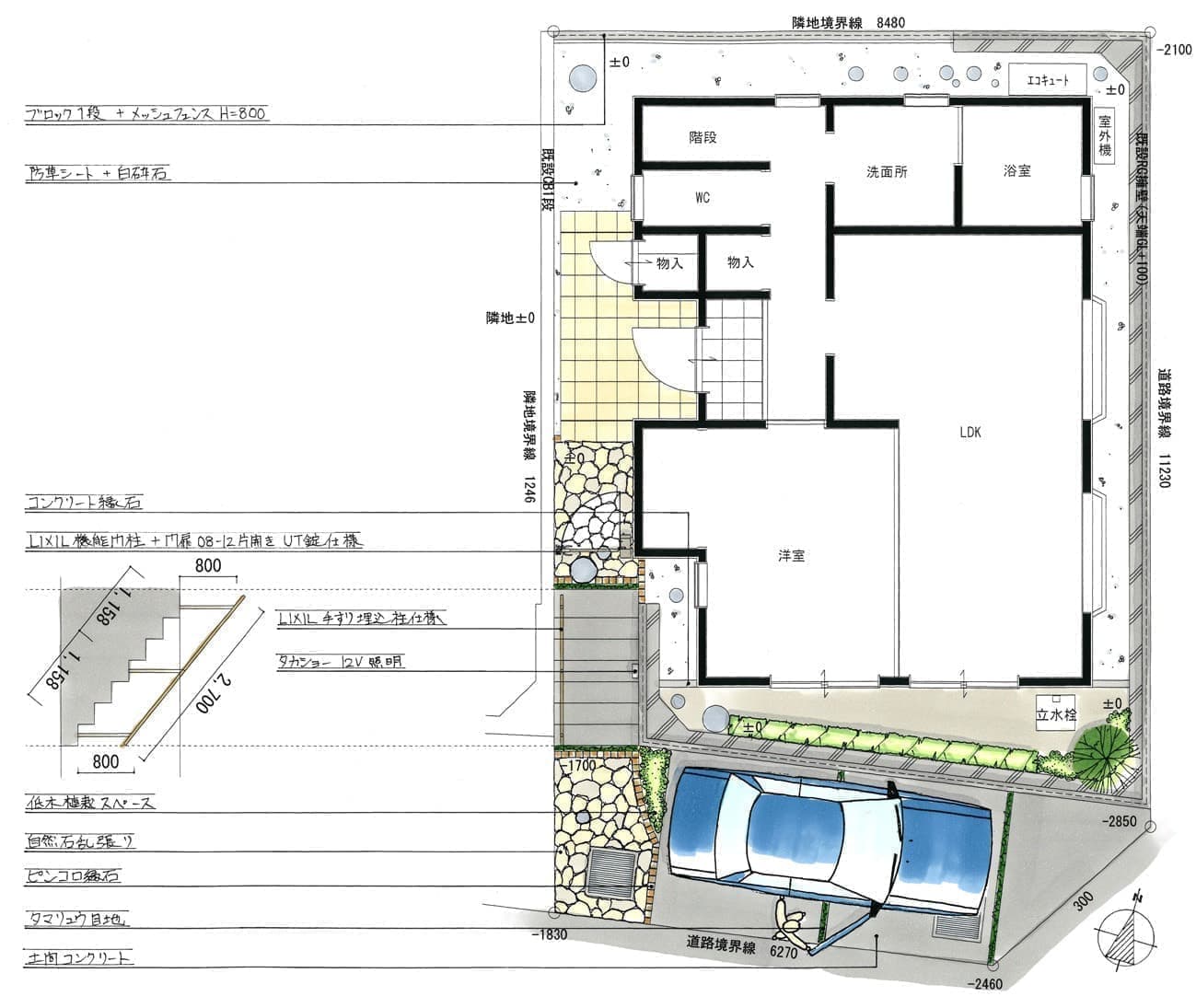
Plan No. AY20131027
施工面積:43.0㎡
参考費用:140万円(税抜)
PLAN
イメージパース・図面


高い擁壁の上に建物が建っている場合は、転落防止の危険性が考えられます。小さなお子様がいらっしゃるご家族は、特に気をつける必要があります。分譲地であらかじめ擁壁が作られた土地・敷地は、階段等も既に完成していることが多いため、エクステリア・外構でのプランニングが非常に大切になります。
建物引渡し時は、フェンスが設置されていることがほとんどないため、外周にブロック1段を増し積みしてフェンスで囲っています。階段を上がりきった場所は、機能門柱に柱の役割を持たせた門扉を取り付けました。限られたスペースの中でも、ポストと表札、門扉の機能を併用することができます。門扉の左側は、お庭から階段への通り道となっているので、こちらのプランではクローズしていません。小さいお子様がいらっしゃる場合は、片開きの門扉を取り付けると良いでしょう。掃出窓正面には、生け垣を作り、お部屋から見ても圧迫感のない目隠しとなっています。
分譲地の階段は、蹴上が高い場合が多いので、手すりをつけて上り下りの際に掴めるようにしています。また、階段の途中の擁壁にダウンライトを取り付け、夜間に足元を照らせるようにしています。暗い時間でも安全に階段を使用できます。
階段前後の駐車場部分と踊り場には自然石乱張りを敷き詰めて、こちらが玄関であることを視覚で知らせています。駐車場とアプローチの境は、レンガで目地を切り、植栽帯を設けています。駐車場の土間コンクリートの目地にもタマリュウを植えて構造物の堅いイメージを、植物で柔らかく印象づけるようにしています。