アプローチを広く取りながらも
車2台分の駐車場と駐輪場を備えた外構
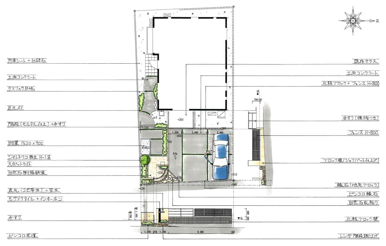
Plan No. AY20140923
施工面積:89.0㎡
参考費用:295万円(税抜)
PLAN
イメージパース・図面


道路に面した東側に、広い面積のある敷地です。最大3台の車を停めることが可能な広さです。しかし余分に駐車場があっても、利用されなければ意味がありません。アプローチ部分を広めにとって、使いやすいエクステリア・外構のプランとしました。
アプローチ入り口の左右の門柱は、前後にずらしお互いを近づけることで、正面から中が見えづらくしています。そして、門柱の位置が前後しているので、人が通るための生活導線に支障がないデザインとなっています。左側門柱の奥には、物置を設置して、屋外の収納スペースを確保しました。また、正面からは物置が見えづらくなるように、メインツリーを植えています。植物で物置を隠すことで、景観を保っています。階段の段数を分散し、付近には手すりを取り付けることで、足の悪い方でもなるべくストレスのない導線としました。アプローチは夜間になるとLEDライトで明るく照らされるので、昼夜関係なく歩行に安全に歩行が可能です。敷地内の南東側には、電信柱があるため、そこを花壇スペースにして電信柱の存在感を少しでも軽減するように努めています。
駐車場は、十分に2台停めることができるので、ご家族の自転車やバイクを停める駐輪スペースも設けました。広くなることで駐車場としての汎用性が広がります。駐車場後ろの建物側には、既存のテラスがあるので、土留ブロックと一体化をしてスペースの無駄を最小限に抑えています。小さなお子様が落下する危険もあるので、土留ブロック天端にはフェンスを取り付けて安全性も考えました。