樹脂製ウッドデッキにアレンジを加え
収納も考えたガーデンデザイン
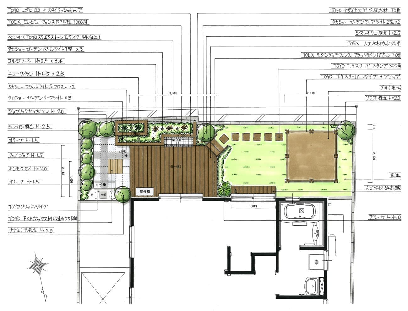
Plan No. AY20140526
施工面積:34.5㎡
参考費用:240万円(税抜)
PLAN
イメージパース・図面


南側のお庭にウッドデッキや家庭菜園スペースを作ったガーデンデザイン・プランです。ウッドデッキは樹脂製の人工木、菜園スペースはコンクリート製の人工枕木を使用し、メンテナンスフリーとなっています。
掃出窓の前にウッドデッキを作り、お家の床(フロアーレベル)と合わせて外空間と内空間を一体化させています。ウッドデッキ前は、あえてフェンスを付けずに花壇にしています。花壇には造作ベンチも作り、ご家族が腰掛けることができるようにしました。花壇の中には低木を植えることで、目隠し効果も生まれます。
ウッドデッキ東側は、TOYO工業のソリッドペイブという商品を使い、階段の代わりとなるテラスにしています。テラス中央にはオプションのFRPボックスを設け、収納機能を持たせました。植物剪定用のハサミや野菜の種などを入れることができます。室内から斜めの角度で外を見たときの目隠し効果として、テラス外周には中高木を植えています。
西側は芝生のエリアとして、和室の前は濡れ縁を置いています。お天気の良い日には日向ぼっこをしながら腰掛けられます。素材は樹脂製の人工木を使用しているので、腐食の心配はありません。芝生中央には、コンクリート製の枕木で囲った家庭菜園エリアを作りました。奥様の趣味のスペースとしてご活用いただけます。