ガレージのあるカリフォルニアスタイルな
オープン外構デザイン
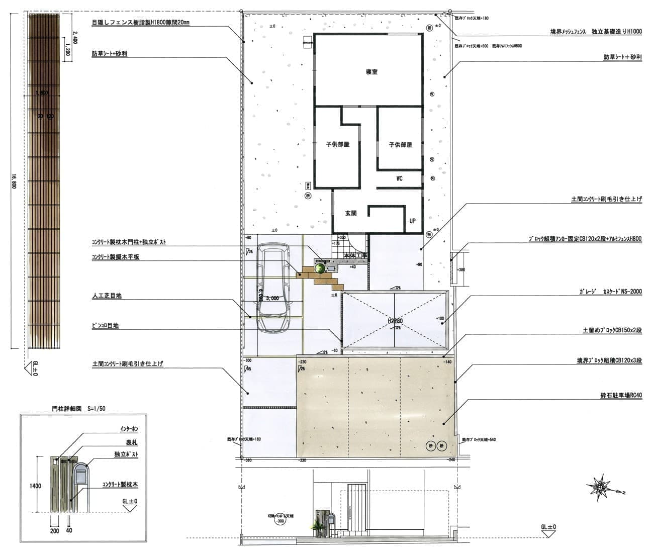
Plan No. 20171115
施工面積:175.0㎡
参考費用:490万円(税抜)
ガレージのある
カリフォルニアスタイルな
オープン外構デザイン
Plan No. 20171115
施工面積:175.0㎡
参考費用:490万円(税抜)
PLAN
イメージパース・図面


全体的にコンクリートベースの落ち着いた色味とワインポイントの植栽を取り入れることで、空間を広く活用。生活自由度の高いカリフォルニアスタイルをデザインしています。
門柱はTOYO工業の擬木コンクリート枕木材の「レイルスリーパーラフト」を選択。少し朽ちた質感を表現します。ポストは「ボビ」を使用し、機能門柱にはないオリジナリティを大切にしています。ワンポイントとして植えた「ソテツ」は、暖かい海辺の雰囲気を感じさせます。
境界フェンスは、高さ1.8mの目隠しフェンスです。経年劣化と腐食を考え、木目調樹脂製フェンスのマイティウッド使用。板を横向きに貼り付けることで、奥行き感をより強調し、空間を広く感じることができます。
ザ・アメリカを感じさせる金属質のガレージ。軽自動車が一台入り、色のバリエーションの豊富なエスビックの「カスケード」を使用しています。倉庫内でバイクいじりや工作室としてもご利用いただけるご自宅の『ベース』として活躍します。
住まれる方にとって飽きの来ない色合いと素材に、デザインを取り入れた外構です。