タイルテラスや自然石を使用した
気品のある美しい外構デザイン
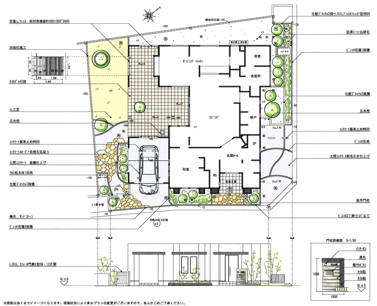
Plan No. KO20171221
施工面積:172.7㎡
参考費用:780万円(税抜)
PLAN
イメージパース・図面


深い軒と強調されたタイルの水平ラインが美しいお家です。外構でお家の要素を活かすプランを作成することで、お家がより引き立ち一体感のある美しさが保たれます。
玄関前の造作門柱は異なるサイズのブロックを2種使うことで凹凸感を演出します。凹凸は高級感を増し、同時に重厚感も表します。表札上部の凸部下にはタイマーと明暗センサー付きの間接照明を取り入れています。門柱の上部と側面は建物の壁に合わせたジョリパット塗り壁としています。正面は、化粧としてオンリーワンのセラミックタイル(シャビーウッド)を貼り付け、温もりと美しさを取り入れています。ポストは壁付けを使用し、タイルの美しさを損なわないように、オンリーワンのノイエキューブシャビーウッドタイプを使用し同系色でまとめました。
外周正面には鋳物のLIXILラフィーネ門扉とワイドオーバードアを使用し、クローズド外構としています。外周側面はコストパフォーマンスの良いハイグリッドフェンスとプレスタフェンスを使用しています。全面に高級フェンスは取り付けず、見せたい部分や目線が気になる部分、見えない部分と区分けして使い分けることがコストダウンに繋がります。
お庭側は人工芝とし、大きなタイルデッキを設けています。極力メンテンスを軽減したメンテナンスフリーのお庭です。無機質な印象にならないように、必要箇所にシンボルツリーや植栽を入れて過ごしやすい空間としています。タイルテラス内にも目隠しフェンスを取り入れてプライベート感を作り出しています。
外観も内観も手抜きのない、気品あふれるエクステリア・外構となっています。