デザインアース エクステリア&ガーデン
TOP | 新築外構施工例 | 豊富な植栽とエレガントなエクステリア

豊富な植栽とエレガントなエクステリア

神奈川県横浜市K様邸

 

参考費用:845万円(税抜)

豊富な植栽と
エレガントなエクステリア

神奈川県横浜市K様邸

 

参考費用:845万円(税抜)
高級感のあるモダンスタイルクローズド外構

PLAN

イメージパース・図面
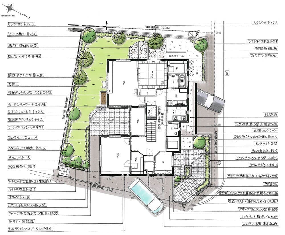
横浜市K様邸平面図
横浜市K様邸門まわりパース
横浜市K様邸裏口パース
横浜市K様邸和庭パース
 

【プランコンセプト】テーマはモダンデザインと植物の調和

神奈川県横浜市の新築外構・エクステリアとお庭・ガーデンのプランです。
非常に広い敷地に大きなお家が立つ予定でしたので、建築物に負けないエクステリアの設計を心掛けました。既存の門柱や門袖を一部再利用、あらたに門扉を設置して玄関までの導線を考えました。アプローチも既存の花壇の一部を活かしながら、あらたな花壇を加えて植栽に囲まれた美しいエントランスとしました。建て替え前から駐車場としてご利用されていた、道路側のスペースを来客用駐車場としました。

北側から南側に抜ける園路は、飛び石と自然石、敷砂利で導線を意識しています。既存のウメを再利用して和室からの風景とも調和するように和風なデザインに仕上げました。お客様のご要望により、樹形がより美しいシダレウメに植え替えを行いました。

西側には裏口を設けて、バリアフリー設計としています。正面玄関の階段段数が多くなるためにこちらはスロープにしています。道路側から中央テラスや掃出窓への視線を避けるため、スロープ沿いには常緑樹を植えるプランです。また、スロープ沿い土留めの擁壁は、植木鉢が置けるように幅を通常より広い30cmに作り、足元をテラスLEDライトを設置しています。
 


COMPLETED

完成事例
タイル張りの擁壁と地下車庫ガレージ
 

電動式シャッターを兼ね備えた地下車庫と擁壁は、グループ会社の相模緑建株式会社で施工しました。シャッターはリモコン仕様になっているので、出庫前後とも簡単に操作が可能です。壁面にカーブミラーを設置し、入出庫の際は前面道路の交通状況、歩行状況を確認ができます。

緑豊かなお庭側裏口
 

表札のライトアップ

エントランス階段

門柱は既存のコンクリート壁にタイルを貼り直し、新しい門扉を取り付けました。門扉なご自宅内のセコムと連動させたオートロックです。扉を開けると、油圧を利用したシステムで自動的に閉じてロックが掛かります。デザインもシンプルでスタイリッシュなリクシルのプレミエス門扉を使用しています。ポストと表札は新調し、表札は敷地内のLEDライトと連動したバックライト仕様になっています。
 
階段の右側は、既存の花壇を活かしながら少し手を加えました。左側にも植栽スペースを設け、左右が花壇に囲まれるようにしました。左右の花壇の存在によって、緑の中を歩き抜けるようなナチュラルな階段となりました。つる性の植物が伸びてくると、さらに明るく美しい印象に変化するでしょう。

ジョウリョクヤマボウシ

ライトアップしたジョウリョクヤマボウシ

階段脇花壇植栽

オートクローザー門扉

アルミ製片開き門扉

シマトネリコ株立

和庭の飛び石とシダレウメ

タイルテラスと芝生

メインヤードの奥に位置するサービスヤードは、和室の前でもあるので和風のアプローチとしました。主に天然石を使用して、植物も和のものでまとめました。眺めるだけで、落ち着いた雰囲気を与えてくれる空間になりました。
 
南側のお庭はテラスのフロントヤードにもなっています。芝生をメインにして既存高木を活かし、雑木で目隠し効果や高低差をつけています。低木は実や花を楽しめる樹木を主とし、下草類は花期の長いものを選んで植えています。

ワンちゃん用シャワー付立水栓

スロープ

芝生のお庭
 

南のお庭は植栽と芝生がメインです。建物中心のテラスには、立水栓を創作しています。お庭でご家族とワンちゃんが楽しいお時間を過ごした後、そのままワンちゃんの足を洗うことが出来ます。また、ご友人やお客人をお招きしてのBBQなどパーティー時にも大変便利です。

お庭を植栽で目隠し
 

敷地内の目隠しを考えて目隠しフェンスとスライド門扉を組み合わせています。スライドゲートの前に立つと、常緑樹を主とした植栽配置になっています。この3本の常緑樹が将来的に十分な葉を茂らすので、目隠し効果が期待できます。

お庭のライトアップ
 

裏口のスロープをLEDポールライトで明るく照らしています。全体的に光の広がりを魅せるポールライトは、足元だけではなく周囲の植物も美しく演出してくれます。コルジリネ・レッドスターを植えた植木鉢がリゾートのような印象を与えてくれます。

玄関アプローチ
 

玄関アプローチライトアップ
 

ライトアップで美しく演出

門扉から玄関まで階段脇に植えたナナミノキとジョウリョクヤマボウシをライトアップしています。12VのガーデンLEDライトを使用ているので漏電の心配はありません。照度センサー付きのためオンとオフの操作が必要ありません。日が沈むと自動的に点灯するのでご不在の時も防犯性を発揮します。電球はLEDなので、電気代も非常に安価に抑えられます。少々でもライトが加わるだけで、ご自宅の魅力を最大限に引き上げたエクステリアに仕上ります。

横浜市K様邸外構口コミ
 

外構造園工事のファイルをとても見やすく、分かりやすく作成していただいたので、イメージしやすく、とても良かったです。お庭に植える樹木・草花の写真も掲載してくださったのでよくわかり、後からも花の名前などを確認できるので助かり、丁寧なお仕事に感謝しております。
作業員の方々も皆様とても丁寧に仕事をしていただき、仕上がりも素晴らしく、イメージ以上の出来に大変満足しております。
夏の芝や植物の水やりの仕方も教えていただき、今年の暑い夏も無事乗り切りました。わからないことにも丁寧に答えてくださり、ありがとうございました。毎日庭を眺めるのがとても楽しみです。