樹脂製ウッドデッキのリガーデン工事
神奈川県綾瀬市前田様邸施工例
参考費用:230万円(税抜)
BEFORE
施工前

AFTER
施工後

PLAN
イメージパース・図面


【プランコンセプト】長年メンテナンスのかからない素材選び
神奈川県綾瀬市のリノベーションガーデンのプランです。
既存のウッドデッキは約10年前の天然木のデッキ材で、数年に一度オイルステインによる塗装のメンテナンスを施していましたが、床板の腐食が激しく、いよいよ利用が困難になりました。
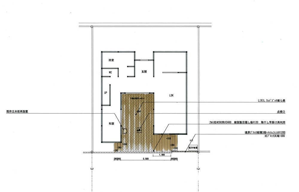
今回、再設置したウッドデッキ材はLIXILの樹ら楽ステージで、人工木材のため湿気で腐ったり、白アリの食害の心配もありません。土汚れは水洗いできれいに、表面の傷はサンドペーパーで簡単に補修できます。
メインツリーとして植えられていたヒメシャラの樹は、後々、虫による被害や台風による被害を考慮して伐採することにしました。より開放感のある景観を楽しめるプランをご提案させていただきました。
AFTER
アフター






木製フェンスに取り付けてご利用していた竿掛けは、再設置した目隠しフェンスの柱に設置しました。


一体感のある床材の色味
ウッドデッキ材の色は3種類の中から選んで頂きました。今回採用した「クリエラスク」は建物内のフロアーカラーにあわせ一体感を持たせることで、お庭へ足を運んでくれる機会を増やしています。
毎日、洗濯物を干し頻繁に利用する場所だからこそ、メンテナンスがかからない強固な素材を選びました。
ウッドデッキの下には一部枡がありましたので、指定の箇所に点検口を設けました。そのため蓋をあければ内部の確認をすることができます。
毎日、足元に不安を感じることなくご利用いただき、大変満足しているとのことです。