トラディショナル&ジャパニーズ
ニュースタイル庭園
デザインコンセプト
モダンな内部空間とトラディショナルな外部空間をミックスさせたスタイリッシュで趣のあるジャパニーズスタイルの日本料理店。「古くて新しいモダンな和」をコンセプトに質実剛健・懐・和感遊人・雅・侘寂・東風・趣というキーワードから店舗構成されています。
PLAN

主庭園平面図
モダンなインテリアから見渡せるトラディショナルな日本庭園です。池を意識した枯山水が、水面に浮かぶ店舗のように演出をします。ところどころに突き出した景石と伝統的な日本の植物が、落ち着きの中に力強さを感じさせてくれます。
クロマツやイヌマキといった代表的な針葉樹、モミジやサルスベリ、ウメなど季節感を感じさせる落葉樹、アオダモやハイノキ、ナナミノキなど雑木庭園に使用されるモダンな樹木を植えこむことで、伝統的な要素に近代の演出を味付けしました。背面に植えられた竹が、空間を閉ざして現地での異国感を印象付けてくれます。

主庭園イメージパース
手前の枯山水から奥に広がって行く庭園空間です。強い湾曲が付けられた枯山水と数寄屋門に向かって伸びる飛び石が、奥行きを与え、数寄屋門の向こう側まで景色が続く印象を与えてくれます。各席で特徴ある景色にするため、灯籠や大きな水鉢、床下から現れる石橋などフォーカルポイントを設けました。地面は起伏を付けて変化を与えることで、間延びを防いでいきいきとした風景を作り出すようにデザインしています。

中央庭園平面図
ガラスに囲われた、室内の印象的な坪庭です。水面に浮かぶ小島に、お客様が見上げるような大きな植物を植え込みます。小島は石で構成し、所々にシダ類や草類を植込んでモダン和風を演出します。主庭と比べて、直線的な植物が中心となっているのでスタイリッシュな印象が特徴になります。ガラスの中の美しい緑が、お客様の目を癒し、心を和ませる空間となるでしょう。

中央庭園イメージパース
水に浮かぶ石の小島に、力強く高木がそびえ立つイメージパースです。明るく照明された店内からは、360度から眺めることができます。中央部分はコケで土を覆い隠し、あたかも自然の石島がここに現れたかのように印象を与えてくれます。スタイリッシュで力強い、そんなお庭をイメージしています。
OTHERS

中高木配置図

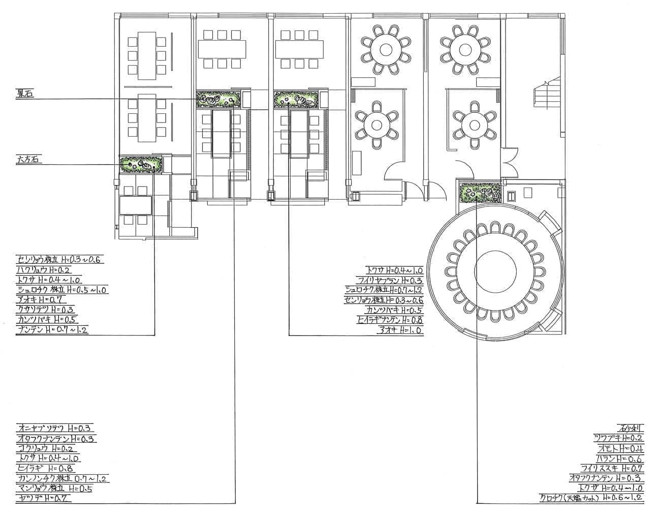
低木・下草配置図

低木(仕立物)配置図

庭園資材(景石・燈篭・水鉢等)配置図

屋内座敷席平面図