優しい色味の舗装材と木目調を使用した洋風の庭のデザイン・プラン
Plan No. MA20180925
施工面積:55㎡
参考費用:375万円(税抜)
PLAN
イメージパース・図面


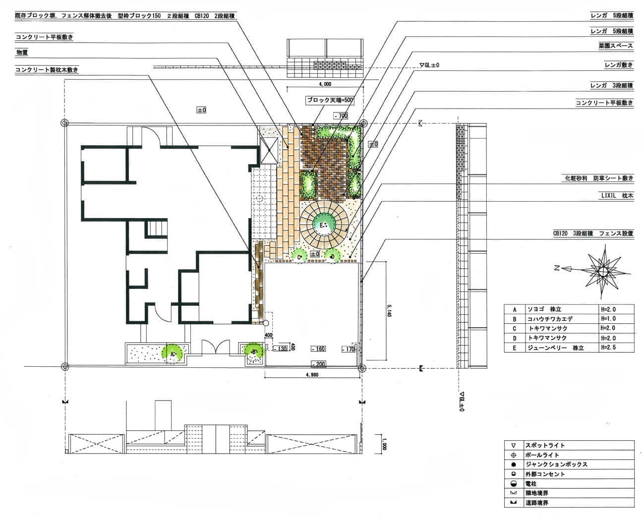
花壇はレンガを組積し、庭の空間にメリハリがつくようにデザインしました。
地面から花壇が立ち上がっていることで、植物の手入れのしやすさも優先しました。
全体にベージュやブラウンといった温かみのある色合いを使用することで、ナチュラルな可愛らしい庭を演出することができます。
シンボルツリーの足元に使用したサークル状舗装材は庭の一部に使用することで、とても華やかな印象を庭に与えました。