車庫の上をウッドデッキにした
ハイデッキの外構デザイン
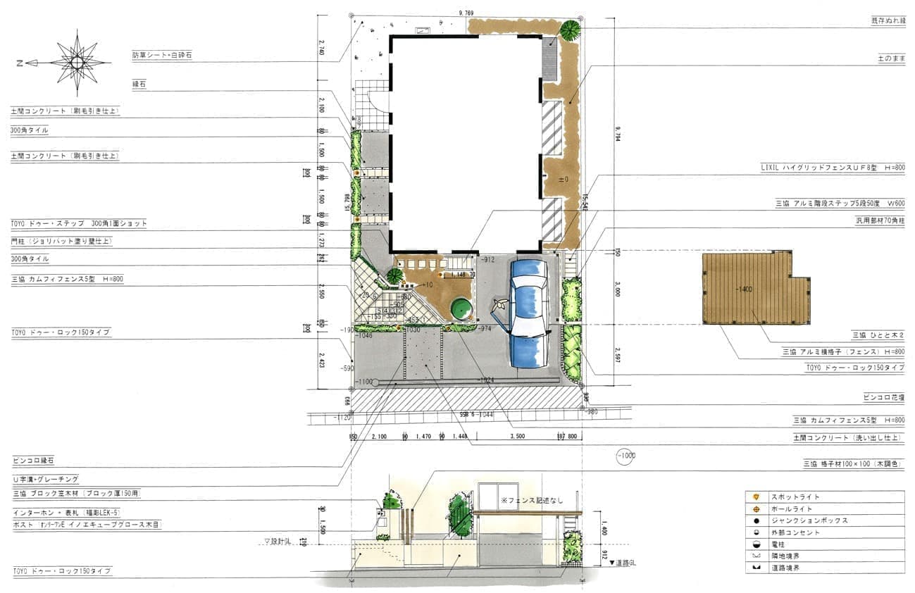
Plan No. AY20141120
施工面積:85.9㎡
参考費用:-
PLAN
イメージパース・図面


駐車場の上部をウッドデッキにしたハイデッキガレージのプランです。北の玄関側敷地と南側の敷地にそれぞれ階段を設置し、導線を確保しています。ウッドデッキの奥行きは3mとり、テーブルと椅子がおけるようにしました。こちらの土地は、丘になってるのでウッドデッキに上がると遠くの山々が展望できます。
新築時にセットバックが必要な地域でしたので、道路側にグレーチングを設けてセットバック部分の砕石がぬかるむことを軽減しています。高低差のある物件なので、ブロックで土留めをし、階段のアプローチを設けています。階段は、玄関ポーチと同じタイルを使用して建物との統一感を取っています。
少しでもお庭のスペースを確保するために、階段〜アプローチはなるべく北側に導線を誘導しています。お庭のスペースを通ってアプローチからウッドデッキにアクセスできるようになりました。駐車場、アプローチともにコンクリート面積が広いので、一部にコンクリート洗い出し仕上げを行い、変化を加えたデザインにしています。