デザインアース エクステリア&ガーデン
TOP | デザイン・プラン例 | 開放感と機能性を両立させたスタイリッシュな外構デザイン

開放感と機能性を両立させた
スタイリッシュな外構デザイン

Plan No. KO20180416

 

施工面積:86.4㎡
参考費用:720万円(税抜)

PLAN

イメージパース・図面
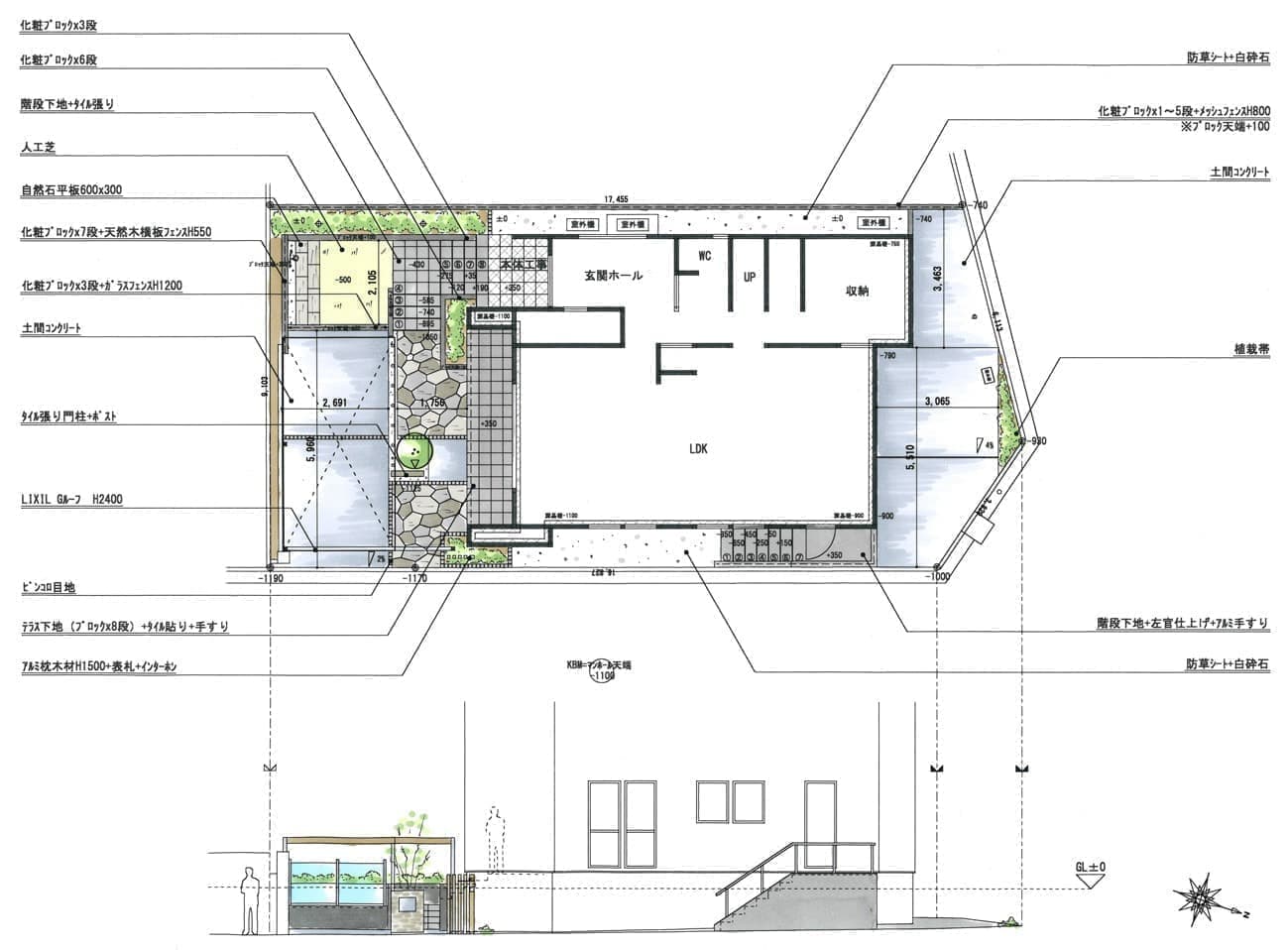
開放感と機能性の外構パース
開放感と機能性の外構平面図と立面図
 

近年、カーポート屋根は様々なシーンで活躍しています。今回のプランには「お車の出入りがしやすく、アプローチを広く有効に」という点に重きを置いてカーポートを選別し組み立てました。

LIXILのGルーフとGフレームを組み合わせ、木目調を取り入れることでさらに高級感の中に柔らかみを感じることができます。門柱はGルーフと同色のLIXILの枕木材と、建物に使用するタイルと同じ物を使った少し控えめな造作門柱。その後ろに目隠しを兼ねた植栽がゆるやかに訪問者を誘導します。

奥の階段を上ると右手に玄関、左手にはお子様のプレイスペースに人工芝を。海から帰ってきて体を洗えるシャワーを搭載。スペースを仕切るタカショーのビュースルーフェンスは解放感と湘南要素を取り入れてくれます。