デザインアース エクステリア&ガーデン
TOP | デザイン・プラン例 | 高低差を活かしたセミクローズド外構のプラン

高低差を活かしたセミクローズド外構のプラン

Plan No. SI20170924

 

施工面積:133.0㎡
参考費用:360万円(税抜)

PLAN

イメージパース・図面
セミクローズド外構のパース
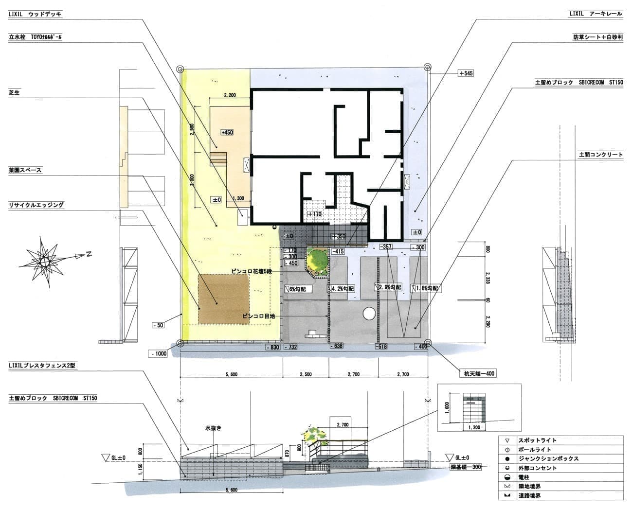
セミクローズド外構の平面図と立面図
 

土留めブロック(型枠ブロック)を組積し、庭を広く使用できるようにデザインしています。土留めブロック(型枠ブロック)にはエスビックの「RECOM ST」を使用しています。こちらの商品は、1本のスリットによって数種類のサイズのブロックが組積しているように見えるブロックです。
玄関ポーチに繋がるアプローチも直線で繋がずに踊り場を設ける事で、空間の広がりを演出しています。踊り場が玄関と土留めブロックで拡張したお庭の導線にもなっています。

門柱は化粧ブロックを幅1.2mで組積し、機能門柱には無い存在感を持たせています。ブロックを組積して施工する門柱は、デザインの幅を広げ、ポストや表札の自由度も高くします。また、門柱の下方にライトを埋め込むことで、夜間のライトアップの演出と防犯の役割を担うことができます。

日当たりの良い南側のお庭には芝生とウッドデッキを設け、広いお庭を有効活用出来るような設計になっております。お庭に菜園スペースも確保し、野菜づくりなどの趣味も楽しむことができます。ウッドデッキは、人工木の樹脂製ウッドデッキを使用し、メンテナンスフリーとなっています。

玄関ポーチ前のシンボルツリーには、常緑樹のソヨゴを植え自然の雰囲気と玄関の目隠しを考え設計しています。通行人の多い地域では、樹木が重要な目隠しとなってきます。