ログハウスの爽やかさに合わせた
ナチュラルな外構

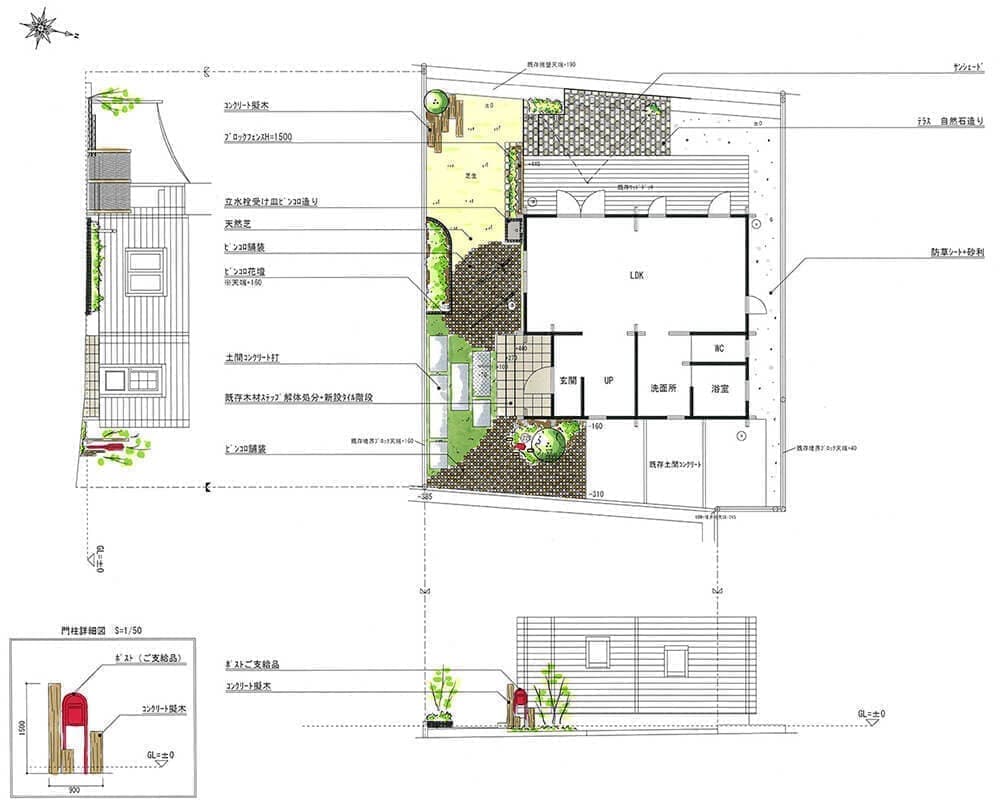
PLAN



【プランコンセプト】自然に溶け込めるような素材を選んだエクステリアプラン
神奈川県中郡大磯町の新築外構・エクステリアとお庭・ガーデンのプランです。
駐車場兼アプローチ周りは動きを持たせた石張りにすることで、奥の庭への導線と玄関周りを華やかにしています。続く庭に差し掛かると、目隠し効果と趣のある冷却石のフェンスが夏の暑い空気を涼しくしてくれます。
また、重厚感のある石畳のサブテラスを設置し、ウッドデッキとの高低差を解消しております。石畳テラスを一部くり抜き柱を立て日よけ用のターフを設置することで、お庭でのティータイムも紫外線や熱い日光からさえぎられながら楽しめます。
それぞれ足元には植栽を添えることで、柔らかいイメージを造ることができます。
COMPLATED




門柱はリアルな木目のテクスチャーが入ったコンクリート擬木枕木のレイルスリーパーペイブとボビポスト。
設置は高さと場所をランダムに据えることで動きを出しています。
お客様ご用意の住所プレートはあえてずらして貼り付けています。


お客様のご用意した小石で猫の肉球を表現しました。




花壇と石畳は目地を深めに。ちょっとした工夫で存在感を表しています。

ターフは強い日差しから身を守ります。


ちょっとした部分に植栽を植えるだけでイメージは変わります。

宅内から足を運びたくなるようなガーデン
外の空気を吸いたい時、気分転換をしたい時は窓を開けて足を運ぶ。あたり前な事ですが、建物(室内)と外の地面に段差があったり、雑草だらけで虫や葉っぱが嫌だったり、暗くて歪んだ地面が怖かったりとその一歩がなかなか踏み出せないものです。
今回のプランはその一歩を進んでみたくなるようなお庭になるよう一つ一つ心がけて組み立ててみました。
お客様も大変満足していただき、湘南の景色や自然を存分に味わっていただいております。
COMPLATED

かわいいペットの防止柵と湘南に馴染むオシャレフェンス
ペットの脱走防止策として、境界に多用されるスチールメッシュフェンスと今回設置させていただいたPCフェンスを検討していただいた結果、湘南の景観に馴染みデザインが良いPCフェンスをご希望されました。
アルミ材の艶やかさは一見重みを感じるかもしれませんが、角が丸く加工されておりオシャレに見えますし可愛らしさもあります。
全体で見ると一般にみられるフェンスとは違った印象が楽しめます。



フェンス・門扉の高さは1500mmとなっております。

ペットとのびのび楽しめる庭生活
ペットの脱走防止策として、境界に多用されるスチールのメッシュフェンスと今回設置させていただいたPCフェンスを検討していただいた結果、湘南の景観に馴染みデザインが良いPCフェンスをご希望されました。
アルミ材の艶やかさは一見重みを感じるかもしれませんが、角が丸く加工されておりオシャレに見えますし可愛らしさもあります。
全体で見ると一般にみられるフェンスとは違った印象が楽しめます。