デザインアース エクステリア&ガーデン
TOP | 新築外構施工例 | グリーンと共存するかわいい欧風外構

グリーンと共存するかわいい欧風外構

神奈川県伊勢原市北嶋様邸施工例

 

参考費用:250万円(税抜)第一期工事
参考費用:150万円(税抜)第二期工事
伊勢原市北嶋様邸外構完成

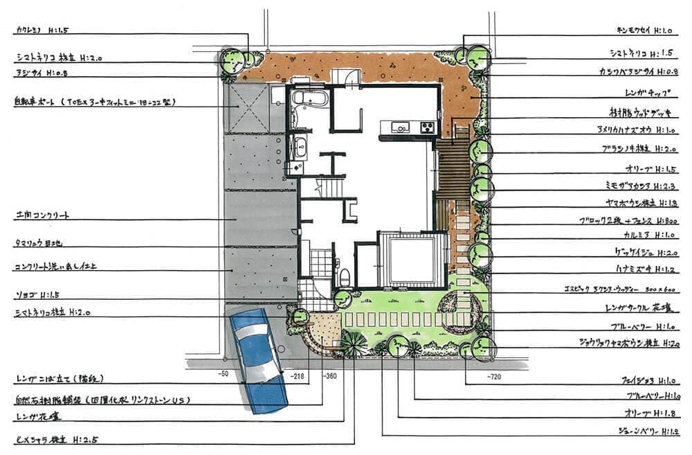
PLAN(第一期工事)

図面・イメージパース
伊勢原市北嶋様邸パース
伊勢原市北嶋様邸平面図
 

【プランコンセプト】テーマは使いやすさと明るいデザイン

神奈川県伊勢原市の新築外構・エクステリアのプランです。
道路と玄関までの高低差があるので、階段が必須の現場でした。北側が駐車場となるので、エントランスと車の出入りを両立させるデザインを心がけました。

設計の際、正面階段を45度の角度で展開することで、車と出入りをしやすくしています。また、玄関までの導線もこの45度のデザインが自然と作り出してくれます。階段を上がった踊り場を中心に、お庭にもアプローチしやすく展開をしています。今後のお庭づくりに支障のないよう設計しました。

全体にアールを基調として、欧風デザインに仕上げました。前後を付けた左右の門柱は、奥行き感を与えて門まわり広がりを与えます。手前から奥に広がったアールの階段は、門柱同様にエントランスを広く見せてくれます。門柱それぞれに植栽帯を設けていますので、構造物を柔らかく見せ、より可愛らしく門まわりを演出してくれます。

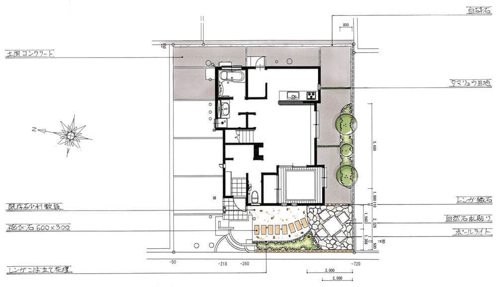
PLAN(第二期工事)

図面・イメージパース
伊勢原市北嶋様邸二期工事パース
伊勢原市北嶋様邸二期工事平面図
 

【プランコンセプト】メンテナンスフリーを考えた家まわり

第一期工事で保留となっていたフロントヤードを、第二期工事としてご依頼いただきました。玄関から飛び石のアプローチを作り、自然石乱張りのテラススペースをご提案しました。外周部分は、雑草対策と歩きやすさを優先してコンクリートを打設しています。


COMPLETED

完成事例
レンガと塗り壁の門まわり
 

門まわりの夜のシーン
 

奥行き感と導線を考えたエントランスです。門柱を前後にずらしながら、お互いを近づけることで正面から見ると玄関の目隠しにもなっています。階段の縁取りにはレンガを使用して建物との調和を図り、床面を自然石樹脂舗装で仕上げています。床面の自然石樹脂舗装の仕上げには、滑り止め材を混ぜているので雨天時の使用も安心です。門柱前の植栽帯は、門まわりを明るくし、柔らかく表現してくれます。

夜になると自動でLED照明が灯されます。表札、足元、植栽が照らされ、素敵なエクステリアの演出になります。

奥行き感のある門柱

葉っぱのデザインのLED照明

美しくアールを描いたレンガキャップに、ジョリパットの塗り壁材を使用しています。塗り壁は、硅砂を利用したエンシェントブリックという工法を採用しました。自然な風合いと塗りムラが魅力の工法です。
 
せっかくのかわいい門柱デザインを損なわないように、パーツにもこだわっています。表札はアルファベットのアルミ鋳物を使用し、表札灯も同じアルミ鋳物でかわいい木の葉デザインのLEDライトを使用しています。ライトは照度センサーを使用して、自動点消灯になっています。消し忘れや点け忘れも安心です。LEDエクステリアライトは寿命が長く、省電力なので電気代の節約にも繋がる近年のヒット商品です。

門柱前の小さな花壇

レンガチップで足元を明るく

門柱裏にも植栽を

樹木による目隠し

左の門柱裏にはヒメシャラの株立を植えています。根本から数本の幹を出す株立は、一種でも充分な存在感を出して門まわりを華やかにします。根本にはスポットライトを埋込み、夜になるとライトが植物を美しく演出してガラスブロックの向こう側もきらめきます。エクステリアライトは防犯性も高めることができる必須のアイテムです。また、植栽帯に敷き詰めたレンガチップは、保水性を高めながら、雑草を防ぐ効果も持っています。ちょっとした商品が、大きな効果を生み出してくれます。

テラスと門をつなぐ園路

園路のライトアップ

レンガと自然石乱張り

自然石乱張りテラス

駐車場スペース
 

駐車場は縦に2台分を取り、車が停まっても支障のないようにアールの階段がお家までの出入りを自由にしています。また、この階段は車の導線も考え、車が左折しやすい角度に収めています。   門柱右側は、しっかりと土を抑えるように土留となる型枠ブロックを使用しています。外観も美しくするために、化粧型枠ブロックを使用しています。L型基礎は土圧によるブロックの転倒を防ぐように施工されています。

テラスへの飛び石
 

花壇に囲まれたアプローチ

第二期工事で完成した花壇と飛び石のアプローチです。自然石乱張りのテラススペースに続く園路となっています。夜間にはポールライトで明るく灯され、温かい雰囲気の空間になります。