デザインアース エクステリア&ガーデン
TOP | 新築外構施工例 | スッキリとまとまったシンプルモダン外構

スッキリとまとまったシンプルモダン外構

神奈川県横浜市S様邸施工例

 

参考費用:255万円(税抜)

スッキリとまとまった
シンプルモダン外構

神奈川県横浜市S様邸施工例

 

参考費用:255万円(税抜)
ウッドデッキと門袖の完成

PLAN

イメージパース・図面
横浜市S様邸立面図
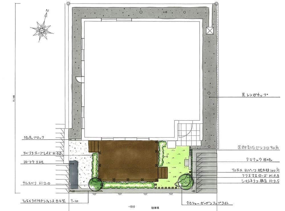
横浜市S様邸平面図
 

【プランコンセプト】テーマはエクステリアとガーデンの一本化

神奈川県横浜市の新築外構・エクステリアとお庭・ガーデンのプランです。
南向きの配置となっているので、日当たりを活かしたご提案をしました。擁壁からの転落防止をフェンスで考えるのではなく、エクステリアを上手に使って転落防止をデザインしています。階段を上がると、門柱、アルミ製枕木、門袖、アルミ製枕木、樹脂ウッドデッキ、アルミ製枕木というエクステリアで転落防止の効果を与えています。ほとんど一般的なフェンスを使わずに門柱の延長で外周を囲っています。掃き出し窓からは樹脂ウッドデッキ面積を目一杯取り、正面に設けた植栽スペースを幕板代わりにして構造物全体を明るくしました。

全体としては物置に至るまで、全てをダークグレーとホワイトで統一して建物との一体感も考えました。エクステリアの向こう側は、芝生とウッドデッキでゆとりあるガーデンとなっています。

袖壁裏にはメインツリーのジョウリョクヤマボウシ株立、ウッドデッキとフェンスの間にはサルスベリを植えて、緑豊かで温かみのある外構になっています。門袖裏にはスポットライトを入れてありますので、夜には樹木が美しく照らされます。


COMPLETED

完成事例
ウッドデッキと塗り壁と枕木
 

転落を防止するエクステリア

門柱、袖壁はホワイトカラーのジョリパットを使用して、その中間にはアルミ製枕木材を立てています。縦ラインの直線的なデザインは、スタイリッシュに建物を引き立ててくれます。壁にボーダータイルを貼って変化を持たせることで、デザイン性の高いエクステリアに仕上がっています。少し引っ込んだところに樹脂ウッドデッキを施工し、手前の植栽が将来美しい花壇となってウッドデッキ下の通風部を上手に隠してくれます。

色を揃えた物置
 

塗り壁とタイルの門柱
 

目隠しと転落防止を兼ね備えた門柱

階段脇に備え付けた門柱です。擁壁沿いを上手に利用し、転落防止と目隠しの両方の効果を持たせました。袖壁と同じボーダータイルでデザイン性を与え、表札はLEDバックライト式のステンレスタイプを使用しています。植栽を照らすガーデンアップライトと連動することで、日照での自動点消灯になっていますので防犯性も上がります。ウッドラッピングの枕木材を利用し、圧迫感を抑え、風通しの良い空間にしています。

横浜市S様邸外構口コミ
 

当方不在中の工事でしたが、仕事が丁寧で大変満足して、感謝申し上げます。
今回植えた植物の手入れ方法と前回植えた「山ぼうし」と百日紅の剪定の指導をよろしくお願い申し上げます。