ウッドデッキでゆったりとした時間が過ごせる防犯を意識したクローズド外構
神奈川県横浜市S様邸施工例
参考費用:630万円(税抜)
ウッドデッキで
ゆったりとした時間が過ごせる
防犯を意識したクローズド外構
神奈川県横浜市S様邸施工例
参考費用:630万円(税抜)

PLAN
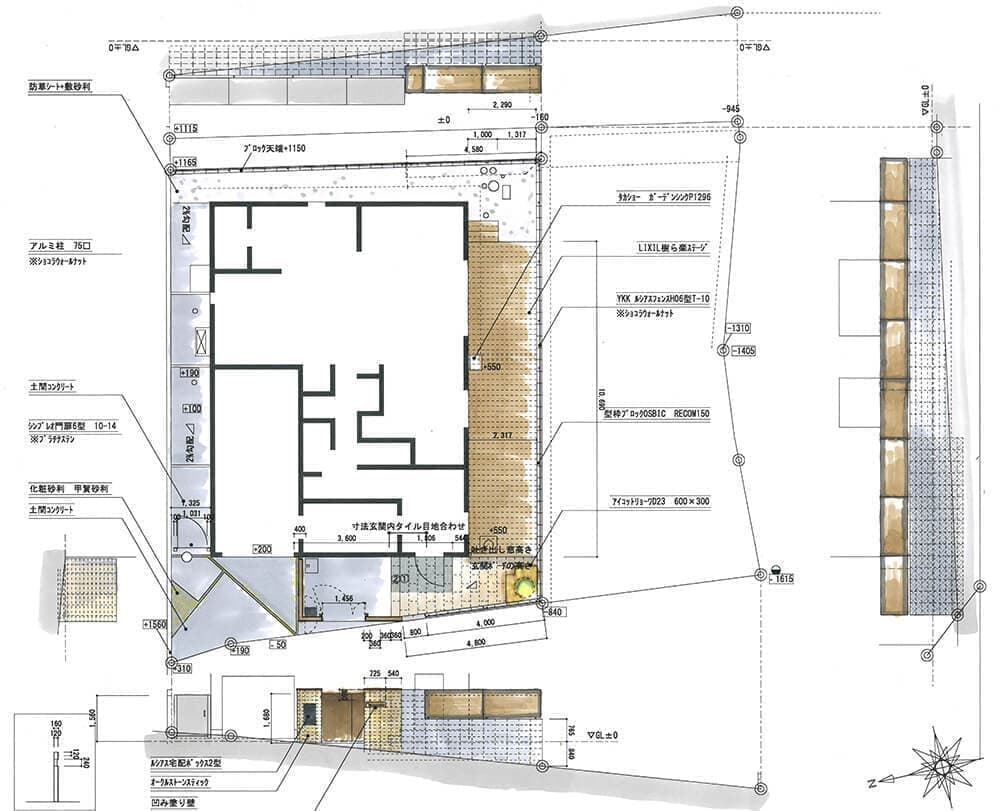
イメージパース・図面

【プランコンセプト】目隠しと防犯を意識したクローズ外構
神奈川県横浜市の新築外構・エクステリアのプランです。
門扉の先は全て室内のような落ち着いた空間になるようにしました。玄関ポーチからお庭の樹脂デッキまで、全て繋がるようにデザインしました。玄関ポーチは大きめのタイルを使用し高級感を演出しました。共働きのお施主様が暮らしやすいように宅配ボックスを設けることにより、ご不在時でも安心して荷物を受け取ることが可能です。近年の物騒な世の中にも安心してお過ごし頂けるクローズ外構です。
COMPLETED
完成事例



建物内から自動で開錠できる電動門扉により大きな荷物を持っていても簡単に開け閉めが可能です。建物内から解錠できることにより防犯対策にも繋がります。背の高い門扉に合わせて門柱から庭に繋がるフェンスまで、全て高さを合わせることにより一体感のある外構に仕上がりました。また、門柱には自然石を貼ることにより高級感のある門構えを演出しました。駐車場の砂利目地と門柱の色味を合わせることにより統一感が生まれました。

玄関ポーチを進むと、お家の中を通らずに直接ウッドデッキへ行くことができます。動線に配慮した、使い勝手の良いウッドデッキです。


高台から景色を見渡せる人工木ウッドデッキ
ウッドデッキでゆったりと過ごせる空間へと仕上がりました。土留ブロックで囲んだお庭を全てウッドデッキにすることにより、室内から空間を繫ぎ広く有効活用することができます。ブロックの目地とデッキの高さを合わせることにより、美しい仕上げとなりました。ウッドデッキ上に植物を置いたり、ファニチャーを設置するなど楽しみ方は様々です。