シンプルな色味に重厚感のあるオープン外構
神奈川県大和市K様邸施工例
参考費用:600万円(税抜)
シンプルな色味に
重厚感のあるオープン外構
神奈川県大和市K様邸施工例
参考費用:600万円(税抜)

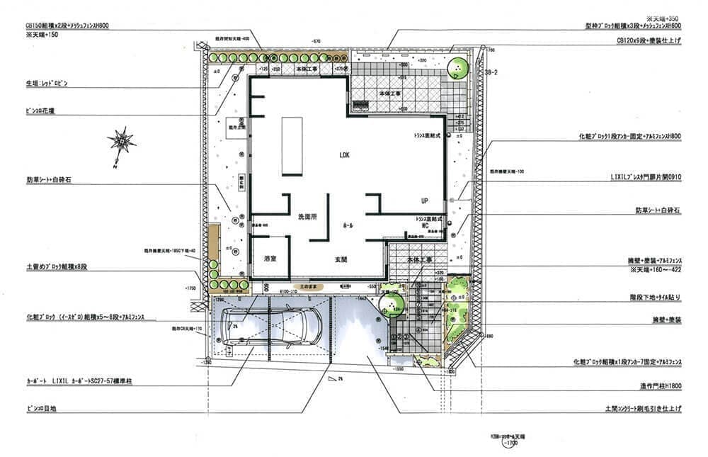
PLAN
イメージパース・図面


【プランコンセプト】高低差解消と動きのあるファサードを両立させたデザイン
神奈川県大和市の新築外構・エクステリアのプランです。
当初の計画では玄関ドアを出ると、道路に真っ直ぐ降りていき機能門柱が備わっているというデザインでした。しかし造作の門柱兼階段の袖兼土留めブロックを作成することで、動きのあるアプローチと重厚感ある門柱を両立することにしました。
ヘーベルハウスの壁に馴染むようにカラー選択も濃いグレー系とコンクリート色を選択しました。
カーポートの屋根はLIXILのカーポートSCを使用し、ステンレスの大型パネル屋根の重厚感がより全体を引き立てています。
またカーポートSCは雨樋が柱に内蔵されているので、スッキリとしたデザインを演出できます。
COMPLETED
完成事例




日陰を好む常緑樹のソヨゴです。

アップライトによる演出で夜も庭を楽しめます。


金物・塗装・石材それぞれの良さを引き立てるエクステリアプラン
高低差が大きな敷地は門柱の位置や階段のデザイン、階段の幅が単調なエクステリアデザインになってしまうことが多々あります。
ハウスメーカーと事前に打ち合わせ、本体工事のポーチのサイズ・高さなどを入念に考察することで、動きのあるデザインを生み出すことができました。
高低差があるからこそ立体感が生まれ、土留めのブロックや門柱、階段の高級感が引き立ちます。さらに素材や色味を建物に合わせることで統一感を図ることもできました。