カーポートSCの梁延長を利用した
アプローチゲート

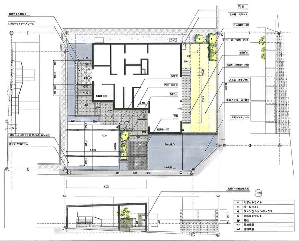
PLAN


【プランコンセプト】カーポートSCの梁延長を活かした、生活しやすいアプローチデザイン
神奈川県川崎市の新築外構・エクステリアの施工プランです。
建物の軒が大きいことに注目し、駐車場から玄関までなるべく雨や日差しを避けて往来できるアプローチをテーマにデザインしました。
道路から玄関までは高低差がありますので、踊り場を設けることで動線を広く確保し、急な階段にならないようにしてあります。
今回のプランの主役とも言えるLIXILさんのカーポートSCは、梁延長を施すことで家の外観に彩りを加えたり、車をスムーズに出し入れできるように柱の位置を調整できます。
また、延長した梁に本体と同様のダウンライトを設置できるため、夜間も安心してご利用いただけます。
COMPLETED

LIXILさんのカーポートSCは、シンプルで美しいデザインと豊富なカラーバリエーションが特徴のカーポートです。梁が見えない屋根の構造や雨樋を内蔵している美しいフォルムで様々な住宅にフィットします。
2台用、3台用では梁延長が可能で、敷地の広さや使い勝手に合わせて調節できます。 今回の施工例ではアプローチゲートとして活用しており、門周りの空間に一体感が生まれ、機能性だけでなくデザイン性の向上にも繋がります。
駐車場となる部分の縁石は元々段差がありましたので、切り下げ工事を行いました。コンクリートを打設してしまうと縁石を切り下げることが出来なくなってしまうので、注意が必要です。
縁石の切り下げ工事とは、新居を構える際、家と車道を行き来するために既存の縁石による段差を解消するために行う工事のことです。
切り下げ工事をしなかった場合、車のタイヤを消耗させてしまったり、車体を傷つけてしまいかねません。被害を未然に防ぐためにも、切り下げ工事は外構工事の際に行うことをお勧めします。
歩道の切り下げ工事は道路の管理者に申請が必要となりますので、工事の前に確認が必要となります。


中央にある花壇はデザインだけでなく、駐車場とアプローチの高低差を解消するために設けてあります。
建物前の道路が坂道になっているため、駐車場と同じようにアプローチの勾配を設定しまうと勾配が急になりすぎてしまいます。
外構工事では、適切な勾配をつけることで、雨水が流れるような工夫が必要になります。


二つに隔てた門柱の裏には蛇口を施行しました。
立水栓を立てずに門柱ブロックの内部に水道管を通したり、水受けをポーチで使用したタイルでモザイクタイル風に加工するなど、職人の細かい技による工夫が随所に見られます。

高台となるお庭には、土圧を抑えられる土留めブロックを施行しました。土留めを行うことで、敷地の高低差を活かしたお庭にすることができます。
また、ブロックの上にはLIXILさんのフェンスAB YS3型を設置しました。建物に合った目隠し用のフェンスを設置することで、プライバシーの保護や見栄えの良さに加え、防犯効果も高まります。


広いお庭には人工芝を施行し、掃き出し窓から出入りするためのウッドデッキ(LIXIL:樹ら楽ステージ)を設けました。
さらに立体花壇を施行し、オリーブやフェイジョアといった常緑樹を植栽しました。常緑樹は季節を通して葉があるため、一年を通して緑を楽しめるほか、目隠しとしての効果も期待できます。



夜の住宅を美しく彩るライティング
カーポートの天井に等間隔で配置されたダウンライトがファサードを美しく演出します。さらに、カーポートSCの梁をアプローチゲートとして活用することで、延長した梁の下にもダウンライトを設置できます。
花壇のメインツリーには下から照らすアップライトを設置し、建物に樹木の影が映し込むように設計いたしました。
樹木の種類や高さに合ったライトを使用することで、美しさをさらに引き立て、建物が昼と夜で異なる印象になります。
アプローチをライトで照らすことで歩きやすくなり、転倒などの危険を回避できます。また、敷地内が明るくなるため、防犯面での効果も期待できます。