デザインアース エクステリア&ガーデン
TOP | 新築外構施工例 | ビルトインガレージと石張りのおしゃれなアプローチ

ビルトインガレージと
石張りのおしゃれなアプローチ

神奈川県茅ヶ崎市I様邸施工例

 

参考費用:300万円(税抜)
ビルトインガレージのあるおしゃれなアプローチ

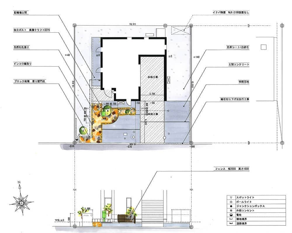
PLAN

イメージパース・図面
茅ヶ崎市I様邸パース
川崎市海野博俊様邸平面図と立面図
 

【プランコンセプト】ビルトインガレージの利用とお子様のための玄関アプローチ

神奈川県茅ヶ崎市の新築外構・エクステリアの施工プランです。
アプローチ、駐車場、お庭を一つにまとめた、一体感のあるエクステリアです。ビルトインガレージがある建物のため、駐車場側は駐車が行いやすいように設計しました。
門柱から玄関までは石張りを施工し、アプローチに明るい印象を持たせています。玄関側は、二人のお子様のために可愛くておしゃれなアプローチになるよう、デザインしました。


COMPLETED

完成事例
カーポートSC(梁延長)
 

道路側の門柱には表札とインターホンを取り付け、玄関前にはポストを兼ねた宅配ボックスを設置しました。インターホンを道路側の門柱に設置することで、敷地内への侵入をなるべく少なくし、プライベートな空間の確保に役立ちます。
また、門柱から玄関までは石張りを施工しました。東洋工業さんのオークルストーン パールイエローを使用しており、その明るい色が駐車場のコンクリートと玄関の間にアクセントを持たせています。
フォーカルポイントの一つでもある、美濃クラフトさんのポスト「デポ」は、レトロな郵便ポストを思わせるデザインとカラーバリエーションが人気の宅配ボックスです。
サイズは、100サイズと80サイズの2種類からお選びいただけます。さらに、宅配ボックスとポストの組み合わせや、サイズ違いの宅配ボックス同士の組み合わせなど、ライフスタイルに合わせてお好みの組み合わせができます。
施錠には、南京錠を採用しています。セキュリティ面が不安に思うかもしれませんが、あえて簡単にすることで、宅配業者さんや利用者の方が使用しやすくしているそうです。また、デザイン面で見ても南京錠がよく似合っています。

カーポートSCの梁延長を使用したアプローチゲート

ポスト、宅配ボックス

ポスト、宅配ボックス

カーポートSCの梁延長を使用したアプローチゲート

中央の花壇には常緑樹のオリーブを植栽し、その足元には岐阜産の石を施工しています。
その後ろにはグローベンさんの「PLADプラス」を使用したフェンスを施工しています。フェンスの裏側には室外機が隠れています。室外機は建物の性質上、やむをえず目立つ場所に置くことが多いのですが、フェンスを立てたりカバーで囲うなどの工夫を凝らして隠したり、目立たなくすることができます。
近年室外機専用のカバーも販売されており、おしゃれなデザインの商品も増えているため、お家の雰囲気に合わせてお選びいただけます。

土留めブロックと目隠しフェンス
 

担当者も羨ましがっていたビルトインガレージ。建物内との境目がガラス張りになっており、お家の中にいながら愛車を眺めることができる、車好きにはたまらない仕様となっていました。

今回の工事では、縁石の切り下げ工事を行いました。縁石とは、車道と歩道の境界線として利用される区切りのための石です。そして、新築を構えたり、リフォームを行った際に住宅地と車道の間の段差を解消するための工事を切り下げ工事といいます。

縁石の段差をなくすことにより、車高の低い車でも駐車が容易になります。
縁石の切り下げ工事は、土間コンクリートを打設してしまうと施工が難しくなってしまうため、建物周りの施工が行われていない状態で行うことが望ましいです。

川崎市海野博俊様邸(ナイトシーン)

建物だけでなく、エクステリアにもこだわりを

夜間は照明によってアプローチが照らされています。日照センサーにより、暗くなると自動的に点灯し、留守にしていても自動で点灯するため、防犯にもつながります。

家は建物だけでなく、エクステリアまで綺麗に仕上げることで印象がガラリと変わります。どんなに素敵なお家でもエクステリアとのバランスが悪ければ格好悪い印象になってしまします。そのため、エクステリアにもこだわることで、お家全体がおしゃれで格好いい、オリジナリティあふれる空間になります。

お客様からのアンケート

ハウスメーカーから提案されたプランが満足いくものではなく、外構業者さんを色々探していた中で見つけたのがデザインアースさんでした。
ビルトインガレージに合わせたデザインを希望していたところ、担当していただいた石井さんも車好きで、外構以外の話で盛り上がり、楽しい打ち合わせでした。
プラン内容もこちらの要望を丁寧に聞いていただきました。工事が始まると各工程で専門の職人さんたちが作業してくれましたが、みなさん熟練の方揃いで、仕上がりは完璧でした。
ビルトインガレージに合うシンプルモダンな外構にとても満足しております。ありがとうございました。