タイルテラスと玄関ポーチの統一感を
意識した新築外構

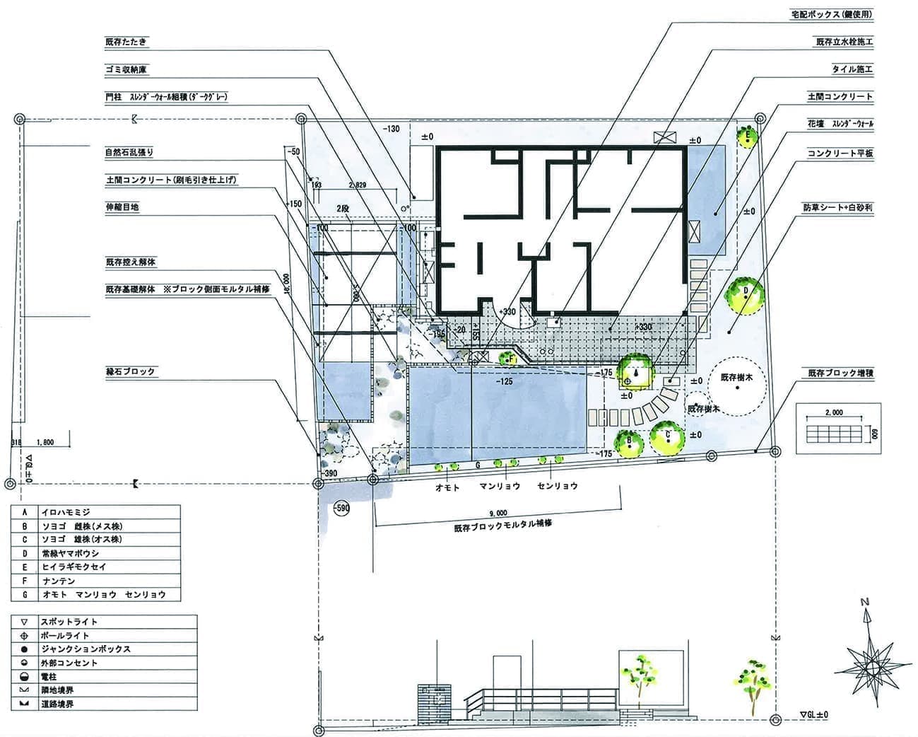
PLAN


【プランコンセプト】建物と統一感のあるエクステリア
神奈川県川崎市の新築外構・エクステリアの施工プランです。
統一感のある、広々とした使い勝手の良い空間をテーマにデザインしました。
駐車スペースは、車を敷地内でUターンできるように広く確保しています。アプローチは、一面コンクリートではなく石を張ることで、玄関までの通路を美しく彩っています。石張りには、東洋工業の「オークルストーン ブルーノ」を使用しています。
新築外構の場合、玄関ポーチがあらかじめ作られている場合が多くあります。そのため、タイルテラスやウッドデッキを設置しても全体的な見た目の印象が変わってしまうことがあります。
しかし、ポーチとテラスに似たような質感やカラーの素材を使用することで、外構全体を同一化することができます。
COMPLETED

玄関から階段を降りた先には、化粧ブロックを積み上げて施工した門柱があります。通常は高さ200mmのブロックを使用することが多いのですが、今回は高さ100mmの「スレンダーウォール」という化粧ブロックを使用しました。 化粧ブロックとは、コンクリート製のブロックにあらかじめ模様が入った商品のことです。通常のブロックへの塗装やタイルを張るなどの手間を省き、工期を短くできるなどのメリットがあります。
東洋工業の「スレンダーウォール」は、シンプルでスタイリッシュなデザインの化粧ブロックです。カラーバリエーションは、アイボリー・ベージュ・チャコールグレー・ダークグレー・プレミアムホワイトの5種類があり、和・洋どちらの雰囲気の建物にもマッチします。
門柱に設置されたONLYONEエクステリアの「アラビカ」は、取手部分とパネルが一体となったデザインのポストです。スタイリッシュな形状で、スレンダーウォールとの相性も抜群です。色味も落ち着いた印象で、建物や外構全体とマッチしています。 玄関の階段前には、ONLYONEエクステリアの宅配ボックス「CASS」を設置しました。無駄のないシンプルなデザインと使い勝手に優れた大容量宅配ボックスです。そのまま据え置くことも、オプションスタンドを利用して独立させた運用も可能です。


カーポートは、建物の色合いに合わせた黒い柱と白い屋根が特徴的な、LIXIL「カーポートSC」を施工しました。
カーポートSCは天井もアルミ材で作られていることや雨樋が柱内に収納されているなど、シンプルでスタイリッシュな形状をしているため、さまざまな住宅にフィットします。
カーポートの天井の中にはダウンライトが仕込まれているため、夜間のライティングにも適しています。
道路から玄関までに高低差がありましたので、ポーチを高くすることで、勾配を解消いたしました。
また、テラスと駐車場の間の階段には、LIXIL「アーキレール」で手すりを施工いたしました。



花壇は、門柱と同じスレンダーウォールで施工、その中にはシンボルツリーとして紅葉を植えました。建物の大きな掃き出し窓の前に用意することで、夏場は葉が繁って日除けの効果も期待できます。
テラスのタイルには、LIXILの「アルティスタ」を使用しました。「アルティスタ」は、イタリアの伝統建築に使用される自然石チェッポをモチーフとした外装床タイルです。
アプローチからタイルテラスまでやテラスから物置までは、東洋工業のコンクリート平板「エクレル」を飛び石として配置しています。


①オモト(万年青)

②センリョウ

③マンリョウ

④ヒイラギモクセイ
各所に植栽を配置し、いつでも緑を楽しめる空間となっています。

建物の裏手は、デッドスペースになってしまう事を防ぐため、ヨドコウの物置を設置しました。物置の種類によっては外で使用する道具やタイヤ等の大きなものを入れる事が可能です。