メンテナンスのかからない
子どもやペットが喜ぶお庭
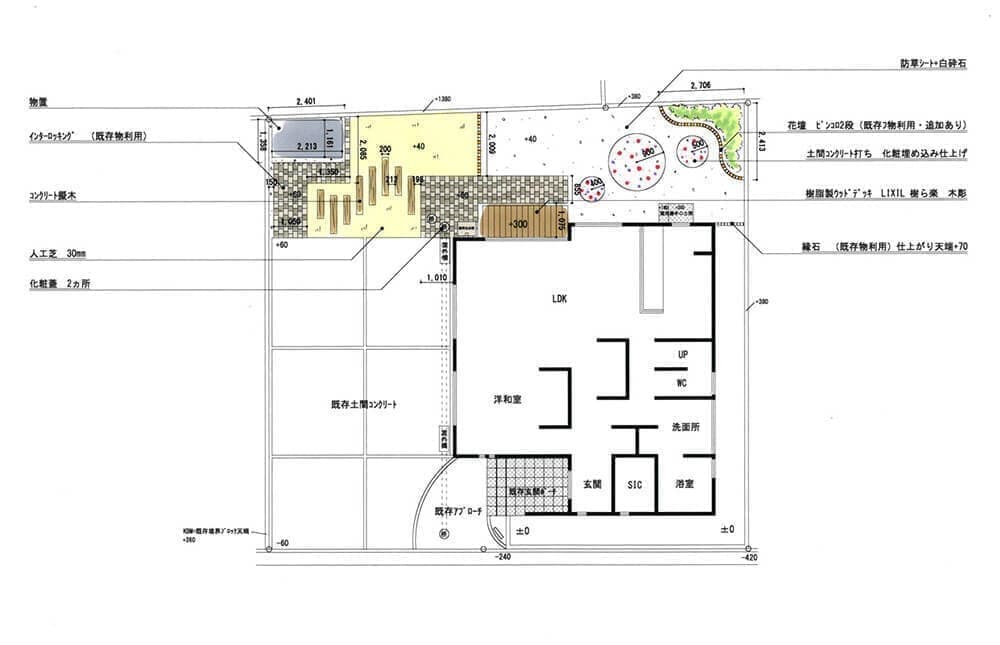
神奈川平塚市石川様邸施工例
参考費用:145万円(税抜)

PLAN
イメージパース・図面

【プランコンセプト】ナチュラルテイストを散りばめた素材選び
神奈川県平塚市の新築外構・エクステリアとお庭・ガーデンのプランです。
長方形の庭を単調にならずに動きをつけた庭にするかに重点を置き、施主様の好みを活かした配色と素材選びに力を注ぎました。
敷き枕木は擬木でコンクリート製、シロアリなどの害虫による腐食の心配もなく、リアルなテクスチャーが刻まれているので、本物と遜色なく庭に馴染みます。
また敷き枕木を直線に敷くのではなく、ランダムに左右に振って敷くことで、奥行きと動きを出すことができます。
COMPLETED
完成事例





コンクリート部分には施主様が気に入ったビー玉を埋め込みました。


ブラウン系の素材で統一感を持たせる
ウッドデッキはLIXILの樹ら楽ステージ木彫を設置しました。
人工木材のため湿気で腐ったり、シロアリによる食害の心配もありません。土汚れが水洗いで落とせ、表面の傷もサンドペーパーで簡単に補修でき、お手入れが簡単なのが特長です。
舗装はTOYO工業のインターロッキングガンデブロックを3色使用しナチュラルな質感を演出しました。
芝生に使用した人工芝は枕木を避けて自由な形に整えられるので、隅々まで敷き詰められるので雑草対策にも効果的です。
茶色の丸い蓋は雨水浸透桝の蓋です。本来、桝蓋は無機質な色合いの場合が多く、きれいに整えた庭で、そこだけ色が浮いてしまいがちです。
そこで桝蓋の上にカバーを取り付け、お庭に馴染む色で浮かない配慮をしました。このカバーですが、ドットアートを加えることができるようになっているので、メッセージやイラストなどの模様を描くこともできます。