デザインアース エクステリア&ガーデン
TOP | 新築外構施工例 | 湘南感漂う植栽とメンテナンスフリーな人工芝のお庭

湘南感漂う植栽と
メンテナンスフリーな人工芝のお庭

神奈川県藤沢市山内平祐様邸施工例

 

参考費用:150万円(税抜)
人工芝

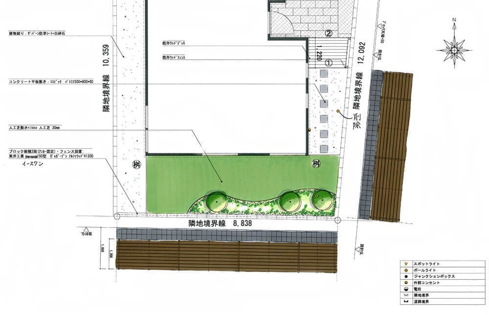
PLAN

イメージパース・図面
藤沢市山内平祐様邸パース
藤沢市山内平祐様邸平面図と立面図
 

【プランコンセプト】本物のような風合いの人工芝が広がるプライベートガーデン

神奈川県藤沢市の新築外構・エクステリアとお庭・ガーデンのプランです。
雑草対策が必要な庭を本物のような風合いの人工芝を敷きことで、草刈りの手間を省き、1年中青々とした清潔感のある庭に生まれ変わりました。

人工芝の下には水捌けをよくするための路盤を作った後で、上から防草シートを敷きました。土の上に直接、人工芝を敷いた場合よりも雑草対策の効果が高められます。

また庭全体を人工芝で敷き詰めるのではなく花壇スペースを設けたことで、変化のある庭となり季節の彩りも感じることができる庭となりました。


COMPLETED

完成事例
 樹脂フェンス
 

樹脂フェンス
 

天然木のような風合いの樹脂フェンスで高級感のあるシックな目隠しデザイン

木目調の樹脂製フェンスの長所は経年による大きな色の変化が発生しないことや天然木よりも安価に仕入れができること、色のバリエーションが豊富なことがあげられます。
今回、提案をしたディーズガーデンアルファウッドフェンスのブラックブラウンは高級感のある色味で落ち着いた雰囲気を演出します。

また目隠しフェンスの隙間は15㎜に設定しました。フェンスの隙間は好みもありますが、しっかり目隠しをされたい方は隙間の間隔を狭くすることをお勧めします。デメリットとしては風通しの良し悪しがあげられますが、それも状況に応じてとなりますので、しっかり相談をしていただければ問題ありません。