デザインアース エクステリア&ガーデン
TOP | 新築外構施工例 | 欧風瓦のデザインを活かした門塀一体型外構

欧風瓦のデザインを活かした門塀一体型外構

神奈川県厚木市I様邸施工例

 

参考費用:300万円(税抜)

欧風瓦のデザインを活かした
門塀一体型外構

神奈川県厚木市I様邸施工例

 

参考費用:300万円(税抜)
門塀一体型外構

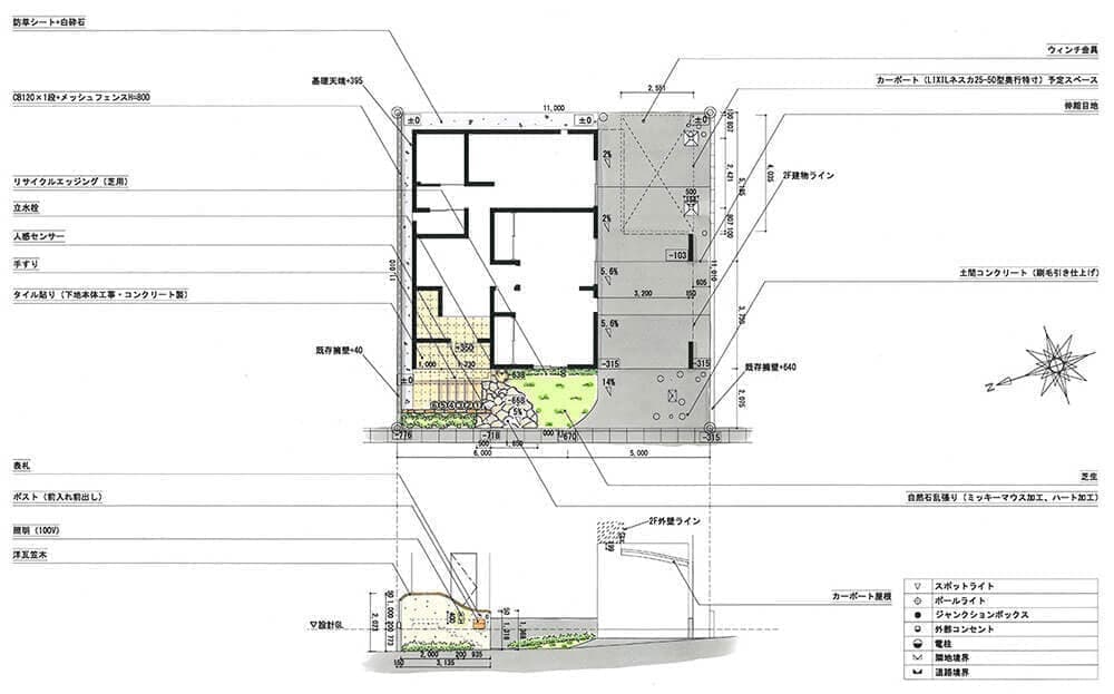
PLAN

イメージパース・図面
厚木市I様邸パース
厚木市市I様邸平面図と立面図
 

【プランコンセプト】ちょっとしたサプライズを用意した職人技のエクステリアプラン

神奈川県厚木市の新築外構・エクステリアのプランです。
建物の形状と敷地配置によって、ほぼ導線が決まっている建築計画です。西側が玄関となっており、 南側の2階テラス下が駐車場というゾーニングです。

玄関までの階段はそれなりの段数が必要な高低差があり、限られたスペースをいかに効率的に仕上 げるかが課題となります。今回のプランでは、階段袖にブロック塀を併設することで、門柱と手摺を併 用した門塀としました。道路側にしっかりと門塀を作ることで、道路境界を示すことができ、部外者の 侵入防止効果も得ることができます。

足元の自然石乱張りには、キャラクターを模ったものやハート型の石を加えて来客者の目を楽しませ るサプライズを用意しました。もちろん施主様も喜んでいただけるオリジナリティ高い職人技の演出です。

駐車場から玄関側に掛けての高低差を解消するために、中間に芝生スペースを設けています。石とコンクリートの中間に植栽を挟むことで、エクステリアが明るくなり、構造物の硬いイメージを柔らかな 印象に仕上げることができます。

細かなところの演出にも拘ったかわいい欧風エクステリアプランです。


COMPLETED

完成事例
オリジナリティ高い職人の技
 

階段袖のブロック塀で部外者の侵入防止効果をUP

ガラスの表札とディーズガーデンのポストで門廻りを可愛く演出

欧風デザインの門塀とエントランスを彩る小物たち。ガラスの表札とディーズガーデンのポストが門 廻りをよりかわいい空間に演出してくれます。

限られたスペースを効率的に

テラス下に設けた広い駐車場

おしゃれなレンガ造りの立水栓

タイル張りの階段

隠れミッキー

ハート型

自然石乱張りで作った隠れキャラクターとハート型。職人の技術であらゆる形に加工が可能です。

欧風瓦にマッチした門塀
 

瓦の笠木を活かした曲線的なデザインの塗り壁仕上げ門塀

重ねて施工する欧風瓦の特性を活かして、曲線的な天端を作ることが可能です。階段に合わせた曲線とすることで、階段歩行時は手すりとしても利用できます。壁の塗料は塗り壁とし、欧風瓦に最もマッチする質感に仕上げています。

また、壁面をくり抜き、照明を取り付けることで、夜間は道路側と階段を共に明るく照らしてくれます。門塀を道路からセットバックし、門塀手間は施主様が季節の草花を植えられる花壇スペースとしています。