IOTを活用しスマホで管理ができる
最先端でお洒落なクローズド外構

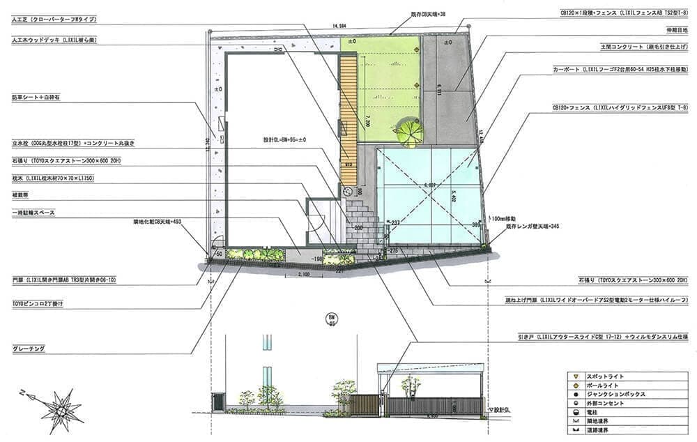
PLAN


【プランコンセプト】高級感を保ちつつ、使い勝手を考えたクローズドエクステリアプラン
神奈川県大和市の新築外構・エクステリアとお庭・ガーデンのプランです。
全体を縦格子で統一したスタイリッシュな外構を意識しました。エントランスは引戸タイプの門扉を採用し、玄関前で扉が邪魔にならないように配置しています。駐車場2台分は三協アルミのカーポート屋根【ビームス】で紫外線と雨をガード、正面はLIXILの電動式オーバーゲート【ワイドオーバードア】で大切なお車を守っています。駐車場は奥にもう1台車を停めることができるので、お客様もウェルカムです。道路側と庭側には防犯カメラを採用し、セキュリティも、万全。建物が道路際までしっかりと隣接しているので、建物沿いは植栽帯と一時的に利用できる駐輪スペースを設けました。お庭に大きすぎないウッドデッキを設置し、人工芝のスペースを広めに確保しました。目的に合わせて要所要所に意味を持たせたクローズド外構のプランです。
COMPLETED

スマホから開閉を操作できるオーバーゲートを採用したスマートエクステリアです。LIXIL【ホームセキュリティシステム】により、防犯カメラもスマホから確認ができます。IOTを駆使した最先端のエクステリアを導入しました。カーポート屋根にはダウンライトを4灯設置し、夜間はショールームのように愛車を演出するとともに、視界も確保されるのでお車の乗り降りもストレスがありません。

スライド門扉を採用したエントランス。前後開閉タイプの門扉では間口が狭くなります。また、出会い頭の衝突リスクも生じるため、敷地の条件に合わせてこちらの門扉を選んでいます。オーバーゲートと同様の縦格子のスライド門扉LIXIL【アウタースライド】でデザインの統一性も考えました。

カーポートの奥には来客のことも考えたエキストラ駐車場をご用意しています。普段はカーポートの下に駐車しているお車を、奥に移動することで、来客を安心して迎え入れることができます。


道路沿いにしっかり建物が建っているので、固いイメージを中和する植栽帯を設けました。お客様も通行人も四季を感じることのできる空間を意識しました。

お庭は人工芝を採用しています。いつでも美しい緑色。お子様が転んでもお怪我の心配は最小限に考えることができます。雑草やお庭の手入れとは無縁なメンテナンスフリーなガーデンになりました。


掃出窓からお庭へアクセスのできるウッドデッキです。メンテナンスフリーな人口木材である三協アルミ【ひとと木2】を採用。フェンスはシンプルモダンな三協アルミ【ジーエムラインW】でスッキリとしたデザインに仕上げています。階段は広めに作り、昇降しやすさを意識しています。ウッドデッキ上ではちょっとした洗濯物を干したり、腰掛けたりしながらお庭を楽しめる広めの濡れ縁としてご活用いただけます。


まるでカーショールームのような演出をご自宅に!
ダウンライトを施した大型カーポートは素敵なコレクションとして愛車を彩ります。ご自宅にカーショールームを設けたような高級感ある空間をお楽しみください。太いフレームが印象的で重厚感のある三協アルミのカーポート【ビームス】は車好きなお客様に大変おすすめな商品です。

この度は、我が家の庭をカッコ良く作ってくださり、ありがとうございました。
デザインアースさんにお世話になり感じたことは、そこに住む人に寄り添った選択をしてくれるということです。設計段階から施工まで全てがそうでした。
打合せでは仕様や見積もりを丁寧に説明してくれ、とてもわかりやすく納得のいくものを選ぶことができました。施工する職人さんは、高い技術力もさることながら人柄も大変よく、特に子供がお世話になり温かい時間を過ごす事ができました。現場でのものの置き方一つとっても、私たちの暮らしに配慮を感じるものでした。工事が終わるのが寂しいとさえ思いました(笑)
知人の紹介でデザインアースさんを知りましたが、お世話になって本当に良かったです。ありがとうございました。