木陰の中を歩くアプローチが美しい
和モダンスタイルのオープン外構

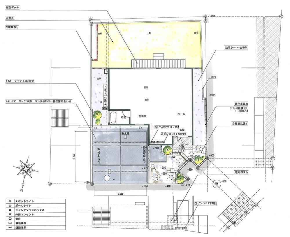
PLAN


【プランコンセプト】紅葉の美しい和モダンエクステリア
神奈川県鎌倉市の新築外構・エクステリア、お庭・ガーデンのプランです。
建物の色合いと調和した一体感のある外構にしたいと考え、LIXILカーポートSCの木彫色を使用しました。木彫色の色合いは和モダンのエクステリアとも調和し美しい仕上がりとなりました。アプローチに使用した石は長野県の諏訪鉄平石を使用しました。石張りの目地を深く入れることにより雨水の流れも綺麗に映し出します。植栽は日本原産の樹種にこだわりました。エントランスには大胆にシンボルツリーとしてイロハモミジを植栽しました。背景に窓等が無いため、LIXIL美彩のアップライトでシンボルツリーを照らし、影が建物に映るように計算したデザインとしました。お施主様の土地にはゴミストッカーがあることによりデッドスペースができてしまうため、自然に有効活用できるように考慮しました。
COMPLETED

諏訪鉄平石のアプローチと合うように、門柱にはグレーのタイルを使用し高級感が漂う門柱に仕上がりました。アプローチの階段は土地を広く利用し、植栽による木陰の中を歩くようなデザインとしました。


和モダンのエクステリアに合うように日本原産の植栽を選び、足元には下草と砂利を配置し小さな石庭を演出しました。

土地を有効活用したオープン外構ですが、植栽をすることにより視線を遮る目隠しとしました。また、駐車場からの動線を考慮したアプローチにより玄関から車への移動をスムーズに行うことができます。カーポートにはダウンライトを取り付け、夜間の駐車スペースも明るく使用することが可能です。


アプローチの石張りは目地を深くし雨水が綺麗に流れるようにデザインしました。ゴミストッカーの目隠しに常緑樹であるソヨゴを植栽、シンボルツリーには季節をお楽しみ頂けるように落葉樹であるイロハモミジを植栽しました。

お日様の当たるお庭には芝生と野菜を育てるための畑を設けました。LIXILの樹ら楽ステージを掃き出し窓から降りるための階段としました。縁側としての使用も可能なため家族団欒の時間をお楽しみ頂けます。

カーポートのダウンライトに加えシンボルツリーを照らすアップライトと、足元を照らす小さな石灯籠でライトアップしました。石灯籠の設置により和の雰囲気がより一層際立つ美しい夜景となりました。

和モダンエクステリアをより一層美しくするライトアップ
夜間のライトアップが派手になりすぎないように考慮しライトを設置しました。アプローチ付近にライトを設置し、足元を照らすことにより転倒防止などにも効果があります。また、オープン外構ですがライトを設置することにより防犯対策にも効果的です。

今回、カーポートと庭、玄関のエクステリアを施工していただきました。こちらの希望をできるだけ叶えたいという社員さんの想いがすごく伝わり、最後まで親身になって対応して下さいました。
職人さんも毎日暑い中丁寧に作業してくださり、ありがとうございました。住みながらの工事でしたが、職人さんの手作りの足場やスケジュールを合わせていただいたり気を使っていただく場面が多く、大変助かりました。
デザインはとてもよく、希望通り和モダンに仕上がりました。
本当にありがとうございました。