建物とカーポートの統一感を意識した
お洒落なオープン外構
 
             
 
 
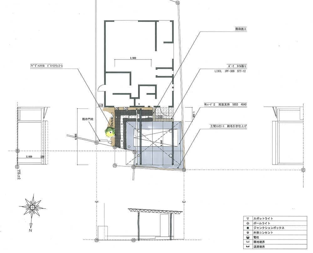
               PLAN
 
 
               【プランコンセプト】湘南の建物に合うお洒落なカーポート
神奈川県茅ヶ崎市の新築外構・エクステリアのプランです。
建物のイメージに合わせ、三協アルミのカーポートMシェードⅡを施工することで門柱やお持ちの車との統一感を持たせるようデザインしました。アプローチには全体の雰囲気を損なわないようアドヴァンのタイルを二色使用し、建物と土間のモノトーンと合わせることで一体感を演出しております。特徴的なアプローチゲートは、カーポートの梁を延長することによりその役割を担っています。
カーポートMシェードⅡは、3次元プレートトラス構造を取り入れた、唯一無二のカーポートです。トラス構造では、細く繊細な部材を三角形に組み合わせることで軽くて丈夫なデザイン性のある構造物を作ることができます。駐車場はエクステリアにおいて最も面積を占める部分となるため、周囲から注目されること間違いなしのおしゃれな商品です。
COMPLETED
 
 
               旗竿地により決して間口が広くない出入り口となりますが、大きなカーポートを施行することにより駐車が容易となります。カーポートの梁は、延長することでご利用になる方の好みに合わせたカスタマイズが可能です。今回のようにアプローチゲートとして利用したり、バイクや自転車などを置くスペースとしても活用できます。
タイルの施行上、道路に雨水を流す事が難しかっため施行方法を工夫しました。見栄えはそのままに駐車場とアプローチから水が流れるよう施行しております。
 
 
               幅の広いカーポートを駐車スペースに施行することにより、人やお荷物が雨に濡れることなく乗車が可能になります。
お車が一台でも二台用のカーポートを用いるメリットになります。
夏に不安な車内温度の上昇を防いだり冬には霜の対策や積雪の多い地域では雪の対策にもなります。
 
 
               カーポートには四つのダウンライトに加えアプローチを照らすために延長した梁にも一灯ライトを追加しました。
タイル内には等間隔に埋込ライトを施行し足元の明るさを演出しております。
 
 
               玄関ひさし取り付けの際は、こちらの建物側に問題があり、大変ご迷惑をおかけしてしまいましたが、そんなイレギュラーな事態が起こっても、冷静かつ柔軟に対応してくださったおかげで無事に施工完了しました。
追加の要望にも迅速かつ丁寧にご対応いただき、石井様には本当におせわになりました。希望通りのお家の顔が完成してとても満足しています。
今後も外構工事をお願いする際は、またよろしくお願いいたします。
