デザインアース エクステリア&ガーデン
TOP | 新築外構施工例 | 高低差を有効活用したエクステリアで高級感を演出

高低差を有効活用した
エクステリアで高級感を演出

神奈川県伊勢原市S様邸施工例

 

参考費用:365万円(税抜)
高低差を有効活用したエクステリア

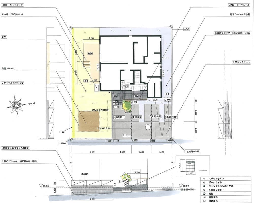
PLAN

イメージパース・図面
伊勢原市S様邸パース
伊勢原市S様邸平面図と立面図
 

【プランコンセプト】高低差を有効活用したエクステリア

神奈川県伊勢原市の新築外構・エクステリアのプランです。
敷地に高低差があり、そのままでは土地にスペースが空いてしまうため、土留めブロックを施行。高台となるお庭が広く使用できるようになり、もったいないスペースをなくすことができました。
玄関アプローチも基礎を高く施行することでタイルを用いてお庭まで繋げ、お庭と玄関を1つの階段で出入りできるようになっております。


COMPLETED

完成事例
化粧ブロックと門柱
 

門柱には東洋工業の【スティード】を使用し、色違いの化粧ブロックを施行することで模様を表現しました。ホワイトとグレーの2色ですっきりとしたモダンな雰囲気に仕上がりました。玄関タイルには新井窯業の【アドリア AD-300/3】を使用。アプローチとなる階段にも同じタイルを施行することで、お庭から玄関までの一体感を演出しました。

景観に馴染むフェンス

お庭が高台になるように土留めブロック(【SBIC】RECOM ST)を施行しました。シンプルなスリットが刻まれており、無機質なコンクリートにデザイン性をもたらします。お庭の周りにはLIXILの【プレスタフェンス2型】のブラックを施行、シンプルなデザインが景観に美しくなじみます。フェンスの中はお客様にご要望をいただいた畑になっており、家庭菜園を楽しむことができます。

門柱と階段

アプローチポールライト

門柱の足元には埋込式のスポットライト(【タカショー】グランドライト5型)を、ピンコロ石で施行した玄関花壇にはポールライト(【タカショー】エクスレッズポールライト)を設置し、夜間もアプローチが明るくなるように施行いたしました。
シンボルツリーにはソヨゴの木を植えております。常緑樹で寒さや日陰にも強いため、とても育てやすいです。秋になると小さなさくらんぼのような赤い実がつき、濃い緑色の葉との美しいコントラストがお楽しみいただけます。ソヨゴは、雌雄異株という種類の植物で、雄株と雌株の2種類に分かれています。そのため、実を楽しむ場合は雌株を植えることをお勧めします。

お施主様からの嬉しいお言葉
 

デザイン、工事、仕上がり、全てに満足しています。最初から最後までとても丁寧に作業をしてくださって、素人ではわからないことも教えていただいたりして、お話しするのも楽しかったです。
私たちの都合でご迷惑をおかけしたことも多々ありましたが、嫌な顔ひとつせずに対応してくださったこと、本当に感謝しております。
駐車場のコンクリート部分や土留めなど、見えなくなってしまう内側の部分もとても丁寧に作業されていて、信頼のできるとても良い職人さんに作業をしていただけたとうれしく思っています。
お庭の芝生も綺麗に植えていただいて、本当にお庭らしくなりました。ウッドデッキも広すぎるくらいで、とても贅沢なお庭になったと思います。赤い実が成るシンボルツリーも可愛らしくて大変気に入っています。植栽が入って、コンクリートの無機質な雰囲気が程よく和らぎ、素敵な外観になりました。夜になると表札も綺麗に照らされて、とても満足しています。
直接お礼をお伝えすることができなかった事が心残りですが、夫婦共々出来栄えに大変満足しております。寒空の下の作業は大変だったと思います。本当にありがとうございました。次また何かお願いする事があれば、担当の方も職人の方も同じ方にお願いしたいです。