デザインアース エクステリア&ガーデン
TOP | 新築外構施工例 | 可愛いらしい階段が目印のクラシックなエクステリア

可愛いらしい階段が目印の
クラシックなエクステリア

神奈川県藤沢市T様邸施工例

 

参考費用:350万円(税抜)
建物の色とマッチしたクラシックな外構

PLAN

イメージパース・図面
藤沢市T様邸パース
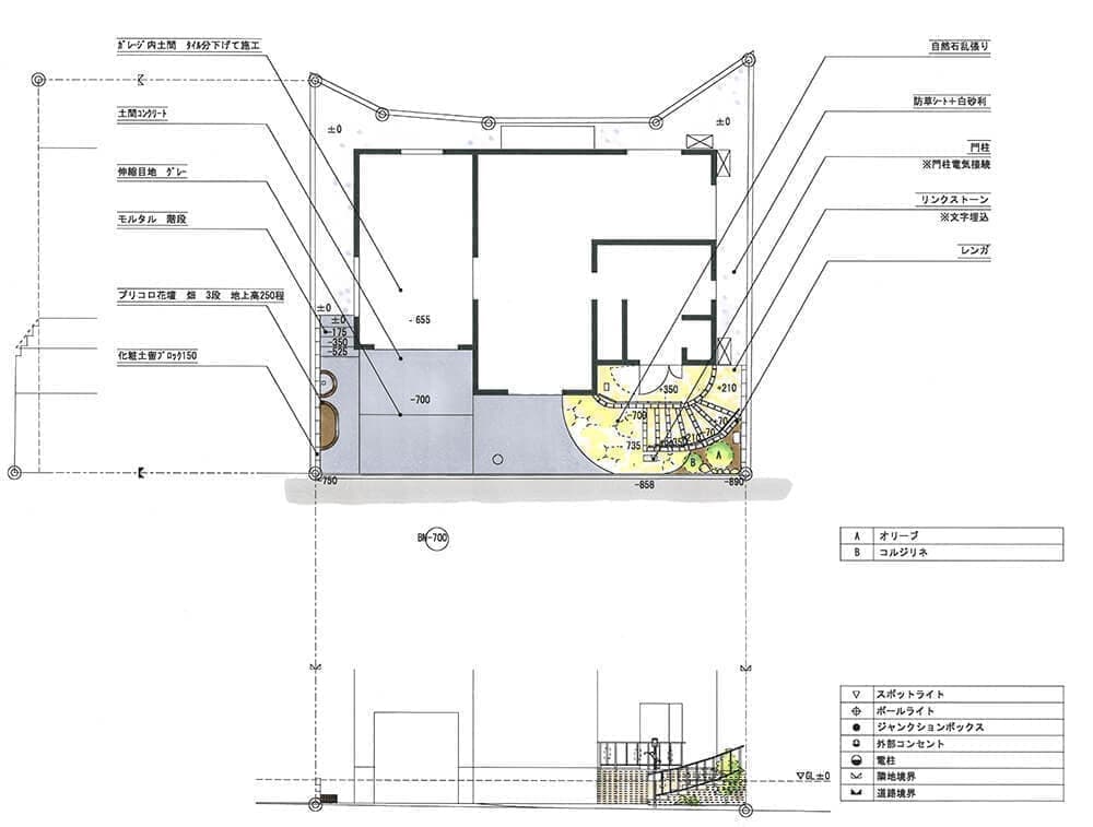
藤沢市T様邸平面図と立面図
 

【プランコンセプト】建物の雰囲気に合わせたクラシックなデザインのエクステリア

神奈川県藤沢市の新築外構・エクステリアの施工プランです。
近年、新築の建物では玄関ポーチまでハウスメーカーさんで施工されることが主流となっています。引っ越してからすぐに使用できるというメリットはありますが、玄関とエクステリアとのイメージが合わなくなってしまい、見栄えが悪くなる可能性があります。

そのため、お家が建ってからの方が外構のイメージもしやすく、玄関とエクステリアのバランスの取れたデザインにできます。そうすることで、お住まい全体の外観に合った玄関ポーチが作成可能となります。

工事が完了するまでお引越しが難しくなるというデメリットはありますが、建物やエクステリアの雰囲気に合わせた自由なデザインができます。ご家族にとって、お住まいは建物だけでなく、エクステリアも一生物になります。そのため、お客様が後悔することのない設計にしなくてはならないと考え、プランニングいたしました。


COMPLETED

完成事例
可愛らしい階段が目印のアプローチ
 

玄関から道路へ行くまでに高低差がありましたので、玄関扉から真っすぐ階段を設けず、迂回できるように丸みの帯びた階段をご提案いたしました。手すりは、クリーム色の外壁やオレンジ色の屋根材といった、可愛らしいデザインのお家に合うよう、柄付きの柱を施工いたしました。階段部分に使用している、東洋工業さんの「シャルドブリックウォール」や「オークルストーン アスール」を用いた自然石の乱張りも建物の雰囲気にマッチしています。
機能門柱は、オンリーワンクラブさんの「クラシカルエントランスポール」を使用しました。ヨーロッパの古い街並みに佇んでいるような見た目で、どこか懐かしい雰囲気を醸し出しています。ポストは、同じくオンリーワンクラブさんの「オーパス クラシコ」を使用しています。カラーは、フロストシルバー、フロストブラック、ダルレッド、フロストホワイト、フロストブラウンの計5色からお好みに合わせてお選びいただけます。アンティーク風の見た目が機能門柱との相性抜群で、異国情緒あふれる空間を演出しています。

玄関と愛車「フェアレディZ」

玄関前の植栽

階段

星型のリンクストーン

乱張石

オリーブをシンボルツリーとし、足元にはローズマリーやアベリアを植栽しております。
また、植栽のスペースには岐阜県産の石を使用して、桝が集中しているデッドスペースを有効活用しています。

階段はレンガ風のコンクリート製品を使用し、中にはしっかりと配筋が施してあります。階段の足元にはリンクストーンという舗装材を使用し、奥様のご希望でこっそり星形を配置しました。

アイアンの手すりは高額になってしまうため、LIXILさんの「アーキレール」を細かく使用することで丸みを表現し、高級感を演出しています。
建物や階段にも合うように、東洋工業さんの「オークルストーン アスール」を用いた石張りを施工し、よりクラシックで鮮やかなエクステリアになりました。

施主様の愛車「フェアレディZ」

車庫の中

シャッター

駐車場ゲートの中には旦那様の愛車である「フェアレディZ」を格納しています。担当者が車好きだったため、打ち合わせも賑やかに行うことができました。
シャッターの中は車を格納するだけでなく、車を整備する道具を置いたり、趣味を満喫する一つの部屋のように利用できます。

駐車場前には土間コンクリートを施工しています。
現在所有していなくてもいつかスポーツカーや車高の低い車を購入する際には縁石の切り下げ工事をお勧めしております。

T様邸家族写真
 

おしゃれなエクステリアで家族が笑顔になる!

「クラシカルエントランスポール」には日照センサーを取り付け、夜間は自動的にライトでアプローチを照らすようになっております。
 
ポーチを施行中は、玄関前が歩けなくなってしまいます。しかし、施主様にご協力いただいたことで、建物に合ったアプローチに仕上がりました。
 
最初のご来店からお食事をしているような楽しい空間で打ち合わせを進めることができました。
また、工事中に赤ちゃんが誕生するというまさかのサプライズもあり、非常に印象に残るお家になりました。

お客様からのアンケート

今回デザインアースさんにお願いして本当に良かったと思っています。自分たちが頭の中で描いていたイメージを見事に再現してくださり、ここの職人さんでしか実現できなかったであろう柔らかいカーブの階段も大変満足しております。
工事が始まったタイミングが私が出産間近なこともあり、体調などさまざまなことを配慮してくださり、こちらの要望にもできる限り応えてくださりとても助かりました。
長期にわたる工事でしたが、職人さんのお人柄がとても素敵でいつもお会いできるのが楽しみでした。
設計士さんとの打ち合わせも毎回楽しくて終わってしまうのが寂しかったです(笑)また何かあればぜひお願いいたします。
この度は素敵なデザインの外構をありがとうございました。