INFORMATION
NOTICE | |
---|---|
2025.10.3 | |
2025.5.17 |
オリジナル施工集「SOTO」
無料にてプレゼントいたします!
当店のこだわりの施工例やエクステリアの基礎知識を学べる1冊となっています。新築のエクステリアから外構やお庭のリフォーム・リノベーション、カフェやレストランまで様々な事例をご覧いただけます。ご自宅を過ごしやすい空間にするためのヒントとしてご活用ください。
デザイナーが打合せ・設計・工事監理・現場管理までを一括で担当する |
---|
当店は、工事後にお客様が「ああすれば良かった」「こうすれば良かった」と後悔をすることがないエクステリアとガーデンの専門店を目指しています。そのためにはスタッフの能力はもちろんのこと、しっかりとお客様とコミュニケーションを取り、ご要望を伺い、プロとしてのご提案ができることが大切です。
当店のスタッフは、営業、設計、現場監督というように担当が別れておりません。担当者が責任を持って、ヒヤリングやプレゼン等のお打合せから設計、お見積作成、工事監理、現場管理までを行います。また、作業に携わる作業員(職人)も、担当者が工事内容に合わせて適正な作業員を厳選しています。
担当者がすべての工程を経験し、理解しているからこそ幅広い知識と経験でお客様にプロとしてのご提案ができます。お客様とのコミュニケーションの場を分業化(営業、設計、監督など)しないことで、伝達ミスによる失敗もありません。お客様からのご相談はすべて担当者が一任します。
お客様とのお打合せは、じっくりと時間を掛けて行わせていただきます。工事予定地で立ち話程度で終わってしまうことはありません。お手数ですが一度ご来店ください。施工例やカタログ、雑誌、サンプルなどをご覧にいただきながらご要望をしっかりと伺います。やりたいことがあると色々と夢が広がります。担当者がお客様の立場に立って、同じ夢に向かってご提案させていただきます。
神奈川県秦野市のエクステリア・外構とガーデン・お庭の施工例 |
---|
秦野市のお客様施工例をご覧ただけます。秦野市にお住まい、またはお引っ越しをご予定でエクステリア・外構、ガーデン・お庭の工事をお考えのお客様を心からお待ちしております。
モノトーン調の素材を選んだ
落ち着いたオープン外構

PLAN


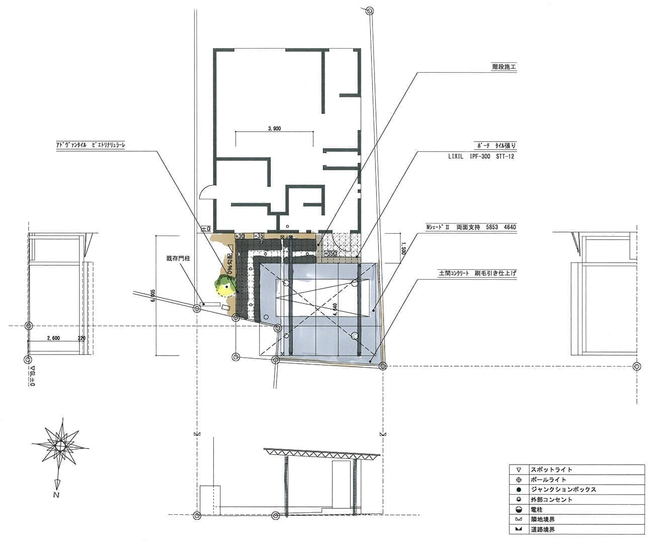
【プランコンセプト】土地の形状・高低差を解消した配置・素材選び
神奈川県秦野市の新築外構・エクステリアとお庭・ガーデンのプランです。
建物の基準となる地面の高さ(設計GL)よりも道路の位置が高いのが特徴の今回の住宅。対策として境界に高低差を解消するブロックを組積し、玄関奥の低い部分は勾配が取れないため、雨水などが留まらないよう浸水性のある「ドライテック」を舗装しました。
ドライテックにより道路から流れ込んできた雨水で玄関前に水を留めておく問題は解決しました。また駐車場部分にも施工しています。
配色をグレーとホワイトで統一し、飽きることのない落ち着いた雰囲気を出しました。
COMPLETED



不在時に荷物を受け取れる宅配ボックス付き機能門柱です。


自転車屋根は足元にストッパーをオプションで設置しました。鍵をつなげて防犯効果を高めることができます。




宅配ボックス付き機能門柱の魅力
最近は多くのメーカーが多種多様な宅配ボックス付き機能門柱を取り扱っています。
中でも今回設置した三協アルミのフレムスは、大型の郵便物の荷受けに対応をしているので家族が不在がちな家やネットでのお買い物が多い家には最適です。照明がオプションで付けられるので夜闇での荷物の取り出しで困ることも、防犯対策としても優れものです。
また機能門柱を立てている花壇に植栽をプラスすることで、構造物が多めのハードな玄関周りの印象を和らげ、温かい雰囲気の家を演出してくれます。

新築一軒家を建て、それに伴いデザインアースさんに新築外構工事をお願いしました。外構の引渡しは2019年2月、最初にデザインアースさんを訪れたのが2018年3月でしたので、約1年間もの間打ち合わせ等お世話になりました。
担当の奥山さんは人当たりもよく、急な変更にも嫌な顔を一つもせず対応していただき、毎回気持ちよく打ち合わせができました。
ドライテックという未対応だった工事に関しても気持ちよく対応していただきありがとうございました。
職人さんたちも皆さん笑顔で丁寧に、そして綺麗に対応・宏治していただきありがとうございました。
ちょっと(かなり?)予算オーバーしましたが、満足いく仕上がりです!
工事施工範囲 |
---|
当店では、新築やリフォーム・リノベーションの外構(エクステリア)、造園(ガーデン)工事を承っております。
新築での工事をご依頼のお客様は、必要な図面がお揃いでしたら、建築前の段階からご相談が可能です。
リフォーム・リノベーションをご依頼のお客様は、予め建築時の図面をご用意ください。
当店は、お客様とじっくり話し合い、ご要望を伺い、お客様の立場に立ってご提案ができるように、ご依頼数を制限した限定予約制となっています。

神奈川県秦野市の特徴 |
---|
秦野市は、人工約17万人の神奈川県中西部の市です。市の木はサザンカとコブシ、市の花はナデシコとアジサイ、市の鳥はウグイスです。
小田急線秦野駅は新宿から電車で約1時間です。都心から程近いながらも緑に囲まれた自然豊かな地域です。丹沢表尾根の登山口として有名な大倉やヤビツ峠など、季節ごとに素晴らしい景色を堪能できます。
秦野市には県立秦野戸川公園があり、秋は紅葉、冬はイルミネーションが見事で多くの人で賑わっています。