神奈川県のエクステリア・ガーデン専門店
デザインアース エクステリア&ガーデン
TOP | 茅ヶ崎市内 | 茅ヶ崎市でエクステリア・外構を行う全国1位受賞店

デザインアースは茅ヶ崎市で
エクステリア・外構工事を行う専門店です。

デザインアースは
茅ヶ崎市でエクステリア・外構工事を行う
専門店です。

INFORMATION

更新やキャンペーン情報など

オリジナル施工集「SOTO」

無料にてプレゼントいたします!

当店のこだわりの施工例やエクステリアの基礎知識を学べる1冊となっています。新築のエクステリアから外構やお庭のリフォーム・リノベーション、カフェやレストランまで様々な事例をご覧いただけます。ご自宅を過ごしやすい空間にするためのヒントとしてご活用ください。

デザイナーが打合せ・設計・工事監理・現場管理までを一括で担当する
エクステリア&ガーデン・ウッドデッキのプロの専門店

当店は、工事後にお客様が「ああすれば良かった」「こうすれば良かった」と後悔をすることがないエクステリアとガーデンの専門店を目指しています。そのためにはスタッフの能力はもちろんのこと、しっかりとお客様とコミュニケーションを取り、ご要望を伺い、プロとしてのご提案ができることが大切です。
 
当店のスタッフは、営業、設計、現場監督というように担当が別れておりません。担当者が責任を持って、ヒヤリングやプレゼン等のお打合せから設計、お見積作成、工事監理、現場管理までを行います。また、作業に携わる作業員(職人)も、担当者が工事内容に合わせて適正な作業員を厳選しています。
 
担当者がすべての工程を経験し、理解しているからこそ幅広い知識と経験でお客様にプロとしてのご提案ができます。お客様とのコミュニケーションの場を分業化(営業、設計、監督など)しないことで、伝達ミスによる失敗もありません。お客様からのご相談はすべて担当者が一任します。
 
お客様とのお打合せは、じっくりと時間を掛けて行わせていただきます。工事予定地で立ち話程度で終わってしまうことはありません。お手数ですが一度ご来店ください。施工例やカタログ、雑誌、サンプルなどをご覧にいただきながらご要望をしっかりと伺います。やりたいことがあると色々と夢が広がります。担当者がお客様の立場に立って、同じ夢に向かってご提案させていただきます。

神奈川県茅ヶ崎市のエクステリア・外構とガーデン・お庭の施工例

当社の湘南藤沢店がある藤沢市に隣接している、茅ヶ崎市のお客様施工例をご覧ただけます。茅ヶ崎市にお住まい、またはお引っ越しをご予定でエクステリア・外構、ガーデン・お庭の工事をお考えのお客様を心からお待ちしております。

建物とカーポートの統一感を意識した
お洒落なオープン外構

神奈川県茅ヶ崎市石子 様邸施工例
 
参考費用:320万円(税抜)
石子様邸外観

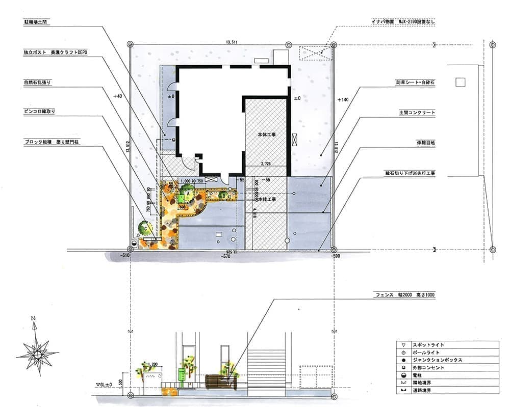
PLAN

イメージパース・図面
平面図
 

【プランコンセプト】湘南の建物に合うお洒落なカーポート

神奈川県茅ヶ崎市の新築外構・エクステリアのプランです。
建物のイメージに合わせ、三協アルミのカーポートMシェードⅡを施工することで門柱やお持ちの車との統一感を持たせるようデザインしました。アプローチには全体の雰囲気を損なわないようアドヴァンのタイルを二色使用し、建物と土間のモノトーンと合わせることで一体感を演出しております。特徴的なアプローチゲートは、カーポートの梁を延長することによりその役割を担っています。
 
カーポートMシェードⅡは、3次元プレートトラス構造を取り入れた、唯一無二のカーポートです。トラス構造では、細く繊細な部材を三角形に組み合わせることで軽くて丈夫なデザイン性のある構造物を作ることができます。駐車場はエクステリアにおいて最も面積を占める部分となるため、周囲から注目されること間違いなしのおしゃれな商品です。


COMPLETED

完成事例
カーポートMシェードⅡ
 

旗竿地により決して間口が広くない出入り口となりますが、大きなカーポートを施行することにより駐車が容易となります。カーポートの梁は、延長することでご利用になる方の好みに合わせたカスタマイズが可能です。今回のようにアプローチゲートとして利用したり、バイクや自転車などを置くスペースとしても活用できます。
 
タイルの施行上、道路に雨水を流す事が難しかっため施行方法を工夫しました。見栄えはそのままに駐車場とアプローチから水が流れるよう施行しております。

カーポートMシェードⅡ
 

幅の広いカーポートを駐車スペースに施行することにより、人やお荷物が雨に濡れることなく乗車が可能になります。
お車が一台でも二台用のカーポートを用いるメリットになります。
夏に不安な車内温度の上昇を防いだり冬には霜の対策や積雪の多い地域では雪の対策にもなります。

ナイトシーン
 

カーポートには四つのダウンライトに加えアプローチを照らすために延長した梁にも一灯ライトを追加しました。
タイル内には等間隔に埋込ライトを施行し足元の明るさを演出しております。

お客様からの声
 

初回の打ち合わせからデザインアースさんにお願いしたいなと思うくらいとても印象が良かったです。職人さんは工事のたびに丁寧に説明してから世耕してくださり、想像以上にとても綺麗に仕上げて下さいました。施工方法等について色々と質問させていただきましたが、ひとつひとつ丁寧に答えてくださり、常にプライドを持ってお仕事されているんだなと感じる事ができました。何よりお二人ともとても人柄がいいので、ついつい工事の終わりのたびにお話がしたくなってしまいました。
玄関ひさし取り付けの際は、こちらの建物側に問題があり、大変ご迷惑をおかけしてしまいましたが、そんなイレギュラーな事態が起こっても、冷静かつ柔軟に対応してくださったおかげで無事に施工完了しました。
追加の要望にも迅速かつ丁寧にご対応いただき、石井様には本当におせわになりました。希望通りのお家の顔が完成してとても満足しています。
今後も外構工事をお願いする際は、またよろしくお願いいたします。


ビルトインガレージと
石張りのおしゃれなアプローチ

神奈川県茅ヶ崎市I 様邸施工例
 
参考費用:300万円(税抜)
I様邸外観

PLAN

イメージパース・図面
イメージパース
平面図
 

【プランコンセプト】ビルトインガレージの利用とお子様のための玄関アプローチ

神奈川県茅ヶ崎市の新築外構・エクステリアの施工プランです。
アプローチ、駐車場、お庭を一つにまとめた、一体感のあるエクステリアです。ビルトインガレージがある建物のため、駐車場側は駐車が行いやすいように設計しました。
門柱から玄関までは石張りを施工し、アプローチに明るい印象を持たせています。玄関側は、二人のお子様のために可愛くておしゃれなアプローチになるよう、デザインしました。

COMPLETED

完成事例
I様邸外観
 

道路側の門柱には表札とインターホンを取り付け、玄関前にはポストを兼ねた宅配ボックスを設置しました。インターホンを道路側の門柱に設置することで、敷地内への侵入をなるべく少なくし、プライベートな空間の確保に役立ちます。
また、門柱から玄関までは石張りを施工しました。東洋工業さんのオークルストーン パールイエローを使用しており、その明るい色が駐車場のコンクリートと玄関の間にアクセントを持たせています。
 
フォーカルポイントの一つでもある、美濃クラフトさんのポスト「デポ」は、レトロな郵便ポストを思わせるデザインとカラーバリエーションが人気の宅配ボックスです。
サイズは、100サイズと80サイズの2種類からお選びいただけます。さらに、宅配ボックスとポストの組み合わせや、サイズ違いの宅配ボックス同士の組み合わせなど、ライフスタイルに合わせてお好みの組み合わせができます。
施錠には、南京錠を採用しています。セキュリティ面が不安に思うかもしれませんが、あえて簡単にすることで、宅配業者さんや利用者の方が使用しやすくしているそうです。また、デザイン面で見ても南京錠がよく似合っています。

門柱
 
ポストとフェンス
 
アプローチ
 
フェンスと植栽

中央の花壇には常緑樹のオリーブを植栽し、その足元には岐阜産の石を施工しています。
その後ろにはグローベンさんの「PLADプラス」を使用したフェンスを施工しています。フェンスの裏側には室外機が隠れています。室外機は建物の性質上、やむをえず目立つ場所に置くことが多いのですが、フェンスを立てたりカバーで囲うなどの工夫を凝らして隠したり、目立たなくすることができます。
近年室外機専用のカバーも販売されており、おしゃれなデザインの商品も増えているため、お家の雰囲気に合わせてお選びいただけます。

ビルトインガレージ
 

担当者も羨ましがっていたビルトインガレージ。建物内との境目がガラス張りになっており、お家の中にいながら愛車を眺めることができる、車好きにはたまらない仕様となっていました。
 
今回の工事では、縁石の切り下げ工事を行いました。縁石とは、車道と歩道の境界線として利用される区切りのための石です。そして、新築を構えたり、リフォームを行った際に住宅地と車道の間の段差を解消するための工事を切り下げ工事といいます。
 
縁石の段差をなくすことにより、車高の低い車でも駐車が容易になります。
縁石の切り下げ工事は、土間コンクリートを打設してしまうと施工が難しくなってしまうため、建物周りの施工が行われていない状態で行うことが望ましいです。

ナイトシーン
 

建物だけでなく、エクステリアにもこだわりを

夜間は照明によってアプローチが照らされています。日照センサーにより、暗くなると自動的に点灯し、留守にしていても自動で点灯するため、防犯にもつながります。
 
家は建物だけでなく、エクステリアまで綺麗に仕上げることで印象がガラリと変わります。どんなに素敵なお家でもエクステリアとのバランスが悪ければ格好悪い印象になってしまします。そのため、エクステリアにもこだわることで、お家全体がおしゃれで格好いい、オリジナリティあふれる空間になります。

お客様からの声
 

ハウスメーカーから提案されたプランが満足いくものではなく、外構業者さんを色々探していた中で見つけたのがデザインアースさんでした。
ビルトインガレージに合わせたデザインを希望していたところ、担当していただいた石井さんも車好きで、外構以外の話で盛り上がり、楽しい打ち合わせでした。
プラン内容もこちらの要望を丁寧に聞いていただきました。工事が始まると各工程で専門の職人さんたちが作業してくれましたが、みなさん熟練の方揃いで、仕上がりは完璧でした。
ビルトインガレージに合うシンプルモダンな外構にとても満足しております。ありがとうございました。


工事施工範囲

当店では、新築やリフォーム・リノベーションの外構(エクステリア)、造園(ガーデン)工事を承っております。

新築での工事をご依頼のお客様は、必要な図面がお揃いでしたら、建築前の段階からご相談が可能です。
リフォーム・リノベーションをご依頼のお客様は、予め建築時の図面をご用意ください。
 
当店は、お客様とじっくり話し合い、ご要望を伺い、お客様の立場に立ってご提案ができるように、ご依頼数を制限した限定予約制となっています。

  • 施工可能な地域は以下になります。

 
※上記の施工範囲以外でも、地域によっては対応可能な場合がございます。その際は、お気軽にお問合せ下さい。

工事施工範囲地図

庭木のお手入れ・剪定サービス施工範囲


当店では、剪定、伐採、抜根、刈り込み、芝刈り等を行う【庭木のお手入れ・剪定サービス】を実施しております。
お庭のお手入れが難しいという方や忙しくてお庭のお手入れをする時間がないという方のために、当店の職人が綺麗なお庭を維持し、お家が完成した時の新鮮な気持ちを常に身近に感じられるお手伝いをいたします。

庭木のお手入れ・剪定サービスの施工可能な地域は以下になります。

 
※上記の施工範囲以外でも、地域によっては対応可能な場合がございます。その際は、お気軽にお問合せ下さい。

剪定サービス施工範囲

神奈川県茅ヶ崎市の特徴

茅ヶ崎市は神奈川県の中南部に位置する特例市です。人工は約24万人、市の木はアカシア、市の花はツツジ、市の鳥はシジュウカラです。
 
相模湾に面した湘南地方の中心に位置しています。市内にはサザンビーチエリアといわれる地域があり、サザンオールスターズの桑田佳祐さんの出身地としても有名です。茅ヶ崎市の海側エリアは比較的気温が高いので、南国やリゾートを連想させる建築物が多く見られます。建築との統一性を大事にしたおしゃれなエクステリア・外構を目にすることがよくある地域です。

| 1 | 2 |