INFORMATION
NOTICE | |
---|---|
2025.10.3 | |
2025.5.17 |
オリジナル施工集「SOTO」
無料にてプレゼントいたします!
当店のこだわりの施工例やエクステリアの基礎知識を学べる1冊となっています。新築のエクステリアから外構やお庭のリフォーム・リノベーション、カフェやレストランまで様々な事例をご覧いただけます。ご自宅を過ごしやすい空間にするためのヒントとしてご活用ください。
デザイナーが打合せ・設計・工事監理・現場管理までを一括で担当する |
---|
当店は、工事後にお客様が「ああすれば良かった」「こうすれば良かった」と後悔をすることがないエクステリアとガーデンの専門店を目指しています。そのためにはスタッフの能力はもちろんのこと、しっかりとお客様とコミュニケーションを取り、ご要望を伺い、プロとしてのご提案ができることが大切です。
当店のスタッフは、営業、設計、現場監督というように担当が別れておりません。担当者が責任を持って、ヒヤリングやプレゼン等のお打合せから設計、お見積作成、工事監理、現場管理までを行います。また、作業に携わる作業員(職人)も、担当者が工事内容に合わせて適正な作業員を厳選しています。
担当者がすべての工程を経験し、理解しているからこそ幅広い知識と経験でお客様にプロとしてのご提案ができます。お客様とのコミュニケーションの場を分業化(営業、設計、監督など)しないことで、伝達ミスによる失敗もありません。お客様からのご相談はすべて担当者が一任します。
お客様とのお打合せは、じっくりと時間を掛けて行わせていただきます。工事予定地で立ち話程度で終わってしまうことはありません。お手数ですが一度ご来店ください。施工例やカタログ、雑誌、サンプルなどをご覧にいただきながらご要望をしっかりと伺います。やりたいことがあると色々と夢が広がります。担当者がお客様の立場に立って、同じ夢に向かってご提案させていただきます。
神奈川県平塚市のエクステリア・外構とガーデン・お庭の施工例 |
---|
以下から平塚市のお客様施工例をご覧ただけます。
平塚市のH様邸では、駐車場とお庭の全面的なリノベーション工事を行いまいた。平塚市は住宅街が多く、近年リフォームやリノベーションのご要望が増えています。H様邸もお家の外壁塗装を行い、建物が綺麗になっていましたが、エクステリアとガーデンはそのままの状態でした。お家のリフォームに伴い、エクステリアとガーデンのリフォーム・リノベーションのご依頼をいただきました。全面的なリノベーションを行うことで、敷地が広くなったように感じられると大変お喜びいただきました。ビフォー・アフターをぜひご覧ください。
S様邸は新しく開発された分譲地の新築外構です。平塚市は多くの新築が建築中のエリアでもあります。密集した住宅街は、オープン外構にすることで近隣の目が防犯にもつながります。背の高い壁もありませんので、地域全体が明るくなります。安全性の高い町づくりに適しています。
石川様邸は生活に必要な最低限の外構のみでお庭は手付かずの状態でした。平塚市は新しい住宅も本当に多いです。実際に住んでみてからお庭のイメージが湧いてくることはよくあります。雑草の管理、物置の必要性、ウッドデッキの活用性など。本当に必要なお庭をつくるには絶好のタイミングだと思われます。
平塚市にお住まい、またはお引っ越しをご予定でエクステリア・外構、ガーデン・お庭の工事をお考えのお客様を心からお待ちしております。
スペースを有効活用したセミクローズド外構
BEFORE

AFTER

PLAN


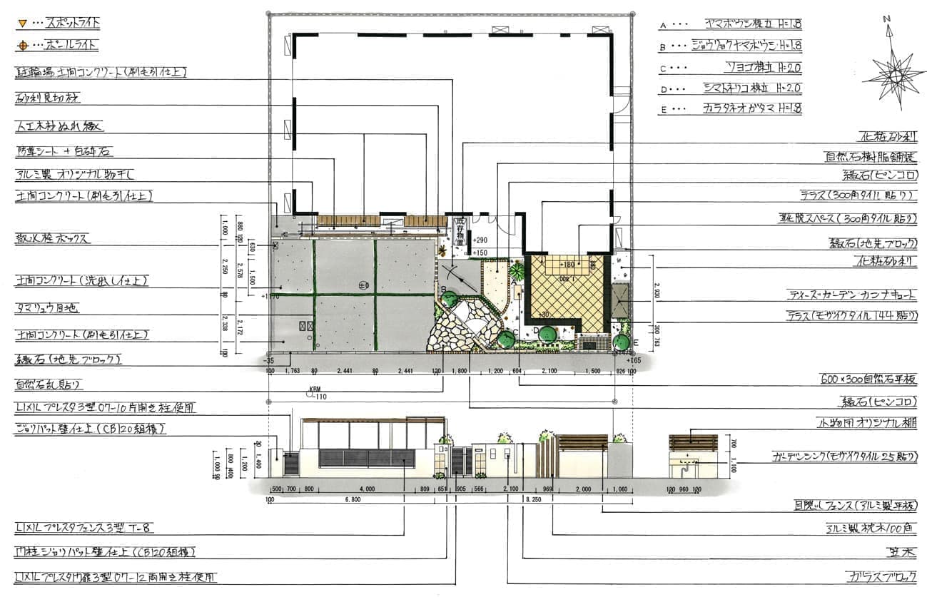
【プランコンセプト】エクステリアの全面リノベーション
神奈川県平塚市のエクステリアリノベーションプランです。
住宅のリフォームが終わったので、外構のリフォームをお考えとのことでご依頼いただきました。南側をすべて解体し、心機一転のリノベーション工事となりました。
駐車場以外はクローズドとしたセミクローズ外構をご要望でした。敷地を上手に活用するため、お庭をテラスにしてオリジナルのガーデンシンクやディーズガーデンの物置を設置し、ご家族でBBQなどご自由にご利用できる空間をご提案しました。
物干しもエクステリアと一体として、LIXILのGフレームでオリジナルのものをご提案しました。また、プロパンガスの交換時に利用できる勝手口を用意し、業者さんの敷地内の出入りを最小限にしています。
BEFORE

物置や花壇で狭くなってしまっている、着工前の掃出窓前。
AFTER

リノベーションで広く明るくなりました。物置はディーズガーデンのカンナキュートを設置して、モニュメントのような印象に。既存のコンクリートタタキは、テラスと同様のタイルで美しくなり、空間もずっと広くなりました。
BEFORE

道路沿いにあった既存の袖壁と花壇。
AFTER

袖壁をなくし、アルミ製ウッドラッピング枕木やフェンス、距離の短い袖壁を新設することで圧迫感のない境界が出来上がりました。さらに水道を移設し、ガーデンシンクにすることで使いやすく汎用性が高くなりました。樹木への水やりは、側面の蛇口から給水が出来るようになっています。
BEFORE

着工前の物干しスペース。
AFTER

袖壁で駐車場との境界をはっきりとさせました。LIXILプラスGの材料を組み合わせることでスタイリッシュなオリジナル物干しとなっています。足元は、人工木ウッドデッキの濡れ縁となっているので、室内からの物干しへ簡単に手が届きます。







コンクリート洗い出し仕上げと刷毛引き仕上げを組み合わせた市松模様の駐車場


お家のリフォームとバランスの取れた外構リノベーションへ
せっかくお家が綺麗になっても、外構がそのままではやはり台無しです。外構をフルリノベーションすることで、敷地全体が美しくなりました。また、駐車場やお庭の活用方法、生活導線を考えることで、以前よりもずっと使いやすく生活しやすい空間へ大変身しました。とても広く明るくなったとお客様にも大変お喜びいただきました。

家と違って外構のイメージはなかなかつきにくかったのですが、担当の吉川さんに、こちらの要望をよく聞いて頂き素敵な庭が完成しました。打ち合わせを進めていくうちに何度もこちらの要望が変わり最終デザインの決定まで相当期間を要しましたが、吉川さんには最初から最後までとても誠実な対応をして頂きました。
施工を担当していただいた方も、当方の家族や近隣の方にまで気を使って作業して頂きました。作業期間も長かったので、工事が終わる頃には、とても他人とは思えないほど親しみも湧きました。もちろん仕事ぶりもとても丁寧で満足しています。
これからも、また外構関連で何かお願いするときはぜひ吉川さんのところでと思っています。今回は色々とありがとうございました。
工事施工範囲 |
---|
当店では、新築やリフォーム・リノベーションの外構(エクステリア)、造園(ガーデン)工事を承っております。
新築での工事をご依頼のお客様は、必要な図面がお揃いでしたら、建築前の段階からご相談が可能です。
リフォーム・リノベーションをご依頼のお客様は、予め建築時の図面をご用意ください。
当店は、お客様とじっくり話し合い、ご要望を伺い、お客様の立場に立ってご提案ができるように、ご依頼数を制限した限定予約制となっています。

神奈川県平塚市の特徴 |
---|
平塚市は人工約26万人の特例市です。市の木はクスノキ、市の花はナデシコ、市の鳥はシラサギ(コサギ)です。
7月に開催される「湘南ひらつか七夕まつり」は毎年170万人以上の人々が訪れる大イベントです。相模湾にも面しており、湘南平の夜景なども地元では有名なスポットとなっています。平塚市は、湘南ベルマーレのホームでもあります。スポーツも盛んな地域で、選手と市民が触れ合うことのできるオープンな地域です。