INFORMATION
NOTICE | |
---|---|
2025.10.3 | |
2025.5.17 |
オリジナル施工集「SOTO」
無料にてプレゼントいたします!
当店のこだわりの施工例やエクステリアの基礎知識を学べる1冊となっています。新築のエクステリアから外構やお庭のリフォーム・リノベーション、カフェやレストランまで様々な事例をご覧いただけます。ご自宅を過ごしやすい空間にするためのヒントとしてご活用ください。
デザイナーが打合せ・設計・工事監理・現場管理までを一括で担当する |
---|
当店は、工事後にお客様が「ああすれば良かった」「こうすれば良かった」と後悔をすることがないエクステリアとガーデンの専門店を目指しています。そのためにはスタッフの能力はもちろんのこと、しっかりとお客様とコミュニケーションを取り、ご要望を伺い、プロとしてのご提案ができることが大切です。
当店のスタッフは、営業、設計、現場監督というように担当が別れておりません。担当者が責任を持って、ヒヤリングやプレゼン等のお打合せから設計、お見積作成、工事監理、現場管理までを行います。また、作業に携わる作業員(職人)も、担当者が工事内容に合わせて適正な作業員を厳選しています。
担当者がすべての工程を経験し、理解しているからこそ幅広い知識と経験でお客様にプロとしてのご提案ができます。お客様とのコミュニケーションの場を分業化(営業、設計、監督など)しないことで、伝達ミスによる失敗もありません。お客様からのご相談はすべて担当者が一任します。
お客様とのお打合せは、じっくりと時間を掛けて行わせていただきます。工事予定地で立ち話程度で終わってしまうことはありません。お手数ですが一度ご来店ください。施工例やカタログ、雑誌、サンプルなどをご覧にいただきながらご要望をしっかりと伺います。やりたいことがあると色々と夢が広がります。担当者がお客様の立場に立って、同じ夢に向かってご提案させていただきます。
神奈川県大和市のエクステリア・外構とガーデン・お庭の施工例 |
---|
デザインアースエクステリア&ガーデン大和事務所がある大和市のお客様施工例をご覧ただけます。大和市にお住まい、またはお引っ越しをご予定でエクステリア・外構、ガーデン・お庭の工事をお考えのお客様を心からお待ちしております。
建物・外構・庭の
調和から生まれる最高級の外構

PLAN




【プランコンセプト】四季を身近で感じ、落ち着いたリゾート生活を過ごすようなプラン
神奈川県大和市の新築外構・エクステリアとお庭・ガーデンのプランです。
内装にも大変拘った施主様の思いに答えられるエクステリアを考察し、スタイリッシュな平屋のご自宅とライフスタイルの調和を考えて設計しました。屋内と同じデザインの外仕様タイルで内と外の空間を一体にしています。タイルテラスの左右には建物と調和するダークカラーのウッドデッキを採用し、デザイン的にも材質も変化のある床面に仕上げました。
東側から南側、西側にかけて大きな掃き出し窓が特徴的な建物ですので、暖かい季節は外での時間を楽しみながらも近隣からの視線が気にならないように大小の樹木を組み合わせています。樹木の南側は広い芝生となっており、お子様が元気に走り回れる空間になっています。
「春にはサクラが咲きお花見が楽しめる。夏には緑が生い茂り、ご友人を招待してBBQや日光浴が楽しめる。秋にはモミジを主とした落葉樹の紅葉が堪能できる。冬には南側の木々が落葉し、暖かい太陽光が屋内にも差し込む」というような施主が1年を通してストレスなくお好みのライフスタイルをおくることできる屋外空間を心がけています。
COMPLETED


建物東側のウッドデッキスペース。オリジナルのベンチを施工しつつ、来客時はテーブルやベンチを更におけるスペースを確保しています。
ウッドデッキは、木の色合いや質感が庭などの屋外空間に自然な雰囲気をもたらし、日々の生活に温かみと美しさを提供してくれます。また、家族や友人を招いてパーティーを楽しんだり、ファニチャーを配置してリラックスできる空間を作り上げることもできます。
夜は屋内外のライトアップによりレストランのような素敵な演出となっています。


南側のタイルテラススペース、人工木の上では使用できない火の焚けるスペースです。ご友人を招待して、BBQを楽しめます。
照明を点ければ、夜でもホームパーティーを楽しめます。バーのようにお酒を楽しむ空間にも最適です。


ガーデンソファーやベンチに座り、素晴らしいお庭を眺めながらのティータイム


屋根から降りる外壁の裏にはガーデンシンクが設けられており、洗い物や料理の盛り付けもできるスペースとなっています。


ウッドデッキ西側はコンクリート擁壁と空洞ブロックを採用した目隠し塀で、近隣からの視線と暑い西日を遮断しています。真西にはGフレームで創作したバーゴラを施工し、近隣2階窓からの目隠しをするとともに、上からの木漏れ日が明るく圧迫感の少ない空間となるように設計しています。






ウッドデッキの東側には背もたれと袖机のあるオリジナルベンチを施工、袖机は床面と同様のオイルの滑り止めのないものを使用しました。ベンチの背中側はモミジやヒメシャラで秋には紅葉が楽しめます。


オリジナルの創作ベンチは、座面に樹ら楽の板材を採用した蓋を設置し、収納機能を持たせています。板材を固定するオリジナルの部材は、有限会社オクモト工業様に制作協力をご依頼し実現しました。


オリジナルの創作ベンチには、防水コンセントを設置し、至るところから電源を供給できるようにしています。またウッドデッキの横には、鉄板専用の広い洗い場を用意し、ガーデンシンクと分けて洗い物ができるようになっています。



ホームパーティーで活躍するオリジナルのガーデンシンクは、水と湯の混合水栓を使用しているので、季節を問わずどんなものも洗えます。サイドテーブルスペースを広くとってあるので、食器を置くスペースや調理スペースとしても利用できます。




メインエントランスの並びは、ひときわ目を引くドライガーデンを、施主様が作り込んでいく度に美しく進化していきます。


建物に負けないどっしりとした重厚感ある門塀となっています。表札や門柱、シンボルツリーにも照明を仕込んでいるので、夜も美しい演出を見せてくれます。







門塀周りのサークルは、玄関と駐車場へアクセスする中核となっています。あらゆる状況に対応できる動線を作ることができます。




目隠し塀手前にはアオダモ株立やミモザを植え、床面に芝生敷き、構造物の堅いイメージを和らげる植栽スペースとしました。


プライベートの守られたライフスタイルを楽しむ空間演出とエクステリア
近隣からの視線を隠すため、植物と目隠し塀を組み合わせた圧迫感の少ないプライベート空間としました。緑豊かなスペースとし、四季を感じられる落葉樹と目隠しとして機能する常緑樹をバランス良く配置しています。自然豊かなお子様ものびのび育つお庭です。
また建物、エクステリア、ガーデンの調和を大切にしたエクステリアです。ご家族も遊びにいらしたご友人たちも始終、笑顔が溢れる時を存分に楽しんで頂ける空間となっています。
昨今は、屋外での生活を豊かに過ごすために暮らしの中でエクステリアやガーデンは欠かせないものになっています。お家の中での生活同様に、お庭で過ごす時間はかけがえのないものと位置づけられています。そんなかけがえのない時間をストレスなく過ごすことのできるエクステリア&ガーデンを目指して完成させたのが、こちらのお庭です。

設計段階での細やかな打ち合わせ、工事の技術とチームワークが素晴らしかったと感謝しております。施行中のこちらの疑問やニーズにも迅速に丁寧な対応で対処してくださいました。特に外壁のデザイン、仕上がりは圧巻でした。作業中も工程の細かさ、また職人さんの職人魂に感銘を受けました。工事が全て完了して、ガーデンの植物が育ってくるとより一層、満足感が湧いてきました。
今後、何かの工事の機会がありましたらぜひお願いしたいと思います。知人にもご紹介させていただきたいです。
この度は素晴らしい作品をありがとうございました。
IOTを活用しスマホで管理ができる
最先端でお洒落なクローズド外構

PLAN


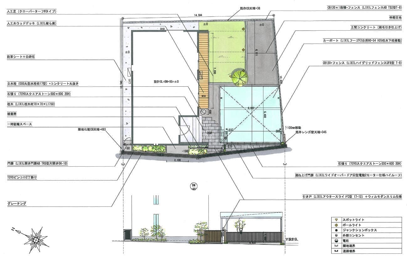
【プランコンセプト】高級感を保ちつつ、使い勝手を考えたクローズドエクステリアプラン
神奈川県大和市の新築外構・エクステリアとお庭・ガーデンのプランです。
全体を縦格子で統一したスタイリッシュな外構を意識しました。エントランスは引戸タイプの門扉を採用し、玄関前で扉が邪魔にならないように配置しています。駐車場2台分は三協アルミのカーポート屋根【ビームス】で紫外線と雨をガード、正面はLIXILの電動式オーバーゲート【ワイドオーバードア】で大切なお車を守っています。駐車場は奥にもう1台車を停めることができるので、お客様もウェルカムです。道路側と庭側には防犯カメラを採用し、セキュリティも、万全。建物が道路際までしっかりと隣接しているので、建物沿いは植栽帯と一時的に利用できる駐輪スペースを設けました。お庭に大きすぎないウッドデッキを設置し、人工芝のスペースを広めに確保しました。目的に合わせて要所要所に意味を持たせたクローズド外構のプランです。
COMPLETED

スマホから開閉を操作できるオーバーゲートを採用したスマートエクステリアです。LIXIL【ホームセキュリティシステム】により、防犯カメラもスマホから確認ができます。IOTを駆使した最先端のエクステリアを導入しました。カーポート屋根にはダウンライトを4灯設置し、夜間はショールームのように愛車を演出するとともに、視界も確保されるのでお車の乗り降りもストレスがありません。

スライド門扉を採用したエントランス。前後開閉タイプの門扉では間口が狭くなります。また、出会い頭の衝突リスクも生じるため、敷地の条件に合わせてこちらの門扉を選んでいます。オーバーゲートと同様の縦格子のスライド門扉LIXIL【アウタースライド】でデザインの統一性も考えました。

カーポートの奥には来客のことも考えたエキストラ駐車場をご用意しています。普段はカーポートの下に駐車しているお車を、奥に移動することで、来客を安心して迎え入れることができます。


道路沿いにしっかり建物が建っているので、固いイメージを中和する植栽帯を設けました。お客様も通行人も四季を感じることのできる空間を意識しました。

お庭は人工芝を採用しています。いつでも美しい緑色。お子様が転んでもお怪我の心配は最小限に考えることができます。雑草やお庭の手入れとは無縁なメンテナンスフリーなガーデンになりました。


掃出窓からお庭へアクセスのできるウッドデッキです。メンテナンスフリーな人口木材である三協アルミ【ひとと木2】を採用。フェンスはシンプルモダンな三協アルミ【ジーエムラインW】でスッキリとしたデザインに仕上げています。階段は広めに作り、昇降しやすさを意識しています。ウッドデッキ上ではちょっとした洗濯物を干したり、腰掛けたりしながらお庭を楽しめる広めの濡れ縁としてご活用いただけます。


まるでカーショールームのような演出をご自宅に!
ダウンライトを施した大型カーポートは素敵なコレクションとして愛車を彩ります。ご自宅にカーショールームを設けたような高級感ある空間をお楽しみください。太いフレームが印象的で重厚感のある三協アルミのカーポート【ビームス】は車好きなお客様に大変おすすめな商品です。

この度は、我が家の庭をカッコ良く作ってくださり、ありがとうございました。
デザインアースさんにお世話になり感じたことは、そこに住む人に寄り添った選択をしてくれるということです。設計段階から施工まで全てがそうでした。
打合せでは仕様や見積もりを丁寧に説明してくれ、とてもわかりやすく納得のいくものを選ぶことができました。施工する職人さんは、高い技術力もさることながら人柄も大変よく、特に子供がお世話になり温かい時間を過ごす事ができました。現場でのものの置き方一つとっても、私たちの暮らしに配慮を感じるものでした。工事が終わるのが寂しいとさえ思いました(笑)
知人の紹介でデザインアースさんを知りましたが、お世話になって本当に良かったです。ありがとうございました。
工事施工範囲 |
---|
当店では、新築やリフォーム・リノベーションの外構(エクステリア)、造園(ガーデン)工事を承っております。
新築での工事をご依頼のお客様は、必要な図面がお揃いでしたら、建築前の段階からご相談が可能です。
リフォーム・リノベーションをご依頼のお客様は、予め建築時の図面をご用意ください。
当店は、お客様とじっくり話し合い、ご要望を伺い、お客様の立場に立ってご提案ができるように、ご依頼数を制限した限定予約制となっています。

庭木のお手入れ・剪定サービス施工範囲 |
---|
当店では、剪定、伐採、抜根、刈り込み、芝刈り等を行う【庭木のお手入れ・剪定サービス】を実施しております。
お庭のお手入れが難しいという方や忙しくてお庭のお手入れをする時間がないという方のために、当店の職人が綺麗なお庭を維持し、お家が完成した時の新鮮な気持ちを常に身近に感じられるお手伝いをいたします。
庭木のお手入れ・剪定サービスの施工可能な地域は以下になります。
※上記の施工範囲以外でも、地域によっては対応可能な場合がございます。その際は、お気軽にお問合せ下さい。

神奈川県大和市の特徴 |
---|
当店の大和事務所所在の大和市は、人口約23万人の神奈川県のほぼ中央に位置します。泉の森やゆとりの森など緑が豊富な地域です。市の木はヤマザクラ、市の花はノギク、市の鳥はオナガです。
面積は約27平方キロメートル、神奈川県内でも小さな都市ですが、3つの鉄道が東西南北に走り、東京へ1時間弱、横浜へは20分で行くことが出来ます。駅は8箇所で、市内の地域のほとんどが駅まで15分以内の徒歩圏内にあります。東名高速道路横浜町田インターチェンジや圏央道の海老名インターチェンジにも比較的近く、交通の利便性の良い地域です。
建売り住宅や注文住宅などの戸建てが多く、最近ではエクステリア・外構にこだわったお客様が増えてきました。