神奈川県のエクステリア・ガーデン専門店
デザインアース エクステリア&ガーデン
TOP | 伊勢原市内 | 伊勢原市でエクステリア・外構を行う全国1位受賞店

デザインアースは伊勢原市で
エクステリア・外構工事を行う専門店です。

デザインアースは
伊勢原市でエクステリア・外構工事を行う
専門店です。

INFORMATION

更新やキャンペーン情報など

オリジナル施工集「SOTO」

無料にてプレゼントいたします!

当店のこだわりの施工例やエクステリアの基礎知識を学べる1冊となっています。新築のエクステリアから外構やお庭のリフォーム・リノベーション、カフェやレストランまで様々な事例をご覧いただけます。ご自宅を過ごしやすい空間にするためのヒントとしてご活用ください。

デザイナーが打合せ・設計・工事監理・現場管理までを一括で担当する
エクステリア&ガーデン・ウッドデッキのプロの専門店

当店は、工事後にお客様が「ああすれば良かった」「こうすれば良かった」と後悔をすることがないエクステリアとガーデンの専門店を目指しています。そのためにはスタッフの能力はもちろんのこと、しっかりとお客様とコミュニケーションを取り、ご要望を伺い、プロとしてのご提案ができることが大切です。
 
当店のスタッフは、営業、設計、現場監督というように担当が別れておりません。担当者が責任を持って、ヒヤリングやプレゼン等のお打合せから設計、お見積作成、工事監理、現場管理までを行います。また、作業に携わる作業員(職人)も、担当者が工事内容に合わせて適正な作業員を厳選しています。
 
担当者がすべての工程を経験し、理解しているからこそ幅広い知識と経験でお客様にプロとしてのご提案ができます。お客様とのコミュニケーションの場を分業化(営業、設計、監督など)しないことで、伝達ミスによる失敗もありません。お客様からのご相談はすべて担当者が一任します。
 
お客様とのお打合せは、じっくりと時間を掛けて行わせていただきます。工事予定地で立ち話程度で終わってしまうことはありません。お手数ですが一度ご来店ください。施工例やカタログ、雑誌、サンプルなどをご覧にいただきながらご要望をしっかりと伺います。やりたいことがあると色々と夢が広がります。担当者がお客様の立場に立って、同じ夢に向かってご提案させていただきます。

神奈川県伊勢原市は当店の施工範囲内です。

神奈川県伊勢原市のお客様施工例をご覧ただけます。伊勢原市にお住まい、またはお引っ越しをご予定でエクステリア・外構、ガーデン・お庭の工事をお考えのお客様を心からお待ちしております。

高低差を有効活用した
エクステリアで高級感を演出

神奈川県伊勢原市S様邸施工例
 
参考費用:365万円(税抜)
S様邸外観

PLAN

イメージパース・図面
イメージパース
平面図
 

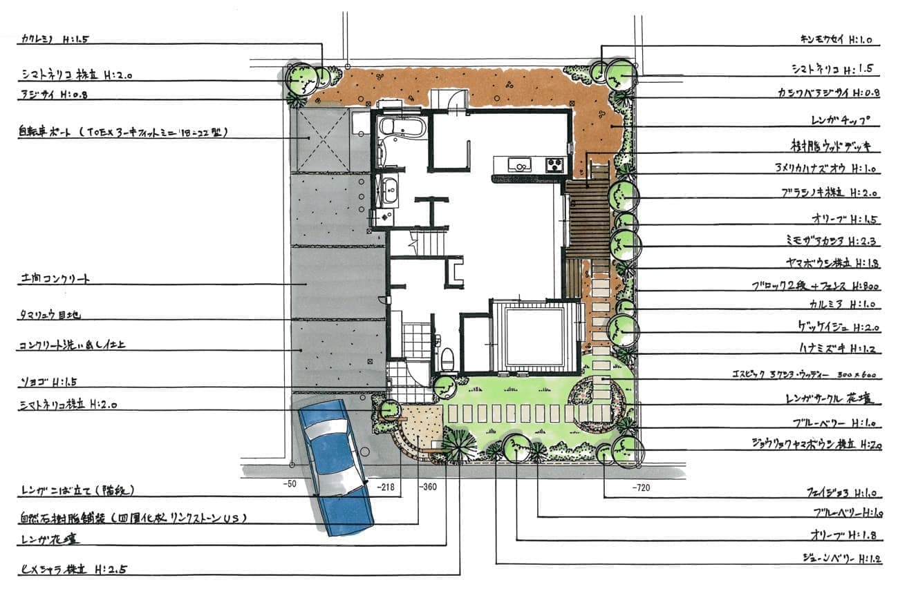
【プランコンセプト】高低差を有効活用したエクステリア

神奈川県伊勢原市の新築外構・エクステリアのプランです。
敷地に高低差があり、そのままでは土地にスペースが空いてしまうため、土留めブロックを施行。高台となるお庭が広く使用できるようになり、もったいないスペースをなくすことができました。
玄関アプローチも基礎を高く施行することでタイルを用いてお庭まで繋げ、お庭と玄関を1つの階段で出入りできるようになっております。


COMPLETED

完成事例
ガレージ


門柱には東洋工業の【スティード】を使用し、色違いの化粧ブロックを施行することで模様を表現しました。ホワイトとグレーの2色ですっきりとしたモダンな雰囲気に仕上がりました。玄関タイルには新井窯業の【アドリア AD-300/3】を使用。アプローチとなる階段にも同じタイルを施行することで、お庭から玄関までの一体感を演出しました。

ガレージ


お庭が高台になるように土留めブロック(【SBIC】RECOM ST)を施行しました。シンプルなスリットが刻まれており、無機質なコンクリートにデザイン性をもたらします。お庭の周りにはLIXILの【プレスタフェンス2型】のブラックを施行、シンプルなデザインが景観に美しくなじみます。フェンスの中はお客様にご要望をいただいた畑になっており、家庭菜園を楽しむことができます。

門柱とポスト
 
階段

門柱の足元には埋込式のスポットライト(【タカショー】グランドライト5型)を、ピンコロ石で施行した玄関花壇にはポールライト(【タカショー】エクスレッズポールライト)を設置し、夜間もアプローチが明るくなるように施行いたしました。
シンボルツリーにはソヨゴの木を植えております。常緑樹で寒さや日陰にも強いため、とても育てやすいです。秋になると小さなさくらんぼのような赤い実がつき、濃い緑色の葉との美しいコントラストがお楽しみいただけます。ソヨゴは、雌雄異株という種類の植物で、雄株と雌株の2種類に分かれています。そのため、実を楽しむ場合は雌株を植えることをお勧めします。

ガレージ



デザイン、工事、仕上がり、全てに満足しています。最初から最後までとても丁寧に作業をしてくださって、素人ではわからないことも教えていただいたりして、お話しするのも楽しかったです。
私たちの都合でご迷惑をおかけしたことも多々ありましたが、嫌な顔ひとつせずに対応してくださったこと、本当に感謝しております。
駐車場のコンクリート部分や土留めなど、見えなくなってしまう内側の部分もとても丁寧に作業されていて、信頼のできるとても良い職人さんに作業をしていただけたとうれしく思っています。
お庭の芝生も綺麗に植えていただいて、本当にお庭らしくなりました。ウッドデッキも広すぎるくらいで、とても贅沢なお庭になったと思います。赤い実が成るシンボルツリーも可愛らしくて大変気に入っています。植栽が入って、コンクリートの無機質な雰囲気が程よく和らぎ、素敵な外観になりました。夜になると表札も綺麗に照らされて、とても満足しています。
直接お礼をお伝えすることができなかった事が心残りですが、夫婦共々出来栄えに大変満足しております。寒空の下の作業は大変だったと思います。本当にありがとうございました。次また何かお願いする事があれば、担当の方も職人の方も同じ方にお願いしたいです。


グリーンと共存するかわいい欧風外構

神奈川県伊勢原市北嶋様邸施工例
 
参考費用:250万円(税抜)第一期工事
参考費用:150万円(税抜)第二期工事
小嶋様邸外観

PLAN(第一期工事)

イメージパース・図面
イメージパース
平面図
 

【プランコンセプト】テーマは使いやすさと明るいデザイン

神奈川県伊勢原市の新築外構・エクステリアのプランです。
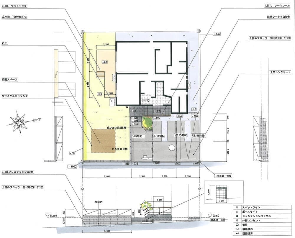
道路と玄関までの高低差があるので、階段が必須の現場でした。北側が駐車場となるので、エントランスと車の出入りを両立させるデザインを心がけました。
 
設計の際、正面階段を45度の角度で展開することで、車と出入りをしやすくしています。また、玄関までの導線もこの45度のデザインが自然と作り出してくれます。階段を上がった踊り場を中心に、お庭にもアプローチしやすく展開をしています。今後のお庭づくりに支障のないよう設計しました。
 
全体にアールを基調として、欧風デザインに仕上げました。前後を付けた左右の門柱は、奥行き感を与えて門まわり広がりを与えます。手前から奥に広がったアールの階段は、門柱同様にエントランスを広く見せてくれます。門柱それぞれに植栽帯を設けていますので、構造物を柔らかく見せ、より可愛らしく門まわりを演出してくれます。

PLAN(第二期工事)

イメージパース・図面
イメージパース
平面図
 

【プランコンセプト】メンテナンスフリーを考えた家まわり

第一期工事で保留となっていたフロントヤードを、第二期工事としてご依頼いただきました。玄関から飛び石のアプローチを作り、自然石乱張りのテラススペースをご提案しました。外周部分は、雑草対策と歩きやすさを優先してコンクリートを打設しています。


COMPLETED

完成事例
ガレージ
ガレージ


奥行き感と導線を考えたエントランスです。門柱を前後にずらしながら、お互いを近づけることで正面から見ると玄関の目隠しにもなっています。階段の縁取りにはレンガを使用して建物との調和を図り、床面を自然石樹脂舗装で仕上げています。床面の自然石樹脂舗装の仕上げには、滑り止め材を混ぜているので雨天時の使用も安心です。門柱前の植栽帯は、門まわりを明るくし、柔らかく表現してくれます。
 
夜になると自動でLED照明が灯されます。表札、足元、植栽が照らされ、素敵なエクステリアの演出になります。

門柱と階段
 
表札

美しくアールを描いたレンガキャップに、ジョリパットの塗り壁材を使用しています。塗り壁は、硅砂を利用したエンシェントブリックという工法を採用しました。自然な風合いと塗りムラが魅力の工法です。
 
せっかくのかわいい門柱デザインを損なわないように、パーツにもこだわっています。表札はアルファベットのアルミ鋳物を使用し、表札灯も同じアルミ鋳物でかわいい木の葉デザインのLEDライトを使用しています。ライトは照度センサーを使用して、自動点消灯になっています。消し忘れや点け忘れも安心です。LEDエクステリアライトは寿命が長く、省電力なので電気代の節約にも繋がる近年のヒット商品です。

花壇
 
ドライガーデン
 
植栽
 
裏側

左の門柱裏にはヒメシャラの株立を植えています。根本から数本の幹を出す株立は、一種でも充分な存在感を出して門まわりを華やかにします。根本にはスポットライトを埋込み、夜になるとライトが植物を美しく演出してガラスブロックの向こう側もきらめきます。エクステリアライトは防犯性も高めることができる必須のアイテムです。また、植栽帯に敷き詰めたレンガチップは、保水性を高めながら、雑草を防ぐ効果も持っています。ちょっとした商品が、大きな効果を生み出してくれます。

飛び石
 
飛び石(夜)
 
花壇
 
石張り
ガレージ


駐車場は縦に2台分を取り、車が停まっても支障のないようにアールの階段がお家までの出入りを自由にしています。また、この階段は車の導線も考え、車が左折しやすい角度に収めています。   門柱右側は、しっかりと土を抑えるように土留となる型枠ブロックを使用しています。外観も美しくするために、化粧型枠ブロックを使用しています。L型基礎は土圧によるブロックの転倒を防ぐように施工されています。

平面図
 

花壇に囲まれたアプローチ

第二期工事で完成した花壇と飛び石のアプローチです。自然石乱張りのテラススペースに続く園路となっています。夜間にはポールライトで明るく灯され、温かい雰囲気の空間になります。

工事施工範囲

当店では、新築やリフォーム・リノベーションの外構(エクステリア)、造園(ガーデン)工事を承っております。

新築での工事をご依頼のお客様は、必要な図面がお揃いでしたら、建築前の段階からご相談が可能です。
リフォーム・リノベーションをご依頼のお客様は、予め建築時の図面をご用意ください。
 
当店は、お客様とじっくり話し合い、ご要望を伺い、お客様の立場に立ってご提案ができるように、ご依頼数を制限した限定予約制となっています。

  • 施工可能な地域は以下になります。

 
※上記の施工範囲以外でも、地域によっては対応可能な場合がございます。その際は、お気軽にお問合せ下さい。

工事施工範囲地図

神奈川県伊勢原市の特徴

伊勢原市は人工約10万人の市です。市の木はシイ、市の花はキキョウ、市の鳥はヤマドリです。
 
伊勢原市内の北西端には大山があり、パワースポットとしても人気があります。1960年台後半から宅地開発が進み、今日に至ります。また、稲作、果樹作、酪農などの農業も神奈川県内では盛んな地域です。最近では国道246号線沿いに宅地開発が進められています。東海大学医学部、健康科学部や産業能率大学があり、学生も利用する住みやすい土地です。

| 1 |