神奈川県のエクステリア・ガーデン専門店
デザインアース エクステリア&ガーデン
TOP | 逗子市内 | 逗子市のエクステリア・外構工事施工例

デザインアースはエクステリア
外構工事を行う専門店です。

デザインアースは
エクステリア・外構工事を行う専門店です。

INFORMATION

更新やキャンペーン情報など
デザインアースについて
当店はデザイナーが打合せ・設計・現場管理までを一括で担当する、エクステリアとガーデンの専門店です。
 

デザイナーが打合せ・設計・工事監理・現場管理までを一括で担当する
エクステリア&ガーデン・ウッドデッキのプロの専門店

当店は、工事後にお客様が「ああすれば良かった」「こうすれば良かった」と後悔をすることがないエクステリアとガーデンの専門店を目指しています。そのためにはスタッフの能力はもちろんのこと、しっかりとお客様とコミュニケーションを取り、ご要望を伺い、プロとしてのご提案ができることが大切です。
 
当店のスタッフは、営業、設計、現場監督というように担当が別れておりません。担当者が責任を持って、ヒヤリングやプレゼン等のお打合せから設計、お見積作成、工事監理、現場管理までを行います。また、作業に携わる作業員(職人)も、担当者が工事内容に合わせて適正な作業員を厳選しています。
 
担当者がすべての工程を経験し、理解しているからこそ幅広い知識と経験でお客様にプロとしてのご提案ができます。お客様とのコミュニケーションの場を分業化(営業、設計、監督など)しないことで、伝達ミスによる失敗もありません。お客様からのご相談はすべて担当者が一任します。
 
お客様とのお打合せは、じっくりと時間を掛けて行わせていただきます。工事予定地で立ち話程度で終わってしまうことはありません。お手数ですが一度ご来店ください。施工例やカタログ、雑誌、サンプルなどをご覧にいただきながらご要望をしっかりと伺います。やりたいことがあると色々と夢が広がります。担当者がお客様の立場に立って、同じ夢に向かってご提案させていただきます。

神奈川県逗子市のエクステリア・外構、ガーデン・お庭の施工例

逗子市のお客様施工例をご覧ただけます。逗子市にお住まい、またはお引っ越しをご予定でエクステリア・外構、ガーデン・お庭の工事をお考えのお客様を心からお待ちしております。

建物に調和した素材と
植栽を活かしたオープン外構

神奈川県逗子市 今井都仁 様邸施工例
 
参考費用:275万円(税抜)
今井様邸外観

PLAN

イメージパース・図面
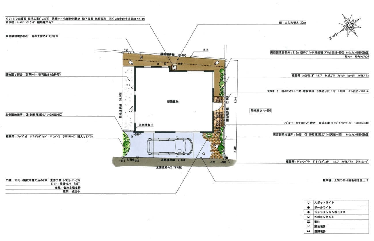
平面図
 

【プランコンセプト】ナチュラルテイストな素材で暖かみのあるエクステリアプラン

神奈川県逗子市の新築外構・エクステリアとお庭・ガーデンのプランです。
道路から建物の玄関ポーチまでが直線の敷地です。高低差がある場所だったため、階段を4段設けました。
 
直線のアプローチは東洋工業のガンデブリックペイブを採用し、建物の可愛らしい色味に合わせて優しい色合いの舗装材を使用しました。
 
コンクリート製の材料で石畳風のアプローチが演出できます。またアプローチ付近に植栽帯を取り入れることで、華やかな印象を与えるとともに、植物の開花や紅葉による季節の移ろいを楽しむこともできます。
 
門柱には東洋工業のレイルスリーパーラフトを採用し、枕木の門柱を再現しました。

COMPLETED

完成事例
アプローチ
ポストと門柱
 
階段
駐車場
 

優しい色味の舗装材とコンクリートが調和するファサード

枕木の門柱は東洋工業のレイルスリーパーラフトを採用しています。
洋風のランプや横文字の表札との相性も抜群です。
 
コンクリートで木目を表現しているので、年数を経ても朽ちることもなく、白アリの被害にあう心配もありません。
 
門柱の足元にはフイリヤブラン・セイヨウイワナンテンを植栽し、ナチュラルな印象を与えています。


工事施工範囲

当店では、新築やリフォーム・リノベーションの外構(エクステリア)、造園(ガーデン)工事を承っております。

新築での工事をご依頼のお客様は、必要な図面がお揃いでしたら、建築前の段階からご相談が可能です。
リフォーム・リノベーションをご依頼のお客様は、予め建築時の図面をご用意ください。
 
当店は、お客様とじっくり話し合い、ご要望を伺い、お客様の立場に立ってご提案ができるように、ご依頼数を制限した限定予約制となっています。

  • 施工可能な地域は以下になります。

 
※上記の施工範囲以外でも、地域によっては対応可能な場合がございます。その際は、お気軽にお問合せ下さい。

工事施工範囲地図

神奈川県逗子市の特徴

逗子市は青い海と豊かな緑に恵まれた市です。人工は約5万8千人で、市の木はツバキ、市の花はホトトギスです。
 
市内には、南国ムードのあふれる「逗子マリーナ」があり、異国の雰囲気を味わえる観光スポットとなっています。また、相模湾と富士山を展望できる大崎公園、逗子海水浴場も大変美しく高い人気を誇っています。
 
横浜横須賀道路の逗子ICがあるので、横浜や東京都内にもアクセスしやすく、都心にお勤めの方に人気です。リゾート感あふれるエクステリア・外構やガーデン・お庭が多く見られる地域です。

| 1 |